REV2003113 Vila Iancu Nicolae I Gradina Zoologica I Jollie Ville

539.000 €

Iancu Nicolae, București

Nr. cam.:
6
Sup. utilă:
250 mp
Sup. teren:
225 mp
Tip prop.:
Individuală
  • • Locație aproximativă
  • • Vizionare prin apel video

Descriere casă

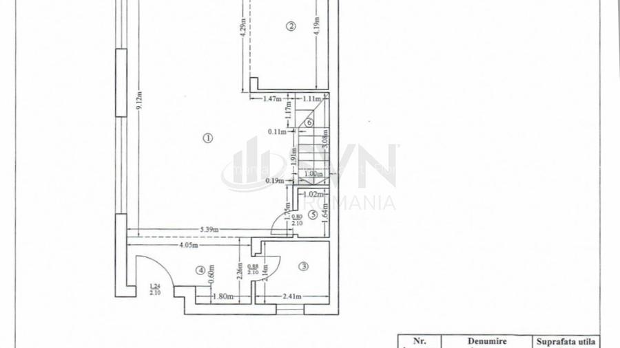
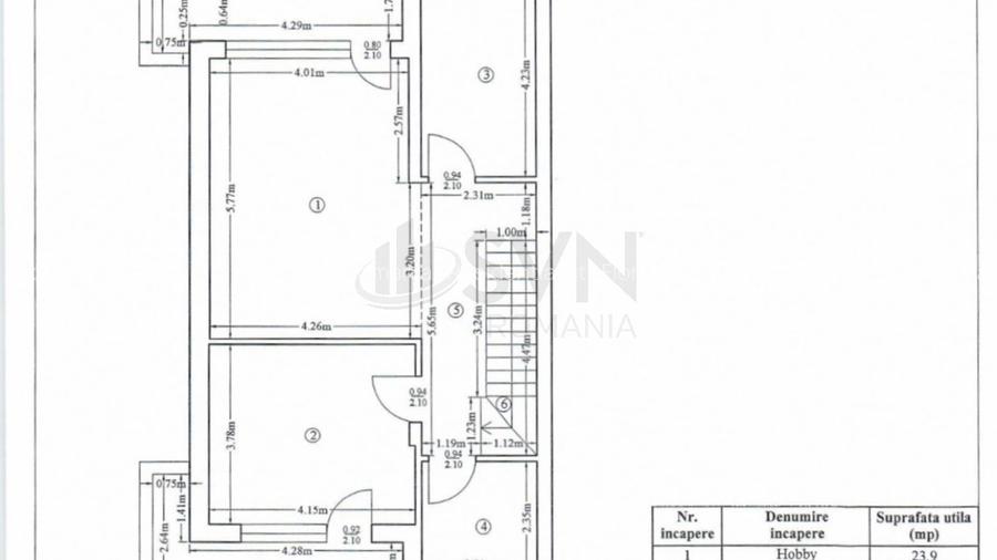
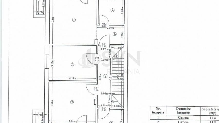
SVN Romania va propune spre vanzare aceasta vila tip Duplex (perete dublu din caramida, cu izolatie intre cei doi pereti) situata in zona Iancu Nicolae. Sunt incluse: Toate instalatiile (sanitare, electrice) Incalzirea in pardoseala controlabila pe zone. Centrala proprie Trasee aer conditionat multi split Usa de intrare din alumimiu Corpuri de iluminat de exterior Gard finalizat din beton, aluminiu Dale/gresie exterior in curte Scari exterioare finisate complet din granit Pereti interiori complet finisati la alb Tamplarie premium din aluminiu cu geam tripan, profil Alumil Parter: Living generos, bucatarie cu zona de luat masa cu iesite in terasa din curte. Tot la parter mai avem o baie, un vestibul spatios si o debara. Etaj 1: La etaj regasim un dormitor matrimonial cu dressing, baie proprie si o terasa. Aici mai avem doua dormitoare, o baie si inca o terasa. Etaj 2: Aici avem un hobby room spatios cu iesire in terasa, un dormitor matrimonial cu dressing si o baie. Imprejmuire: Vilele vin complet imprejmuite cu gard din plasa/beton/caramida. Utilitati: casa beneficiaza de toate utlitatile: apa curenta, canalizare, gaze si curent electric. Pregatire panouri fotovoltaice! Pentru detalii va asteptam la vizionari!
Citește mai mult Citește mai puțin
Acceptă animale de companie Grădină Aer condiționat Centrală proprie Încălzire prin pardoseală

Detalii casă

ID anunț: XENT110FR Copiat! 267543515 Copiat!
Actualizat în: 17 Februarie 2026
Suprafață construită: 290 mp
Suprafață desfășurată: 290 mp
Nr. bucătării: 1
Nr. băi: 3
Nr. balcoane / Terase / Logii: 3
Nr. terase: 2
An construcție: 2023 (Finalizată)
Structură rezistență: Cărămidă
Tip imobil: Casă/Vilă
Regim înălțime: P+2E

Utilități

Destinație
Rezidențial Birouri Birouri
Pereți
Faianță
Podele
Gresie Parchet
Izolații termice
Exterior
Diverse
Senzor de fum
Alte spații utile
WC Serviciu Spațiu depozitare
Facilități imobil
Acoperiș Interfon
Utilități
Gaze Telefon internațional Apă Canalizare Curent
Internet
Cablu Fibră optică Wireless
Comision
Standard

Vicii:

Fără vicii.

Disponibilitate proprietate:

Disponibil din 21/10/2025.

Puncte de interes

Mijloace transport
bus-station
Jolie Ville Baneasa
Stații autobuz aprox. 246 m
bus-station
Statia Restaurant Baneasa, linia 148,301
Stații autobuz aprox. 1546 m
airport
Aeroportul Internațional Băneasa (Aurel Vlaicu) - LRBS (BBU)
Aeroporturi aprox. 1548 m
Școală
school
Mark Twain International School
Școli aprox. 544 m
school
British School of Bucharest
Școli aprox. 1745 m
school
Mark Twain
Școli aprox. 1870 m
Recreere
supermarket
Mega Image Jolie Ville
Supermarket aprox. 292 m
restaurant
Phill
Restaurant aprox. 421 m
park
Parc
Parcuri aprox. 781 m
cafe
Doncafe Brasserie
Cafenea aprox. 1624 m

Detalii despre preț și costuri

Costuri cu achiziția

Fără credit
21.404 RON
Credit ipotecar
24.805 RON
Noua casă
2.887 RON+ taxe notariale

i

Costuri adiționale mai puțin știute la achiziție: taxe notariale, comisioane etc.

Proprietăți recomandate

Detalii de contact

Abonează-te la newsletter să fii primul care primește cele mai noi recomandări de proprietăți și sfaturi de la experți.

CONTACT

Creează alertă

Salvează căutarea ca să primești pe email ultimele anunțuri publicate

Case individuale cu 4+ camere de vânzare în zona Iancu Nicolae, Sector 1