Vila SUPERBA, DESIGN UNIC, Proiect de Arhitectura Premiat, 1800mp teren, Garaj

1.750.000 €

Iancu Nicolae, București

Nr. cam.:
12
Sup. utilă:
518 mp
Sup. teren:
1.800 mp
Tip prop.:
Individuală
  • • Locație aproximativă

Descriere casă

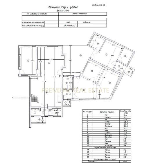
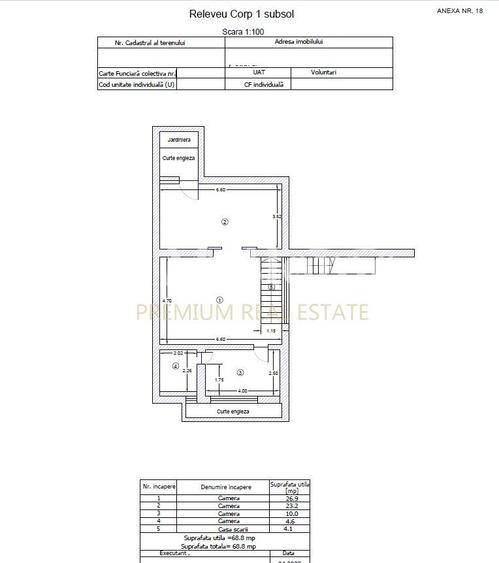
O locuință multi-familială pentru trei generații, Casa eM a fost proiectată și supervizată de un foarte cunoscut arhitect roman și a obținut mai multe premii de arhictectura de-a lungul timpului. Cele 4 unități locative (2 apartamente ultra-generoase, un apartament de 2 camere și o garsonieră) sunt independente, dar comunică între ele vizual și prin spațiile exterioare comune. Casa eM are, pe cele 3 niveluri (subsol, parter și un etaj), 12 camere, 4 bucătării, 7 băi și garaj pentru 3 mașini. În total, o suprafață utilă de 518 mp la interior, plus 5 terase exterioare cu o suprafață utilă de 365mp. Bine întreținută interior și exterior, casa eM are suprafețe vitrate mari, cu profile de aluminiu Schuko, două centrale pe gaz, puț propriu și racordare la rețeaua publică de canalizare, un sistem performant de dedurizare a apei, 6 panouri solare pentru apă caldă și aport la încălzire, plus panouri fotovoltaice de 12kw, cuplate la rețea și la o baterie de 5kw, care are și funcție de backup. Construită pe un teren de 1800 mp, Casa eM are o grădină luxuriantă cu peste 40 de copaci maturi (platani, stejari, arțari, brazi, pini) - o mică pădure proprie, magnolii, pomi fructiferi și tufe diverse, la care se adaugă o grădină idilică suspendată. Situată pe o strada liniștita, perpendiculara pe strada Șerban Cantacuzino, Casa eM se află în imediata apropiere a celor mai importante școli internaționale (Cambridge School of Bucharest - 1 km, British School of Bucharest- 2,5 km, Liceul Francez - 3,5 km, American School of Bucharest - 5 km), la 3 km de Băneasa Shopping City și la 15 minute cu mașina de Aeroportul Henri Coandă.
Citește mai mult Citește mai puțin
Mobilat Lux Parțial mobilat Grădină Curte Aer condiționat Calorifere Centrală proprie 3 Parcări 1 Garaj

Detalii casă

ID anunț: X92V1123G Copiat! 275068101 Copiat!
Actualizat în: 23 Februarie 2026
Suprafață construită: 884 mp
Suprafață desfășurată: 884 mp
Nr. bucătării: 4
Nr. băi: 7
Nr. balcoane / Terase / Logii: 2
Nr. terase: 5
Suprafață terase: 365 mp
Front stradal: 75.0 m
Învelitoare acoperiș: Tabla
An construcție: 2004 (Finalizată)
Structură rezistență: Beton
Regim înălțime: S+P+1E

Utilități

Pereți
Faianță Vopsea lavabilă
Podele
Gresie Parchet
Ușă intrare
Metal
Uși interior
Lemn
Izolații termice
Exterior Interior
Ferestre cu geam termopan
Aluminiu
Contorizare
Apometre Contor căldură Contor gaz
Bucătărie
Mobilată Utilată
Electrocasnice
Aragaz Frigider Hotă Mașină de spălat Mașină spălat vase TV
Diverse
Scară interioară Senzor de fum Sistem de alarmă Telecomandă poartă acces auto Telecomandă poartă garaj
Alte spații utile
Dressing WC Serviciu
Facilități imobil
Acoperiș Interfon Spații agrement Videointerfon
Utilități
Curent Apă Canalizare CATV Gaze Telefon
Internet
Cablu Wireless
Servicii imobil
Supraveghere video
Amenajare străzi
Iluminat stradal Mijloace de transport în comun Asfaltate
Comision
standard

Disponibilitate proprietate:

Imediat

Puncte de interes

Mijloace transport
airport
Aeroportul Internațional Băneasa (Aurel Vlaicu) - LRBS (BBU)
Aeroporturi aprox. 825 m
bus-station
Jolie Ville Baneasa
Stații autobuz aprox. 888 m
tram-station
Drumul Nisipoasa
Stații tramvai aprox. 1384 m
bus-station
Statia Restaurant Baneasa, linia 148,301
Stații autobuz aprox. 1742 m
Școală
school
Mark Twain International School
Școli aprox. 927 m
kindergarten
Gradinita Zece
Gradinițe aprox. 1580 m
kindergarten
Echilibria 1
Gradinițe aprox. 1818 m
school
British School of Bucharest
Școli aprox. 1996 m
Recreere
restaurant
Phill
Restaurant aprox. 566 m
park
Loc de joaca
Parcuri aprox. 765 m
supermarket
Jolie Ville Galleria
Supermarket aprox. 824 m
mall
Baneasa Shopping Center
Mall aprox. 1903 m

Proprietăți recomandate

Detalii de contact

Atmyhome

Bogdan Draghia Managing Partner

Atmyhome
PRO

Abonează-te la newsletter să fii primul care primește cele mai noi recomandări de proprietăți și sfaturi de la experți.

CONTACT

Creează alertă

Salvează căutarea ca să primești pe email ultimele anunțuri publicate

Case individuale cu 4+ camere de vânzare în zona Iancu Nicolae, Sector 1