2

REV2005443 Pipera l Bellemonde Residence l Vila 5 camere 205 mp

559.000 € + TVA

Pipera, București

Nr. cam.:
5
Sup. utilă:
160 mp
Sup. teren:
350 mp
Tip prop.:
Individuală
  • • Locație aproximativă
  • • Vizionare prin apel video

Descriere casă

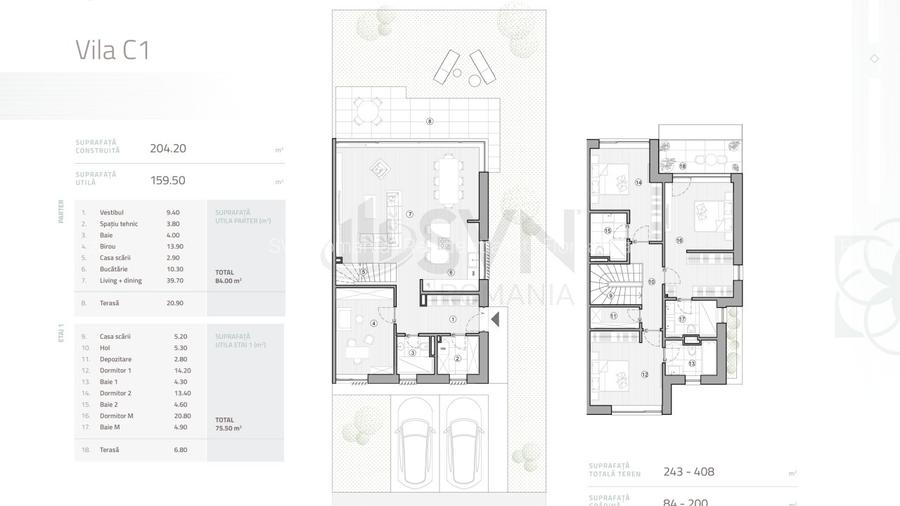
SVN Residentialist Floreasca va propune spre vanzare o vila situata in complexul rezidential Bellemonde Residence din Pipera. Vila este dispusa pe doua niveluri, parter si etajul 1. Zona de zi, situata la parter, include un living spatios, o zona de dining si o bucatarie moderna, open-space, care poate fi compartimentata in functie de preferintele fiecarui proprietar. Ferestrele mari si ventilarea naturala asigura lumina si aerul proaspat necesare unui mediu sanatos si primitor. La parter se gaseste si un birou si o baie suplimentara, pentru un stil de viata care combina munca si timpul petrecut acasa. Acest birou poate fi transformat si intr-o camera multifunctionala, adaptata nevoilor proprietarilor. Etajul este destinat odihnei si dispune de 3 dormitoare – un dormitor master spatios, dotat cu baie proprie si dressing, asigurand intimitate si confort maxim pentru proprietari, si doua dormitoare secundare ce ofera spatiu suplimentar pentru copii sau oaspeti, fiecare fiind bine luminat si amplasat pentru a mentine linistea necesara odihnei. O baie suplimentara serveste aceste dormitoare, completand compartimentarea eficienta a spatiului. Un element distinctiv al acestor case este separarea clara intre zonele de zi si de noapte, asigurand un flux logic al spatiului. Vila dispune de o gradina privata si o terasa extinsa, oferind un spatiu intim in aer liber, ideal pentru relaxare sau activitati sociale. Aceste spatii sunt perfecte pentru serile petrecute cu familia sau prietenii, intr-un cadru natural si linistit. Pentru mai multe informatii sau pentru programarea unei vizionari, nu ezitati sa ma contactati.
Citește mai mult Citește mai puțin
Acceptă animale de companie Grădină Aer condiționat Centrală proprie Încălzire prin pardoseală 2 Parcări

Detalii casă

ID anunț: XENT01029 Copiat! 274353659 Copiat!
Actualizat în: 04 Martie 2026
Suprafață construită: 205 mp
Suprafață desfășurată: 205 mp
Nr. bucătării: 1
Nr. băi: 3
Nr. balcoane / Terase / Logii: 1
Nr. terase: 1
An construcție: 2026 (În construcție)
Structură rezistență: Beton
Tip imobil: Casă/Vilă
Regim înălțime: P+1E

Utilități

Destinație
Rezidențial Birouri Birouri
Pereți
Faianță
Podele
Gresie Parchet
Izolații termice
Exterior
Ferestre cu geam termopan
PVC
Diverse
Senzor de fum
Alte spații utile
WC Serviciu Spațiu depozitare
Facilități imobil
Spații agrement
Utilități
Gaze Telefon internațional Apă Canalizare Curent
Internet
Cablu Fibră optică
Servicii imobil
Supraveghere video
Comision
Standard

Vicii:

Fără vicii.

Alte detalii:

Cartierul Pipera: confort si facilitati sporite

Cartierul Pipera se situeaza in extrema nord-estica a municipiului Bucuresti, facand parte din administratia orasului Voluntari. Orasul Voluntari face parte dintre cele mai exclusiviste zone din imprejurimile Bucurestiului.

Distanta catre centrul capitalei este de aproximativ 7-8 km, aspect ce faciliteaza accesul rapid catre punctele de interes in timp ce zona rezidentiala ramane una ferita de aglomeratia si poluarea urbana.

Dezvoltatorii imobiliari investesc in cartierul Pipera deoarece reprezinta un spatiu de locuit ideal pentru oamenii de business, aici regasindu-se multiple spatii pentru birouri.

Cei care iau decizia de a realiza o achizitie imobiliara in aceasta zona, se bucura de confort sporit si conditii excelente in desfasurarea activitatilor uzuale. De asemenea, facilitatile sunt in pachet complet, in conformitate cu asteptarile clientilor:

● complex comercial Pipera Plaza cu peste 11 restaurante pentru toate gusturile, magazine mass-market, supermarket-uri, beauty shops, shop-uri de amenajari interioare;
● showroom-uri multiple: Lamborghini, Mercedes-Benz, Porche Pipera, Honda, Toyota;
● centrul comercial Promenada Mall la 10 minute distanta;
● agentii bancare, farmacii, cabinete si clinici private, sali de fitness;
● scoli, gradinite si spatii de recreere in natura (Balta Pipera, Padurea Baneasa, Gradina Zoologica Bucuresti);
● accesibilitate catre Aeroportul International „Henri Coanda” si Aeroportul „Bucuresti Baneasa”.

Disponibilitate proprietate:

Disponibil din 21/01/2026.

Puncte de interes

Școală
kindergarten
Kindergarden
Gradinițe aprox. 1076 m
school
Happy Children Academy
Școli aprox. 1167 m
school
Scoala Discovery
Școli aprox. 1197 m
university
School American Bucharest-Voluntari
Universități aprox. 1806 m
Recreere
park
residential kids park
Parcuri aprox. 422 m
supermarket
Mega Image Pipera Liziera
Supermarket aprox. 1215 m
sports-ground
Teren sportiv
Terenuri sport aprox. 1581 m
cafe
Doncafe Brasserie
Cafenea aprox. 1775 m

Detalii despre preț și costuri

Costuri cu achiziția

Fără credit
26.130 RON
Credit ipotecar
30.115 RON
Noua casă
3.588 RON+ taxe notariale

i

Costuri adiționale mai puțin știute la achiziție: taxe notariale, comisioane etc.

Proprietăți recomandate

Detalii de contact

Abonează-te la newsletter să fii primul care primește cele mai noi recomandări de proprietăți și sfaturi de la experți.

CONTACT

Creează alertă

Salvează căutarea ca să primești pe email ultimele anunțuri publicate

Case individuale cu 4+ camere de vânzare în zona Pipera, Sector 1