Dumbrava Vlasiei – Armonie între design, lumină și natură

1.100.000 €

Pipera, București

Nr. cam.:
5
Sup. utilă:
317 mp
Sup. teren:
959 mp
Tip prop.:
Individuală
  • • Locație aproximativă
  • • Vizionare prin apel video

Descriere casă

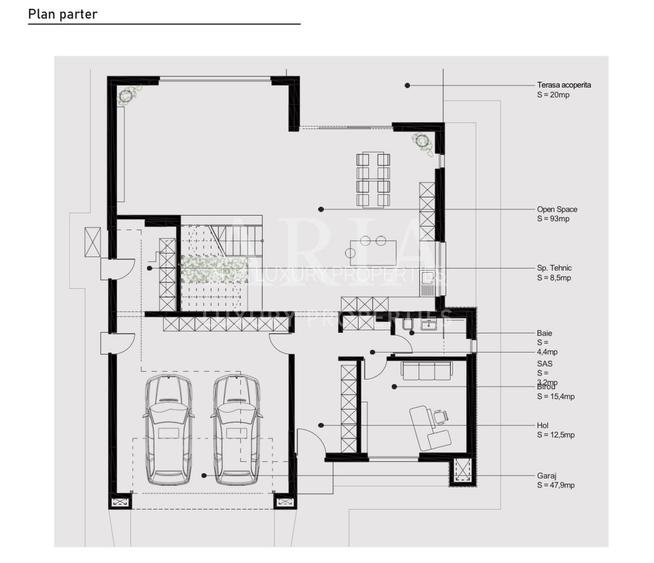
În inima Dumbravei Vlăsiei, într-un parc rezidențial exclusivist, vila este o interpretare contemporană a locuirii rafinate. Concepută într-un stil arhitectural deschis, care integrează organic exteriorul în interior, această vilă spectaculoasă redefinește confortul prin transparență, materialitate și funcționalitate. Dumbrava Vlăsiei este o comunitate închisă aparte – un spațiu amplu, înconjurat de pădure și parcuri, ce se remarcă prin arhitectura atent gândită a spațiilor comune și unicitatea fiecărei reședințe. Este un loc în care luxul se exprimă prin simplitate, echilibru și confort, iar respectul profund față de natură definește spiritul unei comunități de elită. DETALII PRINCIPALE: • Teren: 959 mp • Suprafață construită: 420 mp • Suprafață utilă: 317 mp • Compartimentare: 4 dormitoare, 4 băi, birou, spălătorie, garaj dublu Parter – Spațiu, lumină, libertate Zona de zi este un open space generos de 93 mp, ce reunește livingul, diningul și bucătăria într-o armonie fluidă, scalată pe verticală și luminată natural prin ferestre ample. Încălzirea în pardoseală cu agent termic oferă un confort termic uniform, fără compromisuri. În completare, biroul de 15 mp și baia de serviciu adaugă funcționalitate zilnică discretă. Etaj – Intimitate și funcționalitate inteligentă Zona de noapte include: • Dormitor matrimonial cu dressing spațios, baie proprie și acces la o terasă verde cu hidroizolație avansată • Două dormitoare secundare, fiecare cu baie și dressing propriu • Spălătorie și debara, gândite pentru eficiență cotidiană Detalii care fac diferența: • Garaj încorporat de 47,9 mp • Terasă acoperită de 20 mp, ideală pentru relaxare în aer liber • Materiale naturale: piatră, lemn, sticlă și metal, alese pentru durabilitate și estetică • Practici sustenabile și tehnologii ecologice de climatizare Infrastructură completă & conectivitate: • Drumuri asfaltate și iluminate • Canalizare și apă din puț propriu • Curent electric și fibră optică • Aleile pietonale și spațiile verzi contribuie la un stil de viață echilibrat VILA nu este doar o locuință – este o declarație de stil, sustenabilitate și apartenență. Un loc în care arhitectura întâlnește natura și transformă fiecare zi într-o experiență de viață autentică.
Citește mai mult Citește mai puțin
Nemobilat Grădină Curte Aer condiționat Ventiloconvectoare Centrală proprie Încălzire prin pardoseală 4 Parcări 2 Garaje

Detalii casă

ID anunț: XE3V110V9 Copiat! 275072879 Copiat!
Actualizat în: 23 Februarie 2026
Suprafață construită: 160 mp
Suprafață desfășurată: 454 mp
Nr. bucătării: 1
Nr. băi: 4
Nr. terase: 1
Suprafață terase: 20 mp
Învelitoare acoperiș: Tabla
An construcție: 2024 (Finalizată)
Structură rezistență: Cărămidă
Regim înălțime: P+1E

Utilități

Pereți
Vopsea lavabilă
Podele
Parchet
Ușă intrare
Metal
Uși interior
Lemn
Izolații termice
Exterior Interior
Contorizare
Apometre Contor căldură Contor gaz
Bucătărie
Mobilată
Electrocasnice
Aragaz Frigider Hotă Mașină de spălat Mașină spălat vase
Diverse
Scară interioară Senzor de fum Sistem de alarmă Telecomandă poartă acces auto
Alte spații utile
Dressing
Facilități imobil
Acoperiș Interfon Spații agrement
Utilități
Curent Apă Canalizare Gaze Telefon
Internet
Cablu Wireless
Servicii imobil
Pază
Amenajare străzi
Iluminat stradal Asfaltate
Comision
standard

Disponibilitate proprietate:

Imediat

Puncte de interes

Mijloace transport
bus-station
Jolie Ville Baneasa
Stații autobuz aprox. 1518 m
Școală
kindergarten
Scoala Gimnaziala Little London
Gradinițe aprox. 1588 m
school
Mark Twain International School
Școli aprox. 1624 m
school
British School of Bucharest
Școli aprox. 1947 m
Recreere
park
Pădurea Tunari
Parcuri aprox. 724 m
sports-ground
Teren sportiv
Terenuri sport aprox. 1554 m
supermarket
Lidl Pipera
Supermarket aprox. 1563 m
restaurant
Restaurant Tecadra
Restaurant aprox. 1764 m

Proprietăți recomandate

Detalii de contact

Abonează-te la newsletter să fii primul care primește cele mai noi recomandări de proprietăți și sfaturi de la experți.

CONTACT

Creează alertă

Salvează căutarea ca să primești pe email ultimele anunțuri publicate

Case individuale cu 4+ camere de vânzare în zona Pipera, Sector 1