11

Eleganță în Vila de Excepție | Vila cu piscina încălzită

1.800.000 €

Pipera, București

Nr. cam.:
7
Sup. utilă:
550 mp
Sup. teren:
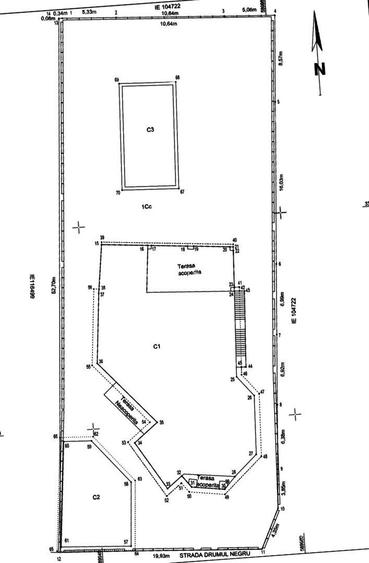
1.170 mp
Tip prop.:
Individuală
  • • Comision 0%
  • • Locație aproximativă

Descriere casă

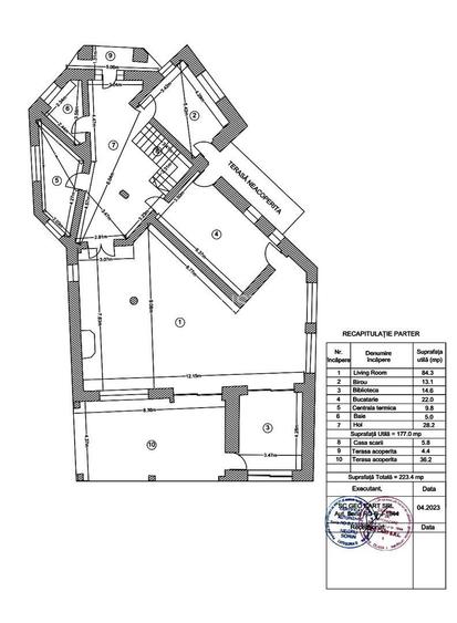
Bucurați-vă de un stil de viață luxos și confortabil în această vilă excepțională, care se remarcă prin suprafețe generoase și facilități premium, amplasată pe un lot de teren de 1200 mp, într-o oază de verdeață și liniște. Această proprietate cu un total de 700 mp construiți își întâmpină stăpânii cu o piscină mare încălzită, grădină luxuriantă cu vegetație *****ă și multe alte facilități ce vă vor face să vă simțiți acasă în fiecare zi. Caracteristici Cheie ale Proprietății: Piscină Impresionantă Încălzită: Bucurați-vă de înoturi relaxante în piscina generoasă încălzită, care adaugă o notă de răsfăț și distracție vieții de zi cu zi. Grădină Exotică cu Vegetație *****ă: Înconjurați-vă cu frumusețea naturii în grădina generoasă, unde vegetația *****ă adaugă un aer de mister și liniște, creând un sanctuar privat în mijlocul naturii. Garaj pentru Două SUV-uri Mari: Proprietatea dispune de un garaj spațios, ideal pentru a găzdui două SUV-uri de dimensiuni mari, oferindu-vă confortul și securitatea necesare pentru vehiculele dumneavoastră. Saună Relaxantă: Răsfățați-vă și relaxați-vă în saună, un loc perfect pentru a vă elibera de stres și pentru a vă revitaliza mintea și corpul. Spații Impresionante: Vila dispune de un living spațios de 85 mp, un dormitor matrimonial elegant de 65 mp, un dressing matrimonial de 23 mp, trei dormitoare pentru copii de 40 mp, 50 mp și 30 mp, un birou/bibliotecă pentru lucrul de acasă și o terasă acoperită de 40 mp, oferind suficient spațiu pentru întreaga familie și pentru momente speciale.Vila se vinde mobilată și utilată complet. Materiale de Înaltă Calitate: Construcția acestei vile deosebite s-a realizat cu materiale de cea mai înaltă calitate, cu fațada din piatră naturală, garantând durabilitate și un aspect impresionant pe termen lung. Această vilă impresionantă reprezintă o oportunitate rară de a vă bucura de luxul și confortul suprem, înconjurați de frumusețea naturii și de facilități de top. Fiecare aspect al acestei proprietăți a fost proiectat cu atenție la detalii, oferindu-vă un stil de viață rafinat și senzațional.
Citește mai mult Citește mai puțin
Mobilat Lux Grădină Piscină Curte Aer condiționat Aeroterme Centrală proprie Încălzire prin pardoseală 4 Parcări 2 Garaje

Detalii casă

ID anunț: XEQA110HV Copiat! 263157323 Copiat!
Actualizat în: 27 Decembrie 2025
Tip tranzacție: De vânzare prin agent
Suprafață construită: 223 mp
Suprafață desfășurată: 626 mp
Nr. bucătării: 1
Nr. băi: 5
Nr. balcoane / Terase / Logii: 2
Nr. terase: 2
Suprafață terase: 40 mp
Front stradal: 20.0 m
Învelitoare acoperiș: Țiglă
An construcție: 2023 (Finalizată)
Structură rezistență: Beton
Regim înălțime: P+2E
Modalitate de plată: Cash sau Credit

Utilități

Pereți
Faianță Tapet Vopsea lavabilă
Podele
Gresie Parchet Marmură
Rulouri/Obloane
Aluminiu
Ușă intrare
Metal
Uși interior
Lemn
Izolații termice
Exterior Interior
Ferestre cu geam termopan
Aluminiu
Contorizare
Apometre Contor gaz
Bucătărie
Mobilată Utilată
Electrocasnice
Aragaz Frigider Hotă Mașină de spălat Mașină spălat vase TV
Diverse
Jacuzzi Scară interioară Șemineu Senzor de fum Sistem de alarmă Telecomandă poartă acces auto Telecomandă poartă garaj
Alte spații utile
Dressing WC Serviciu
Facilități imobil
Acoperiș Interfon Piscină exterioară Saună Spații agrement Videointerfon
Utilități
Curent Apă Canalizare CATV Gaze Telefon
Internet
Cablu Wireless
Servicii imobil
Supraveghere video
Amenajare străzi
Iluminat stradal Mijloace de transport în comun Asfaltate
Comision
0%

Disponibilitate proprietate:

Imediat

Puncte de interes

Mijloace transport
bus-station
Jolie Ville Baneasa
Stații autobuz aprox. 1417 m
bus-station
Pipera Drumul Bisericii
Stații autobuz aprox. 1458 m
Școală
school
Mark Twain
Școli aprox. 222 m
school
British School of Bucharest
Școli aprox. 265 m
kindergarten
Kindergarden
Gradinițe aprox. 763 m
kindergarten
Echilibria 1
Gradinițe aprox. 883 m
Recreere
cafe
Doncafe Brasserie
Cafenea aprox. 121 m
supermarket
Billa
Supermarket aprox. 552 m
park
Loc de joaca
Parcuri aprox. 1059 m
sports-ground
Teren sportiv
Terenuri sport aprox. 1831 m

Proprietăți similare

Casă individuală cu 11 camere în Herăstrău
1.815.000 €
București, Herăstrău
11 camere
384 mp
257 mp teren
Casă individuală cu 10 camere în Pipera
1.900.000 €
București, Pipera
10 camere
777 mp
2.000 mp teren
Casă individuală cu 7 camere în Pipera
1.800.000 €
București, Pipera
7 camere
550 mp
1.170 mp teren

Detalii de contact

REALISTO

George Duduna Consultant Partener

REALISTO
PRO

Abonează-te la newsletter să fii primul care primește cele mai noi recomandări de proprietăți și sfaturi de la experți.

CONTACT

Creează alertă

Salvează căutarea ca să primești pe email ultimele anunțuri publicate

Case individuale cu 4+ camere de vânzare în zona Pipera, Sector 1