REV2001950 Sisesti - vila SMART in complex rezidential

785.000 € + TVA

Sisești, București

Nr. cam.:
5
Sup. utilă:
220 mp
Sup. teren:
500 mp
Tip prop.:
Individuală
  • • Locație aproximativă
  • • Vizionare prin apel video

Descriere casă

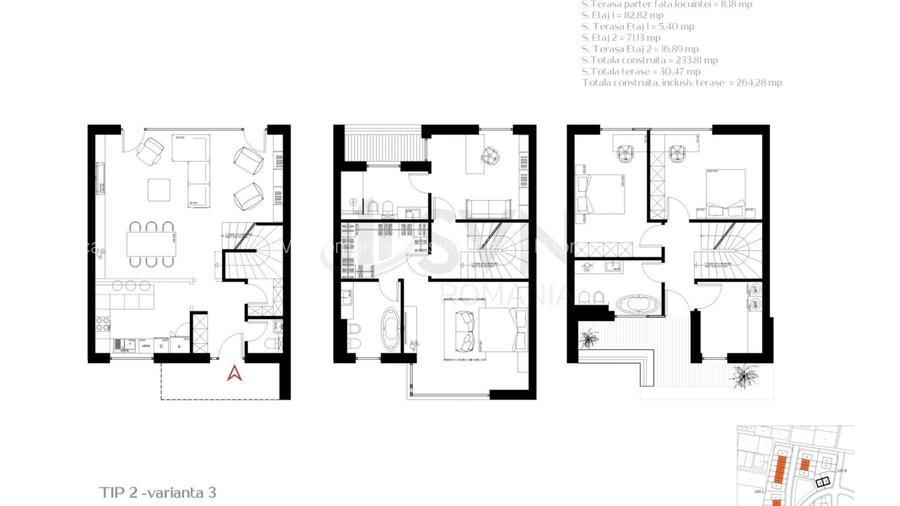
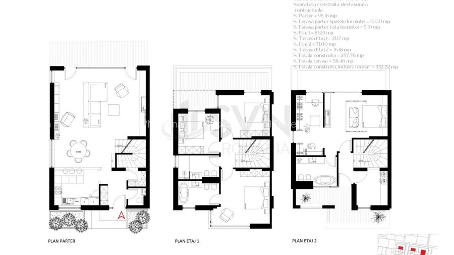
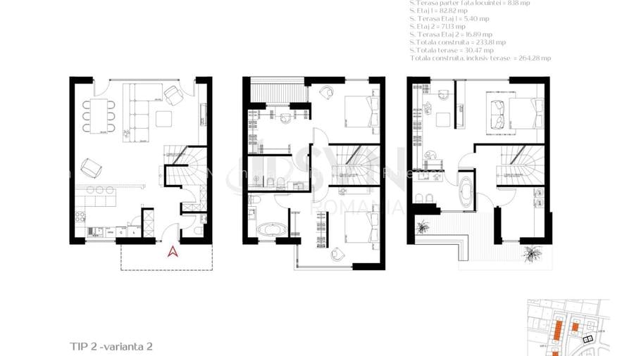
SVN Romania va propune spre vanzare o vila situata in zona Sisesti, intr-un complex rezidential cu circuit inchis, cu deschidere la lacul Grivita. Vila TIP 1 este compusa din P+E1+E2 si are in compunnenta 5 camere dispuse astfel: Parter: living, bucatarie, baie, dressing, hol, terasa Etaj 1: dormitor cu baie, 2 dormitoare, baie, terasa, hol Etaj 2: dormitor master cu dressing si baie, spatiu tehnic, terasa. Complexul este in faza de extecutie, primele vile urmand sa fie predate la sfarstul anului 2025. Predarea se va face la stadiul de alb, adica executat integral pe exterior, cu instalatiile de incalzire in pardoseala si racire prin ventiloconvectoare instalate, cu pereti interior vopsiti alb, dar fara gresie, faianta, grupuri sanitare, usi interior sau parchet. Casele ,,smart sunt proiectate pentru a indeplini noile cerinte ale pietei si provocarilor legate de asigurarea confortului, cu un cost echilibrat. Astfel, noile locuinte vor beneficia de pompe de caldura moderne ce vor functiona cu energie electrica si care vor asigura atat incalzirea cat si racirea casei. Pentru a asigura un consum de utilitati cat mai redus, casele vor fi izolate termic la cele mai inalte standarde si vor beneficia de pregatiri de sisteme care sa permita utilizarea inteligenta a resurselor, programarea si controlul de la distanta. Dotarea standard vine cu panouri solare precum si pregatirea pentru instalarea de panouri fotovoltaice, care pot reduce semnificativ impactul financiar al consumului de energie electrica. Complexul este format din vile si blocuri cu regim mic de inaltime si este dotat cu spatii de joaca pentru copii, alei pietonale largi, gradinita, paza 24/24, supraveghere video. Toate casele vor beneficia de curti generoase, cu suprafete de teren care pot varia intre 210 si 760 de metri patrati, fiecare vila beneficiind de minim doua locuri de parcare. Pentru mai multe informatii nu ezitati sa ne contactati.
Citește mai mult Citește mai puțin
Acceptă animale de companie Grădină Centrală proprie 2 Parcări

Detalii casă

ID anunț: XENT0103I Copiat! 275237247 Copiat!
Actualizat în: 10 Martie 2026
Suprafață construită: 245 mp
Suprafață desfășurată: 300 mp
Nr. bucătării: 1
Nr. băi: 4
Nr. balcoane / Terase / Logii: 2
Nr. terase: 2
An construcție: 2025 (În construcție)
Structură rezistență: Beton
Tip imobil: Casă/Vilă
Regim înălțime: P+2E

Utilități

Destinație
Rezidențial Birouri Birouri
Izolații termice
Exterior
Ferestre cu geam termopan
PVC
Diverse
Senzor de fum
Alte spații utile
WC Serviciu Spațiu depozitare
Facilități imobil
Spații agrement
Utilități
Gaze Apă Canalizare Curent
Internet
Fibră optică
Servicii imobil
Supraveghere video
Comision
Standard

Vicii:

Fără vicii.

Alte detalii:

Apartamente și case în zona Sisești

Cartierul în care se găsește zona Sisești se numește Vatra Nouă și, așa cum indică numele, face parte din ansamblurile în plină dezvoltare. Aflată în Sectorul 1, se învecinează cu Băneasa la est, Străulești la vest și Bucureștii Noi la sud.

Denumirea „Sisești” provine de la numele șoselei ce străbate Vatra Nouă, Gheorghe Ionescu Sisești și reprezintă o porțiune de legătură între două artere însemnate, DN1 și șoseaua București-Târgoviște.

Structura imobiliară însumează o serie de edificii construite, cu precădere, în ultimii 15 ani. Prin urmare, dezvoltatorii pun la dispoziție blocuri de apartamente și garsoniere/studio cu suprafețe medii și mari, cu accent pe compartimentare modernă și acces la spațiul verde. Există, de asemenea, vile și case ce dispun de curți spațioase și utilități complete.

Facilități complete în zona Sisești

Cei care vor să locuiască sau sunt deja locatari beneficiază de o mulțime de facilități în zona Sisești, cartier Vatra Nouă:

● magazine alimentare: Carrefour, Kaufland,restaurante cu specific diferit, farmacii, centre medicale;
● stații de autobuz: linia STB 205 cu legătură 261 către Băneasa, stația de metrou Străulești (magistrala 4);
● acces facil la Aeroportul Internațional „Henri Coandă” și Aeroportul Băneasa pentru oamenii de afaceri care călătoresc des.

Disponibilitate proprietate:

Disponibil din 14/10/2025.

Puncte de interes

Mijloace transport
bus-station
Statia Bulevardul Apicultorilor linii : 205,261
Stații autobuz aprox. 221 m
bus-station
Statia Oaspetilor, linia 261
Stații autobuz aprox. 285 m
tram-station
Statie Cartier Damaroaia Tv24
Stații tramvai aprox. 1451 m
tram-station
Cartier Damaroaia
Stații tramvai aprox. 1451 m
Școală
university
Universitatea Biotera
Universități aprox. 247 m
university
Universitatea Bioterra
Universități aprox. 247 m
school
International School for Primary Education, Bucharest (en)
Școli aprox. 409 m
kindergarten
Gradinita
Gradinițe aprox. 1913 m
Recreere
restaurant
Vatra Noua
Restaurant aprox. 268 m
sports-ground
Teren sportiv
Terenuri sport aprox. 1108 m
park
Parc
Parcuri aprox. 1288 m
supermarket
SELGROS Baneasa
Supermarket aprox. 1574 m

Detalii despre preț și costuri

Costuri cu achiziția

Fără credit
35.494 RON
Credit ipotecar
40.637 RON
Noua casă
4.978 RON+ taxe notariale

i

Costuri adiționale mai puțin știute la achiziție: taxe notariale, comisioane etc.

Proprietăți similare

Casă individuală cu 6 camere în Sisești
726.000 € + TVA
București, Sisești
6 camere
220 mp
300 mp teren
Casă individuală cu 7 camere în Sisești
760.000 €
București, Sisești
7 camere
260 mp
260 mp teren
Casă individuală cu 11 camere în Sisești
850.000 €
București, Sisești
11 camere
410 mp
652 mp teren

Detalii de contact

Abonează-te la newsletter să fii primul care primește cele mai noi recomandări de proprietăți și sfaturi de la experți.

CONTACT

Creează alertă

Salvează căutarea ca să primești pe email ultimele anunțuri publicate

Case individuale cu 4+ camere de vânzare în zona Sisești, Sector 1