1

Casa Renovabila/ Curte/ Colentina

145.000 €

Colentina, București

Nr. cam.:
4
Sup. utilă:
90 mp
Sup. teren:
249 mp
Tip prop.:
Individuală
  • • Locație aproximativă

Descriere casă

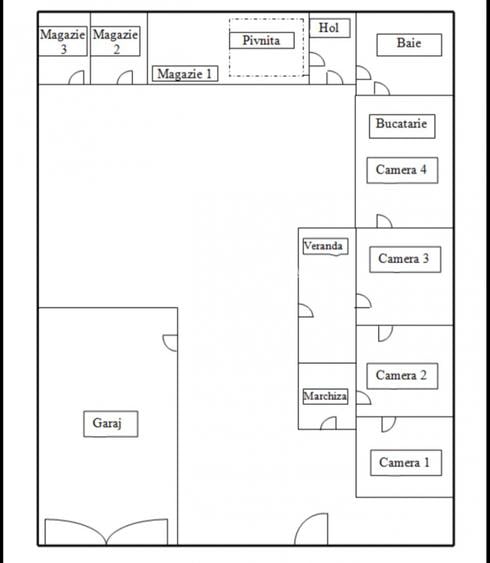
ID proprietate: P16644 Buna ziua! Dorim sa va prezentam una din proprietatile aflate in gestiunea agentiei . Mai multe imobile similare si oferte de finantare accesand Acest imobil este situat intr-o zona de mare interes din Bucuresti si anume Colentina, ce ofera acces la multe facilitati din imprejurimi, precum restaurante , scoli, parc, centre comerciale Casa are o suprafata utila de 90 mp si teren de 249 mp . Terenul are o deschidere la strada de 12m; Casa dispune de 4 camere, marchiza, veranda, baie, Garaj, beci, utilitati. Facilitati : Incalzire gaze, apa curenta, canalizare, 2 sobe teracota functionale. Scoala si gradinita in apropiere. Comerturi la 5 minute de mers pe jos: Carrefour, Dedeman, Kaufland si altele. Transport: Tramvai, Autobuz si in curand Metrou. Incalzirea acestui imobil se face prin soba teracota. Pretul imobilului este de 145.000€ . Acest imobil poate fi achizitionat cash, credit ipotecar, credit noua casa. Oferim consultanta si solutii de finantare GRATUIT, prin intermediul celor mai importante institutii bancare din Romania. Pentru o posibila vizionare, detalii sau oferte similare, nu ezitati sa ma contactati! Mai multe imobile similare si oferte de finantare, dar si alte servicii pe . Echipa ''Cine cauta, gaseste." Pentru aceasta proprietate se percepe comision!
Citește mai mult Citește mai puțin
Sobă/teracotă Necesită renovare

Detalii casă

ID anunț: XCH1110B7 Copiat! 275443633 Copiat!
Actualizat în: 16 Aprilie 2026
Suprafață construită: 90 mp
Nr. bucătării: 1
Nr. băi: 1
Front stradal: 12 m
An construcție: 1960 (Finalizată)
Structură rezistență: Cărămidă
Regim înălțime: P

Utilități

Contorizare
Apometre Contor gaz
Utilități
Curent Apă Canalizare Gaze
Amenajare străzi
Asfaltate Iluminat stradal Mijloace de transport în comun
Comision
3%+TVA

Disponibilitate proprietate:

imediat

Puncte de interes

Mijloace transport
bus-station
Liceul Victor Babes
Stații autobuz aprox. 889 m
bus-station
Statia Liceul Victor Babes linia 182
Stații autobuz aprox. 926 m
tram-station
Nicolae Canea
Stații tramvai aprox. 1198 m
train-station
p.o. Pantelimon Sud
Stații tren aprox. 1505 m
Școală
school
Colegiul national Victor Babes
Școli aprox. 798 m
school
Scoala
Școli aprox. 809 m
school
"Victor Babes" Highschool (en)
Școli aprox. 829 m
university
Universitatea Lumina
Universități aprox. 1963 m
Recreere
supermarket
Alege
Supermarket aprox. 314 m
park
Parc
Parcuri aprox. 400 m
hypermarket
Carrefour
Hipermarket aprox. 976 m
mall
Dragonul Rosu 2
Mall aprox. 1598 m

Detalii despre preț și costuri

Costuri cu achiziția

Fără credit
Credit ipotecar
Noua casă

i

Costuri adiționale mai puțin știute la achiziție: taxe notariale, comisioane etc.

Insight premium disponibil după login

Proprietăți similare

Casă individuală cu 3 camere în Colentina
155.000 €
București, Colentina
3 camere
84 mp
318 mp teren
Casă individuală cu 4 camere în Colentina
148.000 €
București, Colentina
4 camere
110 mp
200 mp teren
Casă individuală cu 4 camere în Pantelimon
158.000 €
București, Pantelimon
4 camere
130 mp
300 mp teren

Detalii de contact

CAUTLOCUINTA.RO

Elena Violeta Badea consultant imobiliar

CAUTLOCUINTA.RO
PRO

Abonează-te la newsletter să fii primul care primește cele mai noi recomandări de proprietăți și sfaturi de la experți.

CONTACT

Creează alertă

Salvează căutarea ca să primești pe email ultimele anunțuri publicate

Case individuale cu 4+ camere de vânzare în zona Colentina, Sector 2