CODE AN541-OC
RO:
CASĂ LA PREȚ EXCELENT – 1280 EUR/mp util – preț total 367.000 EUR
285 mp suprafață utilă / 290 mp suprafață totală / S+P+M
Sector 2, zona Dacia, Strada Ocolului, lângă nr. 13
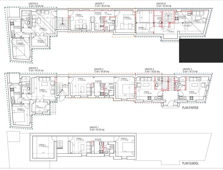
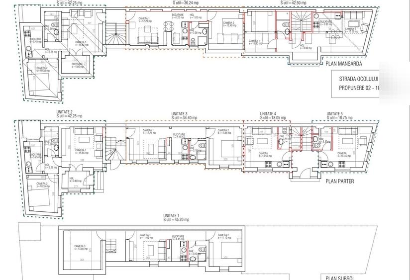
Compartimentare:
Mansardă:
Unitatea 6 – 43 mp
Unitatea 7 – 37 mp
Unitatea 8 – 43 mp
Total: 123 mp
Parter:
Unitatea 2 – 43 mp
Unitatea 3 – 35 mp
Unitatea 4 – 19 mp
Unitatea 5 – 19 mp
Total: 116 mp
Subsol:
Unitatea 1 – 46 mp
Suprafață utilă totală: 285 mp
Curte comună între 2 case de aproximativ 80 mp, care necesită reamenajare.
Planurile arhitecturale sunt disponibile.
Situată pe o stradă liniștită, proprietatea beneficiază de posibilități de parcare în zonă. Parcarea în curte nu este posibilă.
Casa este individuală, nealipită de alte construcții, construită în jurul anului 1925 din cărămidă și beton.
Imobilul nu este încadrat în risc seismic sau urgență și nu este monument istoric.
Actele sunt la zi.
Ideală pentru:
sediu de firmă
investiție Airbnb cu mai multe unități
locuință multifuncțională
boutique office sau proiect de renovare
Important:
Imobilul necesită renovare completă și momentan nu dispune de curent electric.
Scuze pentru calitatea pozelor – avem și prezentare video pe TikTok.
Vizionările se realizează doar pe timpul zilei.
EN:
HOUSE AT AN EXCELLENT PRICE – 1280 EUR/sqm usable area – total price 367,000 EUR
285 sqm usable area / 290 sqm total area / Basement + Ground Floor + Attic (S+P+M)
Sector 2, Dacia area, Ocolului Street near no. 13
Layout:
Attic:
Unit 6 – 43 sqm
Unit 7 – 37 sqm
Unit 8 – 43 sqm
Total: 123 sqm
Ground Floor:
Unit 2 – 43 sqm
Unit 3 – 35 sqm
Unit 4 – 19 sqm
Unit 5 – 19 sqm
Total: 116 sqm
Basement:
Unit 1 – 46 sqm
Total usable area: 285 sqm
Shared courtyard between 2 houses of approximately 80 sqm, requiring renovation.
Architectural plans are available.
Located on a quiet street, the property benefits from parking availability in the area. Parking inside the courtyard is not possible.
Detached house, not attached to neighboring buildings, built around 1925 from brick and concrete.
The property has no seismic risk or emergency classification and is not listed as a historical monument.
All documents are up to date.
Ideal for:
company headquarters
multiple Airbnb units
multifunctional residence
boutique office or renovation project
Important:
The property requires full renovation and currently has no electricity connection.
Apologies for the photo quality – we also have a video presentation available on TikTok.
Viewings are available during daytime only.
Sediul central - Timișoara
Bulevardul Victor Babeș nr. 2, 300230, Timișoara, România
Tel: +40.374.40.44.98 / Fax: +40.256.401.179
Email: suport@imobiliare.ro
Luni - Vineri 08:00 - 20:00
Punct de lucru - București: Iride Business Park, Bld. Dimitrie
Pompeiu 9-9A, Clădirea B2B,
020335, Sector 2, București, România
CONTACT
Sediul central - Timișoara
Bulevardul Victor Babeș nr. 2, 300230, Timișoara, România
Tel: +40.374.40.44.98 / Fax: +40.256.401.179
Email: suport@imobiliare.ro
Luni - Vineri 08:00 - 20:00
Punct de lucru - București: Iride Business Park, Bld. Dimitrie
Pompeiu 9-9A, Clădirea B2B,
020335, Sector 2, București, România
Sună acum și cere detalii sau programează o vizionare.
Nu rata ocazia să afli mai multe!
Sună acum și cere detalii sau programează o vizionare.
Cere detalii prin email
*
*
*
*
Stații tramvai
Stații autobuz
Stații metrou
Stații troleibuz
Școli
Gradinițe
Universități
Supermarket
Mall
Parcări
Parcuri
Terenuri sport
Piețe publice
Spital
Farmacie
Restaurant
Bar
Cafenea
Pub
Bancă
Mihai Eminescu
aprox.
58 m
Statia Mihai Eminescu; Linia:16
aprox.
112 m
Statia Toamnei; Linia:16
aprox.
282 m
Toamnei
aprox.
296 m
Statia Piata Gemeni; Linia:5, 16
aprox.
321 m
Teatrul Metropolis
aprox.
461 m
Teatrul Metropolis
aprox.
528 m
Dr. Grozovici
aprox.
584 m
Dr. Grozovici
aprox.
588 m
Statia Calea Mosilor; Linia: 21
aprox.
603 m
Mihai Eminescu
aprox.
603 m
Vasile Lascar
aprox.
618 m
Maria Rosetti
aprox.
628 m
Mihai Eminescu
aprox.
633 m
Vasile Lascar
aprox.
645 m
Mihai Eminescu
aprox.
112 m
Statia Dr. Grozovici, linia 330, 335, 1, 46
aprox.
592 m
Statia Vasile Lascar, linia 330, 335, 1, 46
aprox.
659 m
Statia Lizeanu / Soseaua Stefan cel Mare, linia 330, 335, 1, 16, 46
aprox.
660 m
Statia Fainari; Liniile:N101, 66
aprox.
678 m
Maria Rosetti
aprox.
688 m
Statia Bucur Obor; Liniile:143, 254, N101, 101
aprox.
824 m
Statia Soseaua Stefan cel Mare / Stadion Dinamo, linia N123,1, 5, 46
aprox.
853 m
Obor
aprox.
853 m
Batistei
aprox.
878 m
Statia Batistei; Linia:N123
aprox.
888 m
Stefan cel Mare
aprox.
910 m
Batistei
aprox.
938 m
Statia Foisorul de Foc linia 133, 135, N108,69, 85, 79, 86
aprox.
1000 m
Statia Soseaua Stefan cel Mare / Stadion Dinamo, linia 1, 5, 46, N123
aprox.
1016 m
Statia Metrou Piata Obor(M1)Metrorex
aprox.
858 m
Metrorex. Stația Obor (M1)(1989)(Fosta statie de tramvai subterana)
aprox.
884 m
Metrorex. Stația Ștefan cel Mare (M1)(1989)
aprox.
966 m
Statia Metrou Piata Romana(M2)Metrorex
aprox.
1289 m
Statia Metrou Piata Romana(M2)Metrorex
aprox.
1305 m
Metrorex. Stația Piața Romană (M2)(1988)
aprox.
1306 m
Piata Romana (M2)
aprox.
1306 m
Statia Soseaua Mihai Bravu, linia 14
aprox.
1340 m
Metrorex. Stația Universitate (M2)(1987)
aprox.
1535 m
Universitate (M2)
aprox.
1610 m
Statia Metrou Piata Universitatii(M2)Metrorex
aprox.
1614 m
Statia Metrou Piata Universitatii(M2)Metrorex
aprox.
1655 m
Statia Foisorul de Foc linii : 79,86
aprox.
955 m
Statia Calea Dorobantilor; Liniile:79, 86,
aprox.
1142 m
Statia Piata Romana linii : 79,86
aprox.
1334 m
Statia Mihai Bravu; Liniile:69, 85,
aprox.
1334 m
Statia Soseaua Mihai Bravu, linia 68,85
aprox.
1340 m
Statia Teiul Doamnei, linia 66
aprox.
1488 m
Statia Soseaua Pantelimon 85, 69
aprox.
1619 m
Statia Piata Iancului, linia 55
aprox.
1629 m
Colegiul National "Cantemir-Voda"
aprox.
218 m
Scoala Pentru Hipoacuzici
aprox.
268 m
Liceul Tehnologic Special nr. 3
aprox.
275 m
Gradinita Magnolia
aprox.
337 m
Scoala Postliceala Carol Davila (en)
aprox.
374 m
ȘCOALA DE ARTE ȘI MESERII NR. 3
aprox.
484 m
Scoala de Arte si Meserii Nr. 3
aprox.
510 m
Grădinița (en)
aprox.
555 m
Scoala nr. 23
aprox.
582 m
Școala Nr. 23 Sf. Silvestru (en)
aprox.
584 m
Scoala generala nr. 24
aprox.
705 m
Scoala nr. 24
aprox.
705 m
Cursuri Paleologu
aprox.
766 m
Școala Centrală din Bucuresti
aprox.
801 m
Scoala Centrala
aprox.
802 m
Gradinita numarul 8
aprox.
419 m
Gradinita numarul 133
aprox.
597 m
Gradinita numarul 257
aprox.
600 m
Gradinita nr. 138 cu program prelungit
aprox.
744 m
Gradinita Ioanid
aprox.
820 m
Ioanid
aprox.
833 m
Gradinita
aprox.
960 m
Gradinita nr. 203 program prelungit
aprox.
1123 m
Gradinita nr.203 (fosta Clementa)
aprox.
1124 m
Gradinita nr. 85
aprox.
1136 m
Gradinita nr. 252 cu program prelungit
aprox.
1230 m
Gradinita nr.4 "Lizuca"
aprox.
1255 m
Gradinita Magica
aprox.
1294 m
Amalia's Kindergarten (en)
aprox.
1348 m
Gradinita numarul 135
aprox.
1390 m
CROS - Universitatea Alternativa
aprox.
807 m
Rectoratul UMF "Carol Davila"
aprox.
1132 m
ASE - Cibernetica
aprox.
1175 m
Universitatea Spiru Haret - Facultatea de Medicina veterinara
aprox.
1175 m
Universitatea din Bucuresti - Facultatea de Stiinte Politice
aprox.
1183 m
Facultatea de Stiinte Politice
aprox.
1194 m
ASE Cibernetica (en)
aprox.
1214 m
ASE - Facultatea de Comert
aprox.
1222 m
University of Bucharest - Faculty of Foreign Languages and Literatures (en)
aprox.
1230 m
Centrul de Limbi Straine Ariel
aprox.
1236 m
Amfiteatrele ASE
aprox.
1309 m
ASE - Cladirea Cihoschi
aprox.
1310 m
Facultatea de Instalatii (en)
aprox.
1314 m
ASE - Sala de sport
aprox.
1319 m
Academia de Studii Economice
aprox.
1333 m
Mega Image Concept Store
aprox.
367 m
Mega Image
aprox.
503 m
Stock Market
aprox.
655 m
Mega Image Supermarket
aprox.
664 m
Mega Image Fainari
aprox.
676 m
Mega Image Lizeanu Non-Stop
aprox.
679 m
Mega Image
aprox.
692 m
Mega Image - Icoanei
aprox.
716 m
Mega Image
aprox.
820 m
OK Non-stop Supermarket (en)
aprox.
849 m
OK Non-Stop
aprox.
849 m
Mega Image
aprox.
858 m
Bucur Obor
aprox.
1071 m
Bacania Coco
aprox.
1079 m
Mega Image
aprox.
1083 m
"METROPLIS CENTER"
aprox.
1434 m
Parcare
aprox.
331 m
Parcare
aprox.
497 m
Parcare
aprox.
781 m
Parcare
aprox.
781 m
Parcare
aprox.
946 m
Parcare
aprox.
958 m
Parcare
aprox.
990 m
Parcare
aprox.
1034 m
Parcare
aprox.
1037 m
Parcare
aprox.
1038 m
Parcare
aprox.
1051 m
Parcare
aprox.
1051 m
Parcare
aprox.
1061 m
Parcare
aprox.
1066 m
Parcare
aprox.
1083 m
Parc
aprox.
188 m
Parc
aprox.
194 m
Parc
aprox.
454 m
Parc
aprox.
610 m
Parcul Ion Voicu
aprox.
759 m
Parcul "Ioanid"
aprox.
767 m
Parc
aprox.
863 m
Parc
aprox.
886 m
60 Minutes
aprox.
903 m
Gradina Icoanei
aprox.
915 m
Parcul "Grădina Icoanei"
aprox.
922 m
Rond
aprox.
979 m
Parculet
aprox.
987 m
Parc
aprox.
1016 m
Obor Park (en)
aprox.
1028 m
Respawn B
aprox.
904 m
Etaj 1 - Hala CQB
aprox.
988 m
Parter - Hala mare
aprox.
995 m
Gradinita
aprox.
1001 m
Respawn A
aprox.
1026 m
Stadionul Dinamo
aprox.
1238 m
Teren sportiv
aprox.
1343 m
Teren sportiv
aprox.
1346 m
Teren sportiv
aprox.
1394 m
Teren sportiv
aprox.
1432 m
Teren sportiv
aprox.
1459 m
Teren sportiv
aprox.
1649 m
Teren sportiv
aprox.
1686 m
Teren sportiv
aprox.
1896 m
Teren sportiv
aprox.
1944 m
Piata Bucur Obor
aprox.
961 m
Piata Latina
aprox.
1066 m
Piața Romană
aprox.
1366 m
Piata Rosetti
aprox.
1384 m
Piata Universitatii
aprox.
1559 m
Piata Revolutiei
aprox.
1594 m
Piata Iancului
aprox.
1703 m
Piața Drapelului (Tricolorului)
aprox.
1886 m
Piata Roma
aprox.
1949 m
SERVICIUL DE AMBULANTA BUCURESTI-ILFOV
aprox.
285 m
Cabinet Gineco
aprox.
321 m
Centrul medical Sanatatea TA
aprox.
353 m
Optim Sano
aprox.
391 m
Clinica de oftalmologie Ama Optimex
aprox.
398 m
Spitalul Cantacuzino
aprox.
418 m
Institutul de Diabet NCPaulescu (en)
aprox.
442 m
Dacia Medical Center
aprox.
462 m
Clinica Audionova
aprox.
508 m
PAVILIONUL A
aprox.
627 m
Laurus Medical
aprox.
660 m
PAVILIONUL F
aprox.
660 m
Puls
aprox.
665 m
Centrul Medical Hiperdia
aprox.
686 m
PAVILIONUL G
aprox.
687 m
Colvimed
aprox.
348 m
Farmacia Artafarm
aprox.
379 m
Sensiblu
aprox.
472 m
Farmacia Ana Maria
aprox.
514 m
Farmacia Belladonna 38
aprox.
547 m
Catena
aprox.
560 m
Belladonna 43
aprox.
566 m
Pharma Life
aprox.
572 m
Farmaciile Reteta
aprox.
579 m
Farmacie
aprox.
580 m
Flavona
aprox.
580 m
Farmacia Alissa Retail
aprox.
580 m
Help Net Farma
aprox.
582 m
Farmaciamerk 2 Pharma
aprox.
599 m
Farmacia Humanitas
aprox.
601 m
Amore Trattoria
aprox.
118 m
Templul Soarelui
aprox.
121 m
Saphir
aprox.
159 m
El Vino Tapas & Wine
aprox.
171 m
La Taverna Bar & Grill
aprox.
242 m
Zexe Zahana
aprox.
282 m
Newton Restaurant (en)
aprox.
298 m
Torega
aprox.
312 m
Rotiseria Dacia 131
aprox.
313 m
cam aici ar fi Restaurant Lotca
aprox.
411 m
Marele Zid
aprox.
412 m
Haveli
aprox.
416 m
Luna
aprox.
454 m
Bistro
aprox.
470 m
Il Destino
aprox.
476 m
E... Varza
aprox.
471 m
MIM Bistro
aprox.
485 m
Alan Dala
aprox.
619 m
Trei Betivi
aprox.
731 m
Lokal
aprox.
779 m
La Baraca
aprox.
971 m
ACAB Pub
aprox.
1031 m
Antic Bar
aprox.
1055 m
Voltage Bar
aprox.
1064 m
Piua Book Bar
aprox.
1071 m
Geo Bar
aprox.
1083 m
Zappa Rock & More
aprox.
1169 m
Que Pasa
aprox.
1182 m
Cup & Cake
aprox.
1209 m
RSS Pub
aprox.
1242 m
Shiva
aprox.
614 m
Smart Change
aprox.
685 m
Slot Cafe
aprox.
850 m
Cappucini
aprox.
946 m
Hathor Cafe
aprox.
967 m
Hobby Caffe & Shop
aprox.
1014 m
Newton Caffe
aprox.
1023 m
Vesuvio Cafe
aprox.
1033 m
Cafe Lautrec
aprox.
1055 m
5 To Go Lahovari
aprox.
1057 m
OstrawVegan
aprox.
1074 m
Lente Arcului
aprox.
1107 m
Carla Caffe
aprox.
1122 m
Music Rooms Cafe
aprox.
1122 m
Lente Praporgescu
aprox.
1125 m
Smart's Pub & Bistro
aprox.
631 m
Waldo's
aprox.
666 m
Open Pub
aprox.
790 m
Bluzz
aprox.
953 m
Panik & Pub
aprox.
1000 m
Terasa Rustica Foisor
aprox.
1005 m
OLD NICK PUB
aprox.
1072 m
Have a Cigar
aprox.
1222 m
Le Boutique Food Concept Store
aprox.
1283 m
Restaurant-pizzerie BONA DA ELENA
aprox.
1316 m
Studio Martin
aprox.
1413 m
Club Surubelnita
aprox.
1493 m
La Scena
aprox.
1637 m
Coloseum
aprox.
1688 m
Clock`s
aprox.
1725 m
BRD Vasile Lascar
aprox.
312 m
Raiffeisen Bank - Agentia Lizeanu
aprox.
566 m
Raiffeisen Bank - Agentia Mosilor
aprox.
574 m
Raiffaisen bank
aprox.
574 m
BRD
aprox.
576 m
BRD Mosilor
aprox.
582 m
Banca Carpatica
aprox.
582 m
UniCredit Bank - Ag. Lizeanu
aprox.
591 m
Piraeus Bank
aprox.
606 m
Sucursala ING Bank (en)
aprox.
608 m
Banca Romaneasca
aprox.
615 m
ING Stefan cel Mare - Lizeanu
aprox.
627 m
BRD Lizeanu
aprox.
628 m
BCR
aprox.
635 m
BCR
aprox.
641 m
Zona Ștefan cel Mare - Dacia - Eminescu - Armenească este destul de bine conectată cu alte cartiere din București prin intermediul mijloacelor de transport în comun. Printre acestea amintim autobuzul 605 pe care îl poți lua pentru a ajunge la mall-ul Băneasa Shopping City, tramvaiul 16 care te poate ajuta să ajungi la Piața Sf. Vineri și troleibuzul 86 care oferă o legătură directă cu Gara de Nord. Mai multe stații de metrou sunt și ele disponibile în apropiere. Este vorba despre Ștefan cel Mare și Obor, aflate pe magistrala 1 Dristor - Pantelimon, și despre Piața Romană și Universitate situate pe traseul magistralei 2 Berceni-Pipera. Consultă harta pentru a afla poziționarea exactă a stațiilor mijloacelor de transport în comun.
În zona Ștefan cel Mare - Dacia - Eminescu - Armenească vei găsi mai multe unități de învățământ, de stat și private. Amintim astfel Colegiul Național Școala Centrală de lângă Parcul Grădina Icoanei, Colegiul Național "Spiru Haret" de pe Strada Italiană, Colegiul Național "Cantemir Vodă" și Liceul Economic "Virgil Madgearu", ambele situate pe Bulevardul Dacia. Școala Sanitară Postliceală "Carol Davila" se află și ea în această zonă, iar Academia de Studii Economice din București poate fi găsită în apropiere, la Piața Romană. Consultă harta pentru a vedea care vor fi cele mai apropiate grădinițe, școli și licee de viitoarea ta locuință.
În această zonă vei găsi, în principal, magazine mici și câteva supermarketuri. La intersecția dintre Bulevardul Dacia și Strada Vasile Lascăr vei avea la dispoziție Piața Gemeni și un concept store Mega Image. Cel mai apropiat mall este situat în zona Obor. Este vorba despre Veranda Mall, unul dintre cele mai noi astfel de centre comerciale din București. Tot aici găsești magazinul Bucur Obor și o piață. Cu mașina poți ajunge destul de rapid și la mall-ul Promenada sau la complexul comercial cu magazin Kaufland și Carrefour Market de pe Strada Barbu Văcărescu. Consultă harta și află ce alte opțiuni mai ai aproape de viitoarea ta casă, dar și în împrejurimi.
Îți recomandăm să verifici dacă există posibilitatea închirierii unui loc de parcare în apropierea locuinței de care ești interesat. Poți face acest lucru apelând la Serviciul Parcări din cadrul ADP Sector 2. Atunci îți aducem în atenție faptul că Bulevardul Dacia, Strada Mihai Eminescu și Strada Polonă sunt unele dintre cele mai circulate din această zonă. Trafic intens vei întâlni, totodată, la intersecția dintre Calea Dorobanți, Bulevardul Dacia și Strada Mihai Eminescu. Aglomerație vei găsi și pe Bulevardul Ștefan cel Mare, mai ales la orele de vârf și în zilele în care se organizează evenimente sportive în cadrul stadionului Dinamo. Consultă harta și vezi unde se găsesc principalele parcări din această zonă.
În zona Ștefan cel Mare - Dacia - Eminescu - Armenească se organizează periodic diferite evenimente, de la ateliere, la festivaluri și demonstrații de artă stradală. Dacă te vei muta în această parte a orașului, vei avea la doi pași de casă mai multe ceainării, restaurante, spații unde se organizează jocuri de tip escape room și trei teatre - Țăndărică, Metropolis și Bulandra. Pentru evenimente culturale și seri de film vei putea merge pe Bulevardul Dacia, la Institutul Francez din București. Ajungi repede și în centru, unde poți fi spectatorul unei piese puse în scenă de actorii Teatrului Național București. Parcurile Grădina Icoanei și Ioanid, deși sunt destul de restrânse ca suprafață, sunt unele dintre cele mai frumoase din această parte a orașului. Totodată, în nordul acestei zone, în imediata apropiere a Șoselei Ștefan cel Mare, vei găsi Circul Metropolitan București și parcul acestuia, iar în vecinătatea lor Stadionul Dinamo și complexul său sportiv. Nu uita, totodată, că din această zonă vei ajunge destul de rapid în Centrul Vechi, unde pe lângă terase și restaurante găsești și câteva obiective turistice care merită vizitate măcar o dată. Află ce alte puncte de interes găsești în zona Ștefan cel Mare - Dacia - Eminescu - Armenească și din vecinătatea acesteia. Consultă harta.
Dacă te vei muta în această zonă, vei avea la dispoziție mai multe spitale și clinici private. Printre acestea se numără Spitalul Clinic Dr. Ion Cantacuzino din zona Pieței Gemeni și Spitalul Ion Stroia . Alte unități sanitare din vecinătate sunt Spitalul Clinic Colentina, Spitalul Sf. Ștefan, Spitalul Clinic de Urgență București (cunoscut și ca Floreasca) și Spitalul Euroclinic din rețeaua privată de sănătate Regina Maria. Toate acestea sunt concentrate în nordul zonei Ștefan cel Mare - Dacia - Eminescu - Armenească, în vecinătatea Stadionului Dinamo și a Parcului Circului. Vezi pe hartă localizarea exactă a unităților medicale de mai sus.
Presărate pe străzile din această zonă găsești mai multe terase și restaurante mici. Câteva dintre cele mai cochete se află în vechiul cartier Armenesc. De aici ajungi extrem de repede și în Centrul Vechi al orașului, pentru mai multă diversitate. Fiind atât de aproape de centrul orașului, vei avea la dispoziție extrem de multe opțiuni. Restaurantele și cafenelele din Dorobanți sau de pe Calea Floreasca pot fi cu siguranță pe gustul tău. Dacă vrei să faci și o plimbare, să admiri arhitectura frumoasă a vechilor clădiri din București și să te oprești la o cafea sau la o prăjitură, atunci Calea Victoriei poate fi ideală. Pentru o mică gustare sau un meniu fast food ai mai multe variante în zona Obor, iar dacă te grăbești atunci poți încerca drive through-ul McDonald"™s de pe Strada Barbu Văcărescu. Aruncă o privire pe hartă și vezi ce alte restaurante, terase sau cafenele ai în zonă.
Găsești mai multe sucursale bancare și ATM-uri în special pe Șoseaua Ștefan cel Mare. Aruncă o privire pe hartă și vezi ce alte opțiuni găsești în apropierea viitoarei tale locuințe.
Înainte să pleci...
Ești sigur că ai văzut și aceste proprietăți?
349.000 €
București, Pantelimon
5 camere
205 mp
220 mp teren
389.999 €
București, Andronache
5 camere
143 mp
618 mp teren
349.936 €
București, Dacia
8 camere
320 mp
107 mp teren
Creează alertă
Salvează căutarea ca să primești pe email ultimele anunțuri publicate
Case individuale cu 4+ camere de vânzare în zona Dacia, Sector 2
Cere detalii prin email
*
*
*
*
Detaliile tale de contact vor fi partajate cu Bunny Property Management Bucharest