Vila Spatarul Mihai | Comision 0 | An 2012 | 1700 euro MP

380.000 €

Obor, București

Nr. cam.:
10
Sup. utilă:
223,37 mp
Sup. teren:
336 mp
Tip prop.:
Individuală
  • • Comision 0%
  • • Exclusivitate
  • • Locație exactă
  • • Vizionare prin apel video

Descriere casă

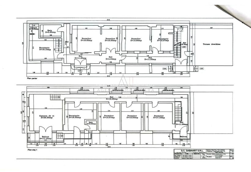
Va propunem spre achizitie o vila spatioasa pe strada Spatarul Mihai, in zona Doamna Ghica Colentina, in sectorul 2. Dispune de un teren de 336 mp, cu amprenta la sol a cladirii de 151.51 mp si o curte libera de aproximativ 184.49 mp. Vila este dispusa pe S+P+1E+Pod. Compartimentarea actuala permite impartirea in 3 apartamente distincte (doua pe parter si unul la etajul 1). Curtea este dispusa pe lung, fiind suficient de spatioasa pentru parcarea unei masini, amenajarea unei gradini, o zona de foisor in spatele casei, cat si o anexa pentru depozitare. Cu o suprafata utila de 223.37 mp, terasa deschisa la etajul 1 de 11.15 mp, si finisaje moderne, aceasta proprietate se preteaza pentru diverse activitati, incluzand scopul rezidential, dar si comercial, birouri, operare in regim hotelier, clinica, etc. In 2012 proprietatea a fost complet refacuta cu autorizatie de construire, extindere, consolidare si supraetajare cu un nivel a cladirii locuintei existente cu subsol partial si parter, cu regim final de inaltime S+P+1E+pod. Acoperisul este realizat pe sarpanta din lemn si invelitoare din tigla metalica. Tamplaria este realizata din PVC, culoare maron, cu geam dublu termoizolant. Suprastructura cladirii este realizata cu pereti structurali din zidarie, caramida portanta, stalpi si grinzi din beton armat prevazute perimetral ca urmare a consolidarii (cu fundatii izolate sub stalpii din beton armat), la nivelul parterului si pereti din BCA, cu stalpi si grinzi din beton armat, prevazute perimetral, la nivelul etajului 1. Proprietatea se vinde mobilata si utilata. Va rugam sa parcurgeti si turul virtual al proprietatii care poate fi gasit pe aceasta pagina. Pentru detalii suplimentare si programarea unei vizionari, va stam la dispozitie.
Citește mai mult Citește mai puțin
Parțial mobilat Grădină Aer condiționat Calorifere Centrală proprie Beci 2 Parcări

Detalii casă

ID anunț: XDVL11030 Copiat! 275439872 Copiat!
Actualizat în: 17 Aprilie 2026
Suprafață construită: 151 mp
Suprafață desfășurată: 319.6 mp
Nr. bucătării: 3
Nr. băi: 4
Nr. balcoane / Terase / Logii: 2
Nr. terase: 1
Suprafață terase: 11.15 mp
Învelitoare acoperiș: Țiglă
An construcție: 2012 (Finalizată)
Structură rezistență: Beton
Regim înălțime: S+P+1E

Utilități

Pereți
Faianță Vopsea lavabilă
Podele
Gresie Parchet
Ușă intrare
Metal
Izolații termice
Exterior
Ferestre cu geam termopan
PVC
Bucătărie
Mobilată Utilată
Electrocasnice
Aragaz Frigider Hotă Mașină de spălat TV
Diverse
Scară interioară
Alte spații utile
Dressing WC Serviciu
Facilități imobil
Spații agrement
Utilități
Curent Apă Canalizare CATV Gaze Telefon
Internet
Cablu
Amenajare străzi
Iluminat stradal Mijloace de transport în comun Asfaltate
Comision
0%

Disponibilitate proprietate:

Imediat

Puncte de interes

Mijloace transport
bus-station
Statia Doamna Ghica, linia 143
Stații autobuz aprox. 353 m
tram-station
Statia Suveica, linia 21
Stații tramvai aprox. 579 m
trolleybus-station
Statia Teiul Doamnei, linia 66
Stații troleibuz aprox. 633 m
train-station
Gara Obor Bucuresti-EST
Stații tren aprox. 751 m
Școală
school
Scoala Generala nr.25
Școli aprox. 89 m
school
Atelier
Școli aprox. 104 m
kindergarten
Gradinita Sakura
Gradinițe aprox. 258 m
university
Universitatea Spiru Haret - Facultatea de Medicina veterinara
Universități aprox. 928 m
Recreere
sports-ground
Teren sportiv
Terenuri sport aprox. 89 m
supermarket
Penny Market
Supermarket aprox. 239 m
park
Parc
Parcuri aprox. 510 m
public-square
Piata Bucur Obor
Piețe publice aprox. 1082 m

Detalii despre preț și costuri

Costuri cu achiziția

Fără credit
Credit ipotecar
Noua casă

i

Costuri adiționale mai puțin știute la achiziție: taxe notariale, comisioane etc.

Insight premium disponibil după login

Proprietăți similare

Casă individuală cu 10 camere în Obor
380.000 €
București, Obor
10 camere
223,37 mp
336 mp teren
Casă individuală cu 16 camere în Ștefan cel Mare
370.000 €
București, Ștefan cel Mare
16 camere
320 mp
500 mp teren
Casă individuală cu 7 camere în Fundeni
349.800 €
București, Fundeni
7 camere
334 mp
500 mp teren

Detalii de contact

AGENȚIA IMOBILIARA

Miruna Matei

3.67(3 review-uri)

AGENȚIA IMOBILIARA
PRO

Abonează-te la newsletter să fii primul care primește cele mai noi recomandări de proprietăți și sfaturi de la experți.

CONTACT

Creează alertă

Salvează căutarea ca să primești pe email ultimele anunțuri publicate

Case individuale cu 4+ camere de vânzare în zona Obor, Sector 2