5

Vila individuala 5 camere, P+1+M, cartier 23 August, Parc Pantelimon

359.000 €

Basarabia, București

Nr. cam.:
5
Sup. utilă:
200 mp
Sup. teren:
220 mp
Tip prop.:
Individuală
  • • Comision 0%
  • • Locație exactă

Descriere casă

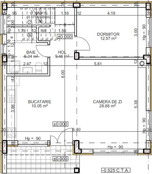
Vila individuala 5 camere, P+1+M Persoana fizica ofer spre vanzare constructie,finalizata in anul 2025, este realizata din caramida Porotherm(atat la exterior cat si la interior) cu stalpi si plansee din beton armat, asigurand rezistenta si durabilitate. Pentru eficienta energetica, termica si fonica, casa beneficiaza de: izolatie cu polistiren de 12 cm la exterior, acoperis Bilka izolat cu spuma poliuretanica de 15cm. Dotarile moderne includ incalzire in pardoseala si tamplarie Salamander. Utilitati: Gaze naturale, curent trifazic (380V), apa de la retea, canalizare, cablu TV, internet fibra optica. Acoperis intr-o singura apa, perfect pentru montarea panourilor fotovoltaice. Curte libera 140 mp. Configuratie locuinta: Parter - suprafata utila 67,3 mp, compus din: hol de access, living spatios cu semineu pe lemne format din focar cu geam dublu(frontal+lateral) si cos de fum (profesionist certificat TUV la cele mai inalte standarde nemtesti si cerinte europene in domeniu pentru producerea caruia au fost utilizate tuburi ceramice), bucatarie open space, dormitor/birou, baie si camera tehnica. Etaj - suprafata utila 67.83 mp: dormitor matrimonial cu baie proprie si dressing + alte doua dormitoare, hol si baie. Mansarda (70 mp) – un spatiu deschis, versatil, ideal pentru sala de sport,hobby room, atelier croitorie sau amenajarea a doua dormitoare cu baie, dressing si spatiu de depozitare generos. Facilitati zona, cu access rapid: • Gradinita 350 metri • Scoala 450 metri • Parcul Pantelimon 600 metri • Piata 650 metri • Metrou 850 metri • Centre comerciale: Esplanada, Mega Mall, Fashion House Outlet Centre Pallady • Supermarketuri: Carrefour, Lidl, Mega Image,Kaufland, Auchan • Magazine de bricolaj: Dedeman, Leroy Merlin, Brico Depot • Centrul Comercial Palady: Jumbo, Decathlon,Ikea, XXXLutz, Jysk, Selgros, Metro • Autostrada A2, Autostrada A0,Centura Capitalei Aceasta proprietate este ideala pentru o familie care cauta un camin spatios, modern, bine compartimentat aflata intr-o zona linistita, dar bine conectata la oras. Pozele de la interior sunt cu titlu informativ. Pretul locuintei este la alb fara finisaje(gresie, faianta, parchet,usi interioare) si sanitare. Vila se poate preda la cheie pentru pretul de 384.000 Euro. Pentru mai multe detalii sau programarea unei vizionari, nu ezitati sa ma contactati.
Citește mai mult Citește mai puțin

Detalii casă

ID anunț: XV10011TE Copiat! 274419397 Copiat!
Actualizat în: 23 Ianuarie 2026
Nr. băi: 3
An construcție: 2025 (Finalizată)
Regim înălțime: P+1E+M

Utilități

Comision
0%

Puncte de interes

Mijloace transport
bus-station
Statia Grup Scolar Industrial Republica / Meiului, Linia 103
Stații autobuz aprox. 389 m
metro-station
Metrorex.Stația Pantelimon (M1)(1990)
Stații metrou aprox. 539 m
tram-station
Republica S.A.
Stații tramvai aprox. 592 m
train-station
Halta Titan Sud (23 August)
Stații tren aprox. 642 m
Școală
school
Scoala Generala nr. 67
Școli aprox. 294 m
school
Scoala generala cu clasele I-VIII, nr. 67
Școli aprox. 299 m
kindergarten
Gradinita de copii nr.187
Gradinițe aprox. 323 m
university
Facultatea de Pompieri
Universități aprox. 1948 m
Recreere
pub
Terasa Cora
Pub aprox. 481 m
supermarket
Splanada
Supermarket aprox. 498 m
park
Parcul Pantelimon
Parcuri aprox. 596 m
sports-ground
Teren sportiv
Terenuri sport aprox. 929 m

Detalii despre preț și costuri

Costuri cu achiziția

Fără credit
15.223 RON
Credit ipotecar
17.859 RON
Noua casă
1.969 RON+ taxe notariale

i

Costuri adiționale mai puțin știute la achiziție: taxe notariale, comisioane etc.

Proprietăți recomandate

Detalii de contact

Abonează-te la newsletter să fii primul care primește cele mai noi recomandări de proprietăți și sfaturi de la experți.

CONTACT

Creează alertă

Salvează căutarea ca să primești pe email ultimele anunțuri publicate

Case individuale cu 4+ camere de vânzare în zona Basarabia, Sector 3