Agentia BrizaLand propune spre vanzare, in Sector 3, Calea Calarasi, Hala Traian, casa Subsol partial + Parter + Etaj, constructie postbelica, situata stradal, cu suprafata construita totala de 207mp, suprafata utila totala de 131.5mp, amprenta la sol 97mp; compusa din doua apartamente ale aceleiasi familii totalizand 6 camere si doua bai, doua bucatarii; teren in proprietate cu suprafata de 97.2mp si teren in folosinta cu suprafata de 59mp, deschidere de 6.1m.
Compartimentare :
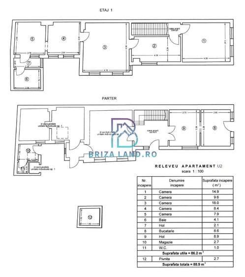
apartament U1 Subsol Partial + Parter partial ( s. utila totala 42.6mp ) :, hol, camera, baie, bucatarie, vestibl, wc, pivnita.
apartament U2 Subsol Partial + Parter partial + Etaj ( s. utila totala 88.9mp ) : doua holuri, 5 camere, baie, bucatarie, wc, magazie, pivnita.
Structura de rezistenta :
pe cadre de beton armat si pereti din caramida.
Situatie juridica:
cadastru si intabulare; extras carte funciara liber de sarcini, cumparata cu legea 112.
Finisaje:
renovata integral 2014 :
interior: gresie, faianta, parchet, usi interioare din lemn, obiecte sanitare, geamuri termopan, centrala termica; usa de intrare termopan, izolata polistiren si zugravita.
Transport:
imobilul este situat la 3 minute de mers pe jos fata de statia stb, calculat pe Google Maps.
Puncte de interes:
zona comerciala Hala Traian la 3 minute de mers pe jos;
supermarket Kaufland Popa Nan, la 8 minute de mers pe jos si doua cu masina;
Gradinita Allegria Montessori la 8 minute de ners pe jos si doua cu masina;
Scoala nr. 103 la 6 minute de mers pe jos;
Scoala nr. 69 la 6 minute de mers pe jos;
Universitatea Hyperion la 8 minute de mers pe jos si doua cu masina;
Alte detalii:
bransata la toate utilitatile : apa, gaze, canalizare si curent;
doua locuri de parcare in curte.
pretabila : activitati comerciale, birouri, productie, activitati medicale, restaurant, gradinita copii, after-school, sali de curs sau conferinte, centru de frumusete sau recuperare.
Pret : 230.000 euro
Vizionarea acestui imobil se face doar în baza semnării unui acord de vizionare conform codului civil art. 2.096-2.102. Se percepe comision conventional. Se acorda consultanta in vederea acordarii unui credit bancar.
Sediul central - Timișoara
Bulevardul Victor Babeș nr. 2, 300230, Timișoara, România
Tel: +40.374.40.44.98 / Fax: +40.256.401.179
Email: suport@imobiliare.ro
Luni - Vineri 08:00 - 20:00
Punct de lucru - București: Iride Business Park, Bld. Dimitrie
Pompeiu 9-9A, Clădirea B2B,
020335, Sector 2, București, România
CONTACT
Sediul central - Timișoara
Bulevardul Victor Babeș nr. 2, 300230, Timișoara, România
Tel: +40.374.40.44.98 / Fax: +40.256.401.179
Email: suport@imobiliare.ro
Luni - Vineri 08:00 - 20:00
Punct de lucru - București: Iride Business Park, Bld. Dimitrie
Pompeiu 9-9A, Clădirea B2B,
020335, Sector 2, București, România
Calea Călărași este una dintre cele mai vechi artere de circulație din Capitală. Parcurgând-o cu tramvaiul ajungi destul de rapid în centru, la Piața Unirii, sau în zona Piața Muncii de pe Șoseaua Mihai Bravu. Stații de metrou pot fi găsite atât în Piața Unirii, cât și în Piața Muncii. O altă legătură utilă pentru cei care se mută în zonă poate fi oferită de troleibuzul 70 care traversează Piața Universității și are stație inclusiv în imediata vecinătate a Parcului Cișmigiu. În cazul în care optezi pentru o locuință aflată de-a lungul sau în apropierea Bulevardului Decebal, atunci autobuzul 104 ar putea fi de mare ajutor pentru tine. Acesta traversează orașul din cartierul Pantelimon și până în zona Piața Operei - Eroilor, trecând prin centru. Alte mijloace de transport în comun la care poți apela, dacă te muți în zona Decebal - Calea Călărași, sunt și troleibuzele 70 și 79. Stații găsești pe Strada Delea Nouă. Consultă harta pentru a afla unde găsești stațiile mijloacelor de transport în comun.
La intersecția dintre Calea Călărași și Strada Popa Nan se află sediul uneia dintre cele mai cunoscute instituții de învățământ privat din București - Universitatea Hyperion. Tot în această zonă a orașului găsești Colegiul Național "Matei Basarab", unul dintre cele mai prestigioase din oraș. Ar putea să te intereseze și Școala Specială nr. 5 de pe Strada Turturelelor sau Școala Generală Cezar Bolliac. Pentru copiii cu vârste mai mici găsești în zona Decebal - Calea Călărași mai multe grădinițe private. Consultă harta de mai jos pentru a afla ce alte unități de învățământ ai la dispoziție, dacă te muți în această parte a orașului.
Hala Traian, aflată la intersecția dintre Calea Călărași și Strada Traian, este un punct extrem de cunoscut în zonă și un loc ideal pentru a-ți face cumpărăturile. În interiorul acesteia a fost un amenajat un supermarket Mega Image, iar în jurul său vei găsi și alte magazine mici și farmacii. Câteva magazine găsești în apropiere de Șoseaua Mihai Bravu, la parterul blocurilor situate vis-a-vis de Spitalul Victor Babeș. Dacă vrei să îți faci cumpărăturile la hipermarket, atunci cel mai apropiat va fi cel aflat în spatele magazinului Unirii. Consultă harta pentru a afla ce alte opțiuni vei avea la doi pași de viitoarea ta locuință.
Zona este traversată de una dintre cele mai vechi artere de circulație din Capitală, Calea Călărași. Dacă te deplasezi des cu mașina prin oraș, atunci trebuie să știi că traficul este de multe ori îngreunat de-a lungul acesteia la orele de vârf, în special pe segmentul dintre Strada Popa Nan și Piața Corneliu Coposu, unde există doar o singură bandă pe sens. Îți recomandăm, totodată, să nu pierzi din vedere posibilitatea închirierii unui loc de parcare în apropierea noii tale locuințe. Pentru a face acest lucru, trebuie să te adresezi Biroului Parcări din cadrul ADP Sector 2 sau Direcției Generale Impozite și Taxe Locale Sector 3. Una dintre cele mai mari parcări din zonă se găsește la capătul Bulevardului Decebal, în Piața Alba Iulia. Consultă harta pentru mai multe detalii.
Vrei să te muți în zona Calea Călărași și te gândești deja ce opțiuni vei avea pentru petrecerea timpului liber? Poți să faci plimbări lungi pe străzile de lângă casele de aici, deosebit de frumoase în special în timpul toamnei, și apoi să faci un scurt popas la o ceainărie sau să iei masa la restaurant. Nu vei avea la dispoziție parcuri mari dacă vei locui în această parte a Bucureștiului. Cu toate acestea, vei ajunge destul de ușor, chiar și cu mijloacele în comun (troleibuzul 70), la Parcul Național sau în fața Grădinii Cișmigiu. Pe Strada Popa Nan vei avea la dispoziție un spațiu unde se desfășoară jocuri de laser tag, un loc de joacă pentru copii și o sală de fitness. Apropierea de Piața Unirii vine și cu alte opțiuni de petrecere a timpului liber, de la zile petrecute la terasele din Centrul Vechi la vizite la muzeu. Preferi o după-amiază la teatru? Atunci vei avea la dispoziție în apropiere trei teatre unde vei putea merge la spectacole - Teatrul de Artă, Teatrul de Comedie și Teatrul Evreiesc. Găsești pe hartă și alte puncte de interes din zona Decebal - Calea Călărași.
În zona Decebal - Calea Călărași vei găsi mai multe clinici private și farmacii. Cele mai apropiate spitale la care poți apela la nevoie se află în zona Piața Muncii. Este vorba despre Spitalul Clinic de Copii "Dr. Victor Gomoiu" și de Spitalul Clinic "Dr. Victor Babeș". Vezi pe hartă poziționarea unităților sanitare din zona Decebal - Calea Călărași și din vecinătatea sa.
Găsești cele mai multe restaurante, baruri și terase de-a lungul Bulevardului Decebal, dar și în Piața Alba Iulia. Pentru o atmosferă ceva mai liniștită îți recomandăm restaurantele și ceainăriile pe care le găsești ascunse pe străduțele din zonă, pe strada Popa Nan sau între casele vechi situate în apropiere de Hala Traian.
Găsești mai multe sucursale bancare și ATM-uri de-a lungul Bulevardului Decebal și pe Calea Călărași, principalele artere de circulație din zonă. Află de pe hartă unde găsești cea mai apropiată bancă de viitoarea ta locuință.
Înainte să pleci...
Ești sigur că ai văzut și aceste proprietăți?
450.000 €
București, Eminescu
9 camere
254 mp
221 mp teren
395.000 €
București, Unirii
6 camere
180 mp
222,61 mp teren
299.999 €
București, Polonă
3 camere
88 mp
100 mp teren
345.000 €
București, Matei Voievod
4 camere
110,55 mp
247,61 mp teren
225.000 €
București, Dacia
4 camere
194 mp
100 mp teren
349.000 €
București, Parcul Carol
5 camere
119,79 mp
58 mp teren
Creează alertă
Salvează căutarea ca să primești pe email ultimele anunțuri publicate
Case individuale cu 4+ camere de vânzare în zona Calea Călărașilor, Sector 3
Cere detalii prin email
*
*
*
*
Detaliile tale de contact vor fi partajate cu Briza Land Srl
Preț total1.182.438 RON (232.119 €)
Costuri cu achiziția10.795 RON
Preț de achiziție1.171.643 RON
Costuri cu achiziția10.795 RON
Comision agenție Întreabă agenţia
Onorariu notarial9.038 RON
Taxă înscriere OCPI1.757 RON
Preț de achiziție1.171.643 RON
Preț locuință1.171.643 RON
TVA 0%Inclus în prețul cerut
Cost total191.584 RON (37.608 €)
Avans (15%)175.746 RON
Cost achitat în prima lună2.954 RON
Costuri cu achiziția12.884 RON
Cost achitat în prima lună2.954 RON
Comision analiză dosar
400 RON - 900 RON
Taxă evaluare imobil(până la)
900 RON
Rata lunară (variabilă)5.219 RON
Asigurare anuală imobil1.172 RON
Arhivă electronică102 RON
Poliță PAD130 RON
Asigurare de viață/lună Costul este variabil. În funcție de banca aleasă, procentul variază între 0.0259% și 0.035% din soldul creditului.
Costuri cu achiziția12.884 RON
Comision agenție Întreabă agenţia
Onorariu notarial9.038 RON
Taxă întabulare OCPI1.757 RON
Autentificare contract credit2.089 RON
Preț de achiziție1.171.643 RON
Preț locuință1.171.643 RON
TVA 0%Inclus în prețul cerut
Preț de achiziție1.171.643 RON
Preț locuință1.171.643 RON
TVA 0%
Inclus în prețul cerut
Avans minim565.445 RON
Credit pe 30 de ani606.198 RON
Cost achitat în prima lună
Taxa evaluare imobil(până la)
900 RON
Rata lunară (variabilă)4.259 RON
Depozit colateral12.777 RON
Comision de garantare FNGCIMM98 RON
Asigurare anuală imobil1.172 RON
Poliță PAD130 RON
Tarif arhivă electronică102 RON
Costuri adiționale1.312 RON + taxe notariale
Asigurare viață și complexă (opțională)Costul este variabil. În funcție de banca aleasă, procentul variază între 0.0259% și 0.035% din soldul creditului
Onorariu notarialconform tarif notarial
Taxă întabulare OCPI1.312 RON
i
Toate valorile de mai sus sunt estimative și nu reprezintă în mod obligatoriu costurile exacte pe care le veți primi de la companiile/instituțiile prin care veți încheia tranzacția.