4

Casa/ Apartament 150m utili -an1990 Corneliu Coposu-Calarasilor Unirii

272.990 €

Calea Călărașilor, București

Nr. cam.:
7
Sup. utilă:
150 mp
Sup. teren:
160 mp
Tip prop.:
Individuală
  • • Locație aproximativă

Descriere casă

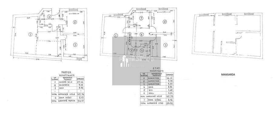
Vă propunem spre vanzare o casa situata ultracentral pe Bulevardul Corneliu Coposu - Calea Calarasilor– zona Mântuleasa (cartierul evreiesc). In fata casei o curte mica, de cativa metri patrati, pe unde se face si accesul in casa. Detalii proprietate : • Suprafață utilă: 150 mp • Suprafață teren: 160 mp • Regim de înălțime: Parter + Etaj 1 + Mansardă • An construcție: 1990 • Renovare completă: 2023 Compartimentare: • Parter: bucatarie (20mp), living (18mp), baie cu cabina de dus • Etaj 1: 1 dormitor de 25mp, 2 dormitoare mai mici, baie cu cada mare si cabina dubla de dus • Mansardă: 3 camere + baie cu cabina de dus O oferta excelenta, o casa intr-o zona deosebita la un pret bun, potrivita si pentru utilizare comerciala - sediu birou, servicii, inchiriere in regim hotelier. Pentru mai multe detalii - Cornel - - Se acceptă si achiziția prin credit bancar. Agentia Imobiliara – Ramiro Imob Comision Standard Oferim suport în relația cu banca, cu acces la cele mai bune oferte de finanțare, precum și asistență in relatia cu notariatul. Zona oferă un mix ideal între liniștea unui cartier istoric și accesul rapid către punctele de interes ale orașului.
Citește mai mult Citește mai puțin
Parțial mobilat Aer condiționat Centrală proprie

Detalii casă

ID anunț: XCRN1107Q Copiat! 275421107 Copiat!
Actualizat în: 08 Aprilie 2026
Nr. bucătării: 1
Nr. băi: 3
Învelitoare acoperiș: Tabla
An construcție: 1990 (Finalizată)
Structură rezistență: Beton
Regim înălțime: P+1E+M

Utilități

Pereți
Faianță Vopsea lavabilă
Podele
Gresie Parchet
Ușă intrare
Metal
Uși interior
Lemn
Izolații termice
Exterior
Ferestre cu geam termopan
Aluminiu
Contorizare
Contor gaz
Bucătărie
Parțial mobilată
Facilități imobil
Acoperiș Interfon
Utilități
Curent Apă Canalizare CATV Gaze Telefon
Internet
Cablu
Amenajare străzi
Iluminat stradal Mijloace de transport în comun Asfaltate
Comision
standard

Vecinătăți:

Metrou Piata Unirii Universitate Calea Calarasilor Mantuleasa Bulevardul Corneliu Coposu Piata Sfanta Vineri Armeneasca Matei Basarab Mantuleasa Calea Mosilor Cartierul Evreiesc Lipscani

Disponibilitate proprietate:

Imediat

Puncte de interes

Mijloace transport
tram-station
Statia Armeneasca / Bd. Carol I, linia 5,16
Stații tramvai aprox. 57 m
bus-station
Bd. Carol I
Stații autobuz aprox. 74 m
metro-station
Universitate (M2)
Stații metrou aprox. 665 m
trolleybus-station
Statia Foisorul de Foc linii : 79,86
Stații troleibuz aprox. 930 m
Școală
school
Scoala Generala "Iovan Ducici", Nr 71
Școli aprox. 177 m
school
Colegiul Economic Hermes
Școli aprox. 218 m
university
Facultatea de Stiinte Politice
Universități aprox. 514 m
kindergarten
Gradinita nr.4 "Lizuca"
Gradinițe aprox. 556 m
Recreere
supermarket
Mega Image Paleologu
Supermarket aprox. 29 m
public-square
Piata Latina
Piețe publice aprox. 339 m
park
Spatiu verde
Parcuri aprox. 342 m
mall
Bucharest, Calea Vitan nr. 8, Bl V51, near VITAN Mall
Mall aprox. 1873 m

Detalii despre preț și costuri

Costuri cu achiziția

Fără credit
Credit ipotecar
Noua casă

i

Costuri adiționale mai puțin știute la achiziție: taxe notariale, comisioane etc.

Insight premium disponibil după login

Proprietăți similare

Casă individuală cu 5 camere în Calea Călărașilor
300.000 €
București, Calea Călărașilor
5 camere
90 mp
220 mp teren
Casă individuală cu 3 camere în Calea Călărașilor
274.900 €
București, Calea Călărașilor
3 camere
111,2 mp
61 mp teren
Casă individuală cu 6 camere în Calea Călărașilor
249.000 €
București, Calea Călărașilor
6 camere
132,9 mp
63,18 mp teren

Detalii de contact

Ramiro Imob

Cornel Ion Agent Imobiliar

4.00(3 review-uri)

Ramiro Imob
PRO

Abonează-te la newsletter să fii primul care primește cele mai noi recomandări de proprietăți și sfaturi de la experți.

CONTACT

Creează alertă

Salvează căutarea ca să primești pe email ultimele anunțuri publicate

Case individuale cu 4+ camere de vânzare în zona Calea Călărașilor, Sector 3