3

2 case 7 camere Dristor, centrală, parcare, metrou, 247 mp

689.000 €

Dristor, București

Nr. cam.:
7
Sup. utilă:
210 mp
Sup. teren:
328 mp
Tip prop.:
Casă individuală
  • • Locație aproximativă

Descriere casă

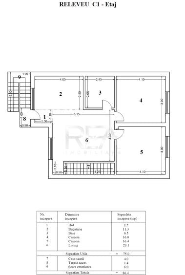
R.E.A. Imobiliare vă oferă spre vânzare 2 case cu 7 camere în zona Dristor cu un teren aferent de 328 mp. Una dintre cele doua case este batraneasca, iar cea de-a doua se afla deasupra, construita in anul 2011. Cele doua imobile sunt situate in aceeasi curte. Detin o suprafață utilă totală de 247 mp și o compartimentare echilibrată: parter (87 mp), etaj 1 (86 mp) si mansarda (73 mp). 2 bucatarii, 4 bai si 1 balcon. Se vand partial mobilate si utilate. Confortul termic este asigurat prin centrala proprie, dar si cu ajutorul aparatelor de aer conditionat. 5 locuri de parcare si 1 garaj. Zonă pet-friendly, cu acces facil la transportul public: 3-4 minute pana la metrou. Se acceptă toate modalitățile de plată. Informațiile tehnice au caracter orientativ, acestea fiind preluate de la proprietar. 👉 Dacă sunteți în căutarea unor vile mobilate și spațioase în zona Dristor, aceste proprietati reprezintă o alegere excelentă! Comision standard, valabil doar la cumpărare. Pentru mai multe detalii și vizionări, nu ezitați să ne contactați, specificând codul P7760.
Citește mai mult Citește mai puțin
Parțial mobilat Grădină Curte Aer condiționat Calorifere Centrală proprie Sobă/teracotă 5 Parcări 1 Garaj Bine întreținut (Bună)

Detalii casă

ID anunț: XDKS110BJ Copiat! 263365145 Copiat!
Actualizat în: 24 Aprilie 2026
Suprafață construită: 310 mp
Nr. bucătării: 2
Nr. băi: 4
Nr. balcoane / Terase / Logii: 1
Suprafață terase: 6 mp
An construcție: 2011 (Finalizată)

Utilități

Jaluzele
Orizontale
Pereți
Vopsea lavabilă
Podele
Parchet Gresie Marmură
Ușă intrare
PVC
Uși interior
Lemn
Izolații termice
Exterior Interior
Ferestre cu geam termopan
PVC
Contorizare
Apometre Contor căldură Contor gaz
Bucătărie
Mobilată Utilată
Electrocasnice
Mașină de spălat Frigider Aragaz Mașină spălat vase Cuptor microunde Hotă
Diverse
Șemineu Senzor de fum Telecomandă poartă acces auto
Utilități
Curent Apă Canalizare Gaze
Amenajare străzi
Asfaltate Iluminat stradal Mijloace de transport în comun
Comision
Standard

Puncte de interes

Mijloace transport
bus-station
Statia Baba Novac / Soseaua Mihai Bravu, linia 135, 311, 330, 634, N104 ,1 ,70, 79, 92
Stații autobuz aprox. 265 m
metro-station
Metrorex. Stația Dristor 2 (M1)(1989).
Stații metrou aprox. 328 m
tram-station
Baba Novac
Stații tramvai aprox. 348 m
trolleybus-station
statie troleu 70,92,79 (en)
Stații troleibuz aprox. 1332 m
Școală
kindergarten
Gradinita de copii nr.239
Gradinițe aprox. 343 m
kindergarten
Gradinita nr. 239
Gradinițe aprox. 367 m
school
Scoala de muzica si arte plastice nr.5
Școli aprox. 373 m
university
Facultatea Științe Economice, Titu Maiorescu ( Facultatea Tatianei )
Universități aprox. 1172 m
Recreere
park
Parc
Parcuri aprox. 111 m
supermarket
BILLA - Dristor
Supermarket aprox. 183 m
sports-ground
Teren sportiv
Terenuri sport aprox. 444 m
mall
Bucharest, Calea Vitan nr. 8, Bl V51, near VITAN Mall
Mall aprox. 1410 m

Detalii despre preț și costuri

Costuri cu achiziția

Fără credit
Credit ipotecar
Noua casă

i

Costuri adiționale mai puțin știute la achiziție: taxe notariale, comisioane etc.

Insight premium disponibil după login

Proprietăți recomandate

Detalii de contact

R.E.A. Imobiliare

Valentin Ghitiu Broker

4.86(7 review-uri)

R.E.A. Imobiliare
PRO

Abonează-te la newsletter să fii primul care primește cele mai noi recomandări de proprietăți și sfaturi de la experți.

CONTACT

Creează alertă

Salvează căutarea ca să primești pe email ultimele anunțuri publicate

Case individuale cu 4+ camere de vânzare în zona Dristor, Sector 3