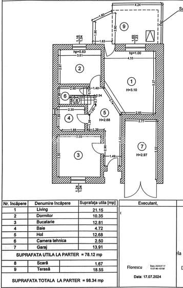
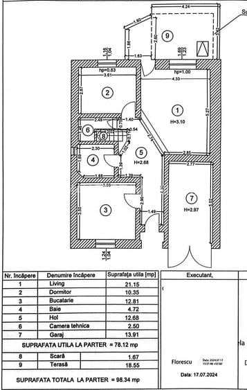
Va propunem in exclusivitate spre vanzare o vila cu regim de inaltime P+E+pod, amplasata in zona Nicolae Grigorescu, la doar 15 minute de mers pe jos pana la statia de metrou si Parcul IOR, pe strada Malva.
Proprietatea este individuala, fara vecini in curte, si beneficiaza de o compartimentare eficienta: 5 dormitoare, 2 bai prevazute cu ferestre, o terasa situata in spatele casei, balcon, un pod generos ce poate fi amenajat, garaj si o curte frumos amenajata.
Imobilul dispune de multiple imbunatatiri: gresie, faianta, parchet, ferestre cu geam termopan, usa metalica la intrare, centrala termica proprie si este racordat la toate utilitatile.
Actele sunt complete si actualizate, iar proprietatea este eligibila pentru achizitie prin credit bancar.
Sediul central - Timișoara
Bulevardul Victor Babeș nr. 2, 300230, Timișoara, România
Tel: +40.374.40.44.98 / Fax: +40.256.401.179
Email: suport@imobiliare.ro
Luni - Vineri 08:00 - 20:00
Punct de lucru - București: Iride Business Park, Bld. Dimitrie
Pompeiu 9-9A, Clădirea B2B,
020335, Sector 2, București, România
CONTACT
Sediul central - Timișoara
Bulevardul Victor Babeș nr. 2, 300230, Timișoara, România
Tel: +40.374.40.44.98 / Fax: +40.256.401.179
Email: suport@imobiliare.ro
Luni - Vineri 08:00 - 20:00
Punct de lucru - București: Iride Business Park, Bld. Dimitrie
Pompeiu 9-9A, Clădirea B2B,
020335, Sector 2, București, România
Statia C.E.T. Sud Vitan, linia 135, 223, 202, 102, 123
aprox.
1181 m
Statia Ilioara linii : 23, 27, N111, N103, 102
aprox.
1206 m
Statia Sere, linia 223
aprox.
1230 m
Statia Oficiul Postal 72 linia N103,40
aprox.
1257 m
Statia Intrarea serelor, linia 223
aprox.
1260 m
Statia CET Sud, linia 123,135
aprox.
1270 m
Dumbrava Noua
aprox.
881 m
Bd. 1 Decembrie 1918
aprox.
943 m
Piata Titan
aprox.
960 m
Piata Titan
aprox.
1012 m
statie tramvai -23, 27 si 40 - ozana
aprox.
1127 m
Ozana
aprox.
1133 m
Ilioara
aprox.
1192 m
Oficiul Postal 72
aprox.
1262 m
Fizicienilor
aprox.
1490 m
I.O.R. 2
aprox.
1493 m
statie tramvai -23, 27 si 40 - I.O.R
aprox.
1500 m
Postavarului
aprox.
1665 m
Postavarului
aprox.
1757 m
statia de tramvai voluntarilor
aprox.
1852 m
Voluntarilor
aprox.
1852 m
Metrorex. Stația 1 Decembrie 1918 (M3) Lift
aprox.
913 m
Metrorex. Stația 1 Decembrie 1918(M3)(2008)
aprox.
988 m
Statia Nicolae Grigorescu 2, LiniaM3
aprox.
1047 m
Metrorex. Stația Nicolae Grigorescu 1 /2(M1),(M3)(1981)
aprox.
1076 m
Scoala Generala cu clasele I-VIII, nr. 92
aprox.
723 m
Scoala Generala nr.92
aprox.
733 m
Scoala cu Clasele I-VIII Nr. 20 "Simion Mehedinti"
aprox.
877 m
Scoala de soferi Ilioara
aprox.
890 m
Colegiul tehnic de chimie "Costin Nenitescu"
aprox.
1024 m
Scoala generala nr 112 "Titan"
aprox.
1079 m
Scoala Generala nr 112
aprox.
1102 m
Școala Generală nr. 89 - "Nicolae Labis"
aprox.
1230 m
Scoala Nr. 149
aprox.
1406 m
Liceul Dante Aligheri
aprox.
1532 m
Liceul Teoretic "Decebal"
aprox.
1540 m
Liceul Teoretic "Dante Alighieri"
aprox.
1542 m
Școala Nr. 82
aprox.
1568 m
Scoala Generala nr. 82
aprox.
1568 m
Scoala Nr. 200
aprox.
1638 m
Gradinita de copii nr. 211
aprox.
840 m
Gradinita nr. 211
aprox.
840 m
Gradinita (en)
aprox.
1074 m
Gradinita numarul 23
aprox.
1078 m
Gradinita Nr. 66
aprox.
1085 m
Gradinita
aprox.
1086 m
Gradinita nr.71
aprox.
1204 m
Gradinita de copii nr. 196
aprox.
1214 m
Gradinita de copii nr 196
aprox.
1257 m
Gradinita 196
aprox.
1262 m
Gradinita de copii nr. 196
aprox.
1262 m
Gradinita Nr. 160
aprox.
1464 m
Gradinita Nr. 160 - "soarelui"
aprox.
1470 m
Gradinita nr. 240
aprox.
1471 m
Gradinita de copii nr.241 "Pestisorul de aur"
aprox.
1490 m
Universitatea "Gheorghe Cristea"
aprox.
1752 m
BI & DI
aprox.
859 m
Profi
aprox.
900 m
Profi
aprox.
914 m
Mega Image
aprox.
979 m
Profi
aprox.
988 m
Galeriile comerciale Petaluda
aprox.
1110 m
Mega Image
aprox.
1122 m
Lidl
aprox.
1154 m
BILLA - Titan
aprox.
1321 m
Penny
aprox.
1435 m
Lidl Fizicienilor
aprox.
1502 m
DOMO
aprox.
1540 m
Supermarket
aprox.
1541 m
Profi
aprox.
1584 m
Carrefour Vitantis
aprox.
1594 m
Parcare
aprox.
622 m
Parcare
aprox.
644 m
Parcare
aprox.
653 m
Parcare
aprox.
662 m
Parcare
aprox.
670 m
Parcare
aprox.
679 m
Parcare
aprox.
688 m
Parcare
aprox.
690 m
Parcare
aprox.
710 m
Parcare
aprox.
714 m
Parcare
aprox.
717 m
Parcare
aprox.
799 m
Parcare
aprox.
863 m
Parcare
aprox.
873 m
Parcare
aprox.
917 m
Livada
aprox.
268 m
Parc
aprox.
585 m
Parc
aprox.
614 m
Parc
aprox.
677 m
Parc
aprox.
701 m
Loc de Joaca
aprox.
882 m
Parc
aprox.
959 m
Parc
aprox.
970 m
Parc
aprox.
981 m
Părculeț
aprox.
991 m
Parc
aprox.
1036 m
Parc
aprox.
1061 m
Park (en)
aprox.
1071 m
Parc
aprox.
1118 m
Playground (en)
aprox.
1126 m
Teren sportiv
aprox.
571 m
Teren sportiv
aprox.
571 m
Teren de fotbal
aprox.
1533 m
Teren sportiv
aprox.
1533 m
Teren sportiv
aprox.
1541 m
Teren de Sport
aprox.
1556 m
Teren sportiv
aprox.
1557 m
Teren Sintetic
aprox.
1574 m
Teren sportiv
aprox.
1640 m
Teren sportiv
aprox.
1720 m
Teren sportiv
aprox.
1721 m
Teren sportiv
aprox.
1744 m
Teren sportiv
aprox.
1751 m
Teren sportiv
aprox.
1753 m
Teren sportiv
aprox.
1753 m
Farmacia Dona 187
aprox.
658 m
Catena
aprox.
698 m
Dona
aprox.
706 m
Sensiblu
aprox.
900 m
Centrofarm
aprox.
901 m
Catena Farmacie
aprox.
902 m
Beta Farmaceutica
aprox.
913 m
Farmacia City +
aprox.
938 m
Farmacia Nadine
aprox.
995 m
Sensiblu
aprox.
1000 m
Medimfarm
aprox.
1004 m
Farmacia Belladona Non-Stop
aprox.
1014 m
Farmacia Remedio
aprox.
1023 m
Farmacia Minerva
aprox.
1034 m
Farmacia Catena
aprox.
1059 m
Spital de Recuperare pentru copii cu handicap neuromotor
aprox.
712 m
Policlinica veterinara
aprox.
785 m
Dispensar
aprox.
1565 m
Spitalul de Psihiatrie "Dr. Constantin Gorgoș"
aprox.
1823 m
Bistro Burghez
aprox.
555 m
Alexa
aprox.
998 m
La Bodega
aprox.
1028 m
Shaorma Trapezului (Non-Stop)
aprox.
897 m
Restaurant Pizzerie
aprox.
914 m
Shaorma Non-Stop
aprox.
977 m
New York Pizza
aprox.
977 m
McChiken
aprox.
1014 m
Fornetti
aprox.
1037 m
Shaorma Salajan
aprox.
1091 m
Casa di Angelo
aprox.
1102 m
Terasa Cara
aprox.
1293 m
Terasa Cara (en)
aprox.
1294 m
Savi
aprox.
1425 m
Cetatea Berarilor
aprox.
1514 m
L'Incontro (en)
aprox.
1533 m
Trattoria Verdi
aprox.
1538 m
L'Incontro
aprox.
1543 m
Asa Cafe
aprox.
1476 m
B.R.D.
aprox.
682 m
BRD
aprox.
900 m
Alpha Bank - Pallady
aprox.
900 m
CEC Bank
aprox.
911 m
ING Office Theodor Pallady
aprox.
913 m
BCR Pallady
aprox.
917 m
Garanti Bank
aprox.
925 m
Pireus Bank
aprox.
926 m
UniCredit Tiriac - Grigorescu Branch (en)
aprox.
929 m
UniCredit Bank - Ag. Nicolae Grigorescu
aprox.
940 m
BancPost Salajan
aprox.
952 m
Banca Transilvania - Ag. Pallady
aprox.
989 m
OTP BANK
aprox.
1009 m
Raifeissen Bank - Agentia Titan
aprox.
1037 m
Millenium Bank
aprox.
1048 m
Dacă te muți în zona Titan Parc - Grigorescu și preferi să călătorești cu metroul spre birou, atunci îți recomandăm să te orientezi spre blocurile aflate în apropierea intersecției dintre Strada Liviu Rebreanu și Bulevardul Nicolae Grigorescu. Aici găsești stația de metrou Titan de unde poți ajunge în 10-15 minute la Piața Unirii, fără să fie nevoie să schimbi magistrala. Dacă lucrezi în zona de nord a orașului, de la Piața Unirii ai legătură cu magistrala M2 care te va transporta rapid până în Pipera, evitând astfel traficul de la orele de vârf. În cazul în care alegi o garsonieră sau un apartament în zona mall-ului ParkLake Shopping Center, vei ajunge pe jos în doar câteva minute la stația de metrou Dristor, iar dacă ești interesat, mai degrabă, de locuințele din apropierea Pieței Titan vei putea lua metroul de la stația Nicolae Grigorescu. Pe arterele principale ai la dispoziție și mai multe tramvaie și autobuze. Printre acestea amintim autobuzul 311 care are capătul la Piața Rosetti, la doi pași de km 0 al Capitalei, și tramvaiul 27 care ajunge în zona Parcului Carol I, a Patriarhiei Române și la Piața Unirii. Consultă harta pentru a afla unde sunt poziționate stațiile mijloacelor de transport în comun din zona Titan Parc.
Zona Titan Parc - Grigorescu este ideală pentru familiile cu copii având în vedere faptul că aici găsim atât grădinițe, cât și școli gimnaziale și chiar și Liceul Teoretic "Dante Alighieri". Acesta din urmă are clase bilingve cu predare în limba italiană. În plus, dispune de o sală de sport și de un bazin de înot. Vezi aici care sunt cele mai apropiate unități de învățământ în zona în care îți cauți noua locuință.
Locuitorii din această zonă își fac cumpărăturile în mall-ul ParkLake Shopping Center, care include un hipermarket Carrefour, sau de la Piețele Titan, Matei Ambrozie și Râmnicu Sărat. Dacă te muți aici, ai la dispoziție și Complexul Comercial Galeriile Titan, care a fost modernizat cu câțiva ani în urmă și se află în imediata vecinătate a stației de metrou Titan. Poți să ajungi destul de ușor cu mașina și la hipermarketul Auchan Vitan și la Piața Bobocica, ambele situate la intersecția dintre Bulevardul Râmnicu Sărat, Calea Vitan și Bulevardul Energeticienilor. La fel, în câteva minute poți să ajungi la magazinul Lidl de pe Strada Fizicienilor sau la complexul comercial de pe Șoseaua Mihai Bravu, unde găsești un magazin Kaufland, pet shop-uri Maxi Pet și Animax, alături de alți retaileri. Găsești pe hartă poziționarea piețelor și centrelor comerciale unde îți poți face cumpărăturile dacă locuiești în zona Titan Parc - Grigorescu.
Dacă te muți în această zonă și te gândești deja la ce vei face cu mașina, atunci îți recomandăm să verifici la Direcția Generală Impozite și Taxe Locale Sector 3 dacă ai posibilitatea de a închiria un loc de parcare pentru a evita eventualele probleme cu care ai putea să te confrunți. Încearcă să eviți Bulevardul Camil Ressu la orele de vârf, dacă te deplasezi cu mașina prin oraș. Traficul ajunge să fie destul de îngreunat. Aruncă o privire pe hartă și vezi unde găsești principalele parcări din zonă.
Zona Titan Parc - Grigorescu este ideală dacă ești o persoană foarte activă, punând la dispoziția locuitorilor numeroase opțiuni de petrecere a timpului liber. Poți merge dimineața la alergat în Parcul Alexandru Ioan Cuza, unul dintre cele mai mari din Capitală, cu o suprafață de circa 85 de hectare, sau poți face plimbări lungi aici în weekend. Ai copii? Aceștia vor fi cu siguranță încântați să hrănească rațele de pe Lacului Titan. După mergi în ParkLake Shopping Center pentru cumpărături, la masă sau pentru alte activități, Intri direct din parc. Tot prin Parcul Alexandru Ioan Cuza (fostul Titan sau IOR) te poți plimba și cu bicicleta. Iarna poți să te dai cu patinele pe gheață, în zonele special amenajate. Ai la dispoziție Complexul Comercial Galeriile Titan, modernizat cu câțiva ani în urmă, chiar lângă parc, iar vara poți face o baie în water park-ul aflat vis-a-vis de Piața Titan. Află, mai jos, ce alte opțiuni de petrecere a timpului liber ai dacă locuiești în această zonă.
Vrei să te muți în zona Titan Parc - Grigorescu și nu știi care sunt cele mai apropiate unități sanitare? La intersecția Bulevardului Nicolae Grigorescu cu Strada Liviu Rebreanu găsești Hyperclinica MedLife Titan. Nu departe de aceasta se află și Policlinica Titan. Află de pe hartă cum ajungi aici. Găsești și alte clinici private din apropiere.
Ai câteva restaurante și fast food-uri de-a lungul Bulevardului Nicolae Grigorescu și oricând te poți opri în drum spre casă la mall-ul ParkLake care include un food court cu mâncare potrivită pentru toate gusturile. Alte fast food-uri mai găsești în zona Dristor, la intersecția dintre Șoseaua Mihai Bravu, Calea Dudești și Bulevardul Camil Ressu. Pentru că ai la dispoziție mai multe stații de metrou, poți să ajungi ușor la terasele, restaurantele și cafenelele din centru. Aruncă o privire pe hartă și vezi unde poți să mănânci în oraș, dacă te muți în zona Titan Parc - Grigorescu.
Găsești cele mai multe sucursale bancare și ATM-uri în apropiere de Piața Titan și de stația de metrou Titan. Consultă harta pentru mai multe detalii.
Înainte să pleci...
Ești sigur că ai văzut și aceste proprietăți?
390.000 €
București, Sălăjan
7 camere
281 mp
287 mp teren
450.000 €
București, Titan
5 camere
222 mp
250 mp teren
649.000 €
București, Nicolae Grigorescu
4 camere
210 mp
267 mp teren
330.000 €
București, Nicolae Grigorescu
6 camere
205 mp
350 mp teren
350.000 €
București, Nicolae Grigorescu
6 camere
167 mp
287 mp teren
300.000 € + TVA
București, Nicolae Grigorescu
5 camere
138 mp
80 mp teren
Creează alertă
Salvează căutarea ca să primești pe email ultimele anunțuri publicate
Case individuale cu 4+ camere de vânzare în zona Nicolae Grigorescu, Sector 3
Cere detalii prin email
*
*
*
*
Detaliile tale de contact vor fi partajate cu Ramax Best Imobiliare
Preț total2.044.201 RON (400.996 €)
Costuri cu achiziția56.059 RON
Preț de achiziție1.988.142 RON
Costuri cu achiziția56.059 RON
Comision agenție 2%39.763 RON
Onorariu notarial13.314 RON
Taxă înscriere OCPI2.982 RON
Preț de achiziție1.988.142 RON
Preț locuință1.988.142 RON
TVA 0%Inclus în prețul cerut
Cost total360.819 RON (70.779 €)
Avans (15%)298.221 RON
Cost achitat în prima lună3.770 RON
Costuri cu achiziția58.828 RON
Cost achitat în prima lună3.770 RON
Comision analiză dosar
400 RON - 900 RON
Taxă evaluare imobil(până la)
900 RON
Rata lunară (variabilă)8.856 RON
Asigurare anuală imobil1.988 RON
Arhivă electronică102 RON
Poliță PAD130 RON
Asigurare de viață/lună Costul este variabil. În funcție de banca aleasă, procentul variază între 0.0259% și 0.035% din soldul creditului.
Costuri cu achiziția58.828 RON
Comision agenție 2%39.763 RON
Onorariu notarial13.314 RON
Taxă întabulare OCPI2.982 RON
Autentificare contract credit2.769 RON
Preț de achiziție1.988.142 RON
Preț locuință1.988.142 RON
TVA 0%Inclus în prețul cerut
Preț de achiziție1.988.142 RON
Preț locuință1.988.142 RON
TVA 0%
Inclus în prețul cerut
Avans minim1.381.504 RON
Credit pe 30 de ani606.638 RON
Cost achitat în prima lună
Taxa evaluare imobil(până la)
900 RON
Rata lunară (variabilă)4.262 RON
Depozit colateral12.786 RON
Comision de garantare FNGCIMM166 RON
Asigurare anuală imobil1.988 RON
Poliță PAD130 RON
Tarif arhivă electronică102 RON
Costuri adiționale2.128 RON + taxe notariale
Asigurare viață și complexă (opțională)Costul este variabil. În funcție de banca aleasă, procentul variază între 0.0259% și 0.035% din soldul creditului
Onorariu notarialconform tarif notarial
Taxă întabulare OCPI2.128 RON
i
Toate valorile de mai sus sunt estimative și nu reprezintă în mod obligatoriu costurile exacte pe care le veți primi de la companiile/instituțiile prin care veți încheia tranzacția.