vila 7camere/(348util,500teren,119ampr.)mp/5min.metrouAp.Patriei

465.000 €

Apărătorii Patriei, București

Nr. cam.:
7
Sup. utilă:
348 mp
Sup. teren:
500 mp
Tip prop.:
Individuală
  • • Comision 0%
  • • Locație aproximativă

Descriere casă

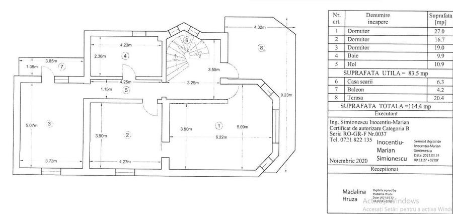
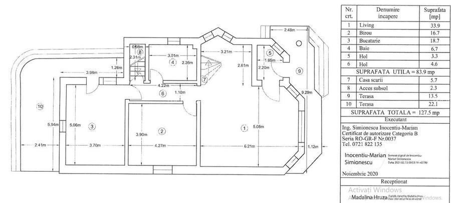
Proprietar Vand vila(construita in regie proprie) individuala dispusa pe parter, etaj si pod mansardat, situata la 5-7min de mers pe jos pana la statia de metrou Ap. Patriei, avand dubla deschidere, cu posibilitatea parcarii a 5 masini(2 in curte si 3 pe zona de proprietate). Se vinde fie mobilata si utilata, cel putin cum se vede in fotografii, fie goala, dupa cum se doreste. Arata exact ca in fotografii; este certificata energetic casa A. Va rog sa regasiti in informatiile atasate, fotografiile si releveul corespunzator pe fiecare nivel in parte. Mai multe detalii, pentru potentialii clienti interesati de achizitie in mod real, la tel: Toate actele sunt pregatite pentru vanzare. Dispune atat de loc de joaca(amenajat deasupra piscinei exterioare) pentru copii, cat si de piscina. Beneficiaza atat de toate utilitatile publice(apa, energie electrica, gaz, internet-cablu TV) cat si de put propriu cu hidrofor pentru alimentarea cu apa a piscinei si intretinerea spatiului verde.
Citește mai mult Citește mai puțin
Mobilat Grădină Curte Aer condiționat Calorifere Centrală proprie Beci 4 Parcări 2 Garaje

Detalii casă

ID anunț: XA1A110A8 Copiat! 275398748 Copiat!
Actualizat în: 03 Aprilie 2026
Suprafață construită: 119 mp
Suprafață desfășurată: 348 mp
Nr. bucătării: 1
Nr. băi: 3
Nr. balcoane / Terase / Logii: 1
Nr. terase: 4
Suprafață terase: 77.2 mp
Front stradal: 41.0 m
Învelitoare acoperiș: Tabla
An construcție: 2002 (Finalizată)
Structură rezistență: Beton
Regim înălțime: S+P+1E+M

Utilități

Jaluzele
Orizontale Verticale
Pereți
Faianță Vopsea lavabilă
Podele
Gresie Parchet Marmură
Ușă intrare
Metal
Uși interior
Panel Lemn PVC Sticlă
Izolații termice
Exterior
Ferestre cu geam termopan
PVC
Contorizare
Apometre Contor gaz
Bucătărie
Mobilată Utilată
Electrocasnice
Aragaz Frigider Hotă Mașină de spălat Mașină spălat vase TV
Diverse
Jacuzzi Scară interioară Senzor de fum Sistem de alarmă
Alte spații utile
Dressing
Facilități imobil
Acoperiș
Utilități
Curent Apă Canalizare CATV Gaze Telefon
Internet
Cablu Wireless
Servicii imobil
Supraveghere video
Amenajare străzi
Iluminat stradal Mijloace de transport în comun Asfaltate
Comision
0%

Certificat energetic:

Clasa energetică: A

Vecinătăți:

metrou Ap. Patriei, Profi si Pta Berceni

Disponibilitate proprietate:

data_properties.property_availability.Imediat

Puncte de interes

Mijloace transport
metro-station
Metrorex. Stația Apărătorii Patriei (M2)(1986)
Stații metrou aprox. 316 m
metro-station
Aparatorii Patriei (M2)
Stații metrou aprox. 330 m
bus-station
Statia Cartier Aparatorii Patriei, linia 125, 232, N106, 202, metrou M2
Stații autobuz aprox. 376 m
tram-station
Soseaua Vitan-Barzesti
Stații tramvai aprox. 611 m
Școală
school
Scoala Gimnaziala Speciala Sfantul Nicolae
Școli aprox. 113 m
school
Scoala Nr. 102 Gen. Eremia Grigorescu
Școli aprox. 195 m
university
Universitatea Spiru Haret
Universități aprox. 479 m
kindergarten
Gradinita "Panseluta", nr.166
Gradinițe aprox. 489 m
Recreere
sports-ground
Teren sportiv
Terenuri sport aprox. 134 m
park
Parc
Parcuri aprox. 178 m
supermarket
Complex Comercial Aparatorii Patriei
Supermarket aprox. 303 m
hypermarket
Hornbach
Hipermarket aprox. 1870 m

Detalii despre preț și costuri

Costuri cu achiziția

Fără credit
18.873 RON
Credit ipotecar
21.961 RON
Noua casă
2.511 RON+ taxe notariale

i

Costuri adiționale mai puțin știute la achiziție: taxe notariale, comisioane etc.

Proprietăți similare

Casă individuală cu 7 camere în Apărătorii Patriei
465.000 €
București, Apărătorii Patriei
7 camere
350 mp
471 mp teren
Casă individuală cu 7 camere în Apărătorii Patriei
465.000 €
București, Apărătorii Patriei
7 camere
348 mp
500 mp teren
Casă individuală cu 5 camere în Apărătorii Patriei
425.000 €
București, Apărătorii Patriei
5 camere
150 mp
200 mp teren

Detalii de contact

MARVIS REZIDENTIAL SRL

Viorel Nica Broker Imobiliar

MARVIS REZIDENTIAL SRL

Abonează-te la newsletter să fii primul care primește cele mai noi recomandări de proprietăți și sfaturi de la experți.

CONTACT

Creează alertă

Salvează căutarea ca să primești pe email ultimele anunțuri publicate

Case individuale cu 4+ camere de vânzare în zona Apărătorii Patriei, Sector 4