Această reședință este creată pentru cei care doresc ceva cu adevărat excepțional.
Este o casă bine gândită, cu mai mult spațiu, mai multă lumină și o curte mare.
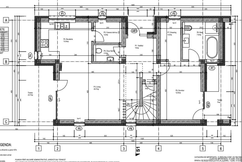
✨ Suprafață utilă 145 mp – proiect P+M, design simplu, dar sofisticat, compartimentare eficientă
🛋 Living mare și luminos
👩🍳 Bucătărie aerisită, open-space (poate fi închisă ușor) sau chiar extinsă
🛏 3 dormitoare
🚿 4 băi, inclusiv una cu cadă îngropată în pardoseală – un mic spa la tine acasă
☕ Două terase și un balcon generos
Atrium verde în interiorul construcției – fundația înconjoară un loc destinat unui copac sau bambus, oferindu-ți posibilitatea de a avea natură autentică chiar în mijlocul casei tale.
🌳 Curte mare – 630 mp – loc pentru grădină, foișor, piscină sau chiar un mic iaz
🛣️ Drum privat lat de 9 metri.
🏗️ Materiale: beton armat, placă între nivele, cărămidă Porotherm cu termosistem de 15 cm, termoizolație de 25 cm la mansardă, ferestre mari tripan Barrier cu bandă de etanșeizare, încălzire în pardoseală - eficiență termică excelentă, totul gândit pentru confort și durabilitate.
Acoperiș din tablă fălțuită Metigla, cu jgheaburi îngropate.
🏠 Construită ca locuință proprie – proiect unic, materiale premium și atenție la detalii.
📍 Măgurele, înainte de centură, la cca 500 metri de București – zonă liniștită, cu vecini decenți, aer curat și acces facil către școli, magazine și centrul Bucurestiului.
🚗 Printre puținele zone din jurul Bucureștiului unde accesul către centru rămâne previzibil.
🔑 Ideală pentru nonconformiști, pentru cei cu gusturi educate și un rafinament peste medie – care nu vor o casă de serie, ci o declarație de stil personal.
🔹 Nu e o casă ieftină – e o alegere inteligentă și o investiție sigură. Un spațiu construit cu detalii care fac diferența, pentru cei care știu să vadă valoarea.
Dacă prețul este primul lucru la care te uiți, probabil nu e pentru tine!
Zona este în continuă dezvoltare, iar proprietățile de calitate își cresc constant valoarea.
🔑 Disponibilă în două variante:
• La cheie - finisaje, obiecte sanitare, curte amenajată, alei, gazon, plante ornamentale, sistem de irigații automatizat și poartă auto cu telecomandă – gata de mutat, pret 279 000 Euro
• Sau în stadiul actual fara finisaje, cu toate utilitatile – cu posibilitatea de a continua lucrările cu aceeași firmă.
Pret 239 000 E
🏠 O locuință sigură, construită cu materiale de calitate și un design remarcabil, care iese din tipare – perfectă pentru cei care caută confortul orașului, dar și liniștea unei case unice.
💰 Proprietar, NU se plătește TVA - nici comision.
Sediul central - Timișoara
Bulevardul Victor Babeș nr. 2, 300230, Timișoara, România
Tel: +40.374.40.44.98 / Fax: +40.256.401.179
Email: suport@imobiliare.ro
Luni - Vineri 08:00 - 20:00
Punct de lucru - București: Iride Business Park, Bld. Dimitrie
Pompeiu 9-9A, Clădirea B2B,
020335, Sector 2, București, România
CONTACT
Sediul central - Timișoara
Bulevardul Victor Babeș nr. 2, 300230, Timișoara, România
Tel: +40.374.40.44.98 / Fax: +40.256.401.179
Email: suport@imobiliare.ro
Luni - Vineri 08:00 - 20:00
Punct de lucru - București: Iride Business Park, Bld. Dimitrie
Pompeiu 9-9A, Clădirea B2B,
020335, Sector 2, București, România
Sună acum și cere detalii sau programează o vizionare.
Cere detalii prin email
*
*
*
*
Stații autobuz
Școli
Parcări
Parcuri
Spital
Restaurant
Statia Curtea de Arges, linia 303
aprox.
747 m
Statia Pecinisca, linia 303
aprox.
819 m
Statia Slatina, linia 303
aprox.
874 m
Statia Soseaua Vartejului, linia 303
aprox.
1250 m
Statia Albotesti, linia 302
aprox.
1555 m
Statia Penitenciarul Rahova, linia 302
aprox.
1571 m
Statia Gladiolelor, linia 302
aprox.
1604 m
Statia Teiului, linia 302
aprox.
1657 m
Statia Celofibrei, linia 302
aprox.
1842 m
Scoala Generala Nr. 125
aprox.
1227 m
Parcare cu plata
aprox.
1594 m
Parc
aprox.
1991 m
Spital
aprox.
1667 m
Green Restaurant
aprox.
1206 m
Pisica Salbatica
aprox.
1602 m
Pisica salbatica
aprox.
1635 m
Înainte să pleci...
Ești sigur că ai văzut și aceste proprietăți?
250.000 €
București, Ghencea
4 camere
188 mp
230 mp teren
242.000 €
București, Rahova
8 camere
232 mp
81 mp teren
225.000 €
București, Panduri
5 camere
260 mp
160 mp teren
Creează alertă
Salvează căutarea ca să primești pe email ultimele anunțuri publicate
Case individuale cu 4+ camere de vânzare în zona Măgurele, Sector 5
Cere detalii prin email
*
*
*
*
Detaliile tale de contact vor fi partajate cu Edora
Preț total1.229.028 RON (241.179 €)
Costuri cu achiziția11.108 RON
Preț de achiziție1.217.920 RON
Costuri cu achiziția11.108 RON
Comision agenție Întreabă agenţia
Onorariu notarial9.281 RON
Taxă înscriere OCPI1.827 RON
Preț de achiziție1.217.920 RON
Preț locuință1.217.920 RON
TVA 0%Inclus în prețul cerut
Cost total198.923 RON (39.035 €)
Avans (15%)182.688 RON
Cost achitat în prima lună3.000 RON
Costuri cu achiziția13.235 RON
Cost achitat în prima lună3.000 RON
Comision analiză dosar
400 RON - 900 RON
Taxă evaluare imobil(până la)
900 RON
Rata lunară (variabilă)5.425 RON
Asigurare anuală imobil1.218 RON
Arhivă electronică102 RON
Poliță PAD130 RON
Asigurare de viață/lună Costul este variabil. În funcție de banca aleasă, procentul variază între 0.0259% și 0.035% din soldul creditului.
Costuri cu achiziția13.235 RON
Comision agenție Întreabă agenţia
Onorariu notarial9.281 RON
Taxă întabulare OCPI1.827 RON
Autentificare contract credit2.127 RON
Preț de achiziție1.217.920 RON
Preț locuință1.217.920 RON
TVA 0%Inclus în prețul cerut
Preț de achiziție1.217.920 RON
Preț locuință1.217.920 RON
TVA 0%
Inclus în prețul cerut
Avans minim611.508 RON
Credit pe 30 de ani606.412 RON
Cost achitat în prima lună
Taxa evaluare imobil(până la)
900 RON
Rata lunară (variabilă)4.261 RON
Depozit colateral12.783 RON
Comision de garantare FNGCIMM101 RON
Asigurare anuală imobil1.218 RON
Poliță PAD130 RON
Tarif arhivă electronică102 RON
Costuri adiționale1.358 RON + taxe notariale
Asigurare viață și complexă (opțională)Costul este variabil. În funcție de banca aleasă, procentul variază între 0.0259% și 0.035% din soldul creditului
Onorariu notarialconform tarif notarial
Taxă întabulare OCPI1.358 RON
i
Toate valorile de mai sus sunt estimative și nu reprezintă în mod obligatoriu costurile exacte pe care le veți primi de la companiile/instituțiile prin care veți încheia tranzacția.