75

Casa Rahova -Alexandriei ,teren 250 mp,p+1

131.000 €

Rahova, București

Nr. cam.:
5
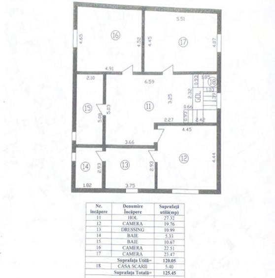
Sup. utilă:
284 mp
Sup. teren:
250 mp
Tip prop.:
Individuală
  • • Locație aproximativă

Descriere casă

Cod Proprietate: P578 Casa singur curte ,teren 250mp, Supraf utila 284 mp,P+1, finisata la exterior, interior la gri, toate utilitatile trase, Zona linistita, si civilizata,Complexe comerciale in apropiere : Lidl,Carrefour,Kaufland.
Citește mai mult Citește mai puțin

Detalii casă

ID anunț: XFKB11012 Copiat! 258974889 Copiat!
Actualizat în: 02 Aprilie 2026
Tip tranzacție: De vânzare prin agent
Nr. bucătării: 1
Nr. băi: 3
An construcție: 2019 (Finalizată)
Structură rezistență: Cărămidă
Regim înălțime: P+1E

Utilități

Utilități
Curent Apă Canalizare Gaze
Amenajare străzi
Asfaltate
Comision
standard

Vecinătăți:

Carrfour Alexandriei,Biserica Bariera Rahovei

Disponibilitate proprietate:

imediat

Puncte de interes

Mijloace transport
bus-station
Statia Curtea de Arges, linia 303
Stații autobuz aprox. 1070 m
bus-station
Statia Slatina, linia 303
Stații autobuz aprox. 1085 m
bus-station
Statia Albotesti, linia 302
Stații autobuz aprox. 1117 m
bus-station
Statia Gladiolelor, linia 302
Stații autobuz aprox. 1137 m
Școală
school
Scoala Generala Nr. 125
Școli aprox. 1295 m
Recreere
restaurant
Green Restaurant
Restaurant aprox. 741 m
restaurant
Pisica Salbatica
Restaurant aprox. 1288 m
supermarket
Penny
Supermarket aprox. 1915 m
supermarket
Cora Alexandriei
Supermarket aprox. 1982 m

Istoricul prețurilor

Acces la informații premium după autentificare
Login Gratuit

Detalii despre preț și costuri

Costuri cu achiziția

Fără credit
Credit ipotecar
Noua casă

i

Costuri adiționale mai puțin știute la achiziție: taxe notariale, comisioane etc.

Acces la informații premium după autentificare
Login Gratuit

Proprietăți similare

Casă individuală cu 6 camere în Rahova
139.900 €
București, Rahova
6 camere
107 mp
142 mp teren
Casă individuală cu 4 camere în Ferentari
139.900 €
București, Ferentari
4 camere
79,18 mp
185,97 mp teren
Casă individuală cu 2 camere în Sălaj
140.000 €
București, Sălaj
2 camere
70 mp
360 mp teren

Detalii de contact

EREZIDENTIAL

Marius Patrascu

4.65(8 review-uri)

EREZIDENTIAL
PRO

Abonează-te la newsletter să fii primul care primește cele mai noi recomandări de proprietăți și sfaturi de la experți.

CONTACT

Creează alertă

Salvează căutarea ca să primești pe email ultimele anunțuri publicate

Case individuale cu 4+ camere de vânzare în zona Rahova, Sector 5