REV2005352 Vila Noua Giulesti

329.000 €

Giulești, București

Nr. cam.:
4
Sup. utilă:
175 mp
Sup. teren:
150 mp
Tip prop.:
Individuală
  • • Locație aproximativă
  • • Vizionare prin apel video

Descriere casă

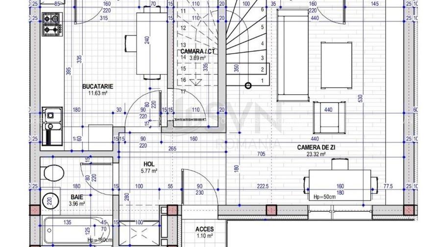
Va propunem spre achizitie o locuinta moderna, ce urmeaza a fi finalizata in anul 2025, amplasata in cartierul Giulesti, o zona aflata in continua dezvoltare si situata foarte aproape de centrul Bucurestiului. Aceasta pozitionare ofera acces rapid catre principalele puncte de interes ale orasului, pastrand in acelasi timp linistea si intimitatea unei zone rezidentiale de case. Caracteristici principale ale proprietatii Tip imobil: Vila P+2 Suprafata utila: 175 mp Suprafata construita: 205 mp Teren total: 150 mp Curte libera: 90 mp Locuri de parcare: 2 An constructie: 2025 3 dormitoare ideale pentru familie sau pentru amenajarea unui birou 4 bai moderne, complet utilate Bucatarie inchisa Dressing 2 Balcoane Terasa Compartimentare Parter: Living spatios, luminos, ideal pentru zona de relaxare si socializare Bucatarie inchisa, perfecta pentru cei care prefera delimitarea clara a spatiilor Baie Curtea este impartita in doua, zona din fata casei unde se gasesc doua locuri de parcare, aleea pietonala si spatiu verde. Propietatea este imprejmuita cu gard din beton iar portile de acces auto si pietonala sunt din metal. In spatele vilei regasim un spatiu verde inchis cu gard din beton precum si o terasa betonata. Etaj 1 2 Dormitoare 2 Bai Balcon Etaj 2 Dormitor matrimonial Baie Dressing Balcon Cartierul Giulesti este o zona urbana in plina ascensiune, cu proiecte noi si modernizari care ii sporesc constant atractivitatea. Proximitatea fata de centrul orasului face ca deplasarea sa fie usoara si rapida. Dotari si Finisaje Vila Vila se preda la cheie, este luminoasa, moderna, complet finisata și echipata: - Usa metalica la intrarea în vila; - Compartimentarile interioare sunt din caramida eficienta; - Tamplarie tripan din PVC cu rupere de punte termica; - Instalatii termice polipropilena sub sapa, calorifere monobloc din otel, centrala termica 24 kw ( Filtre, robineti, holendre, regulator si furtun); - Baile sunt complet finisate și utilate cu lavoare, vase wc, cabine de dus; - Bucatarie complet finisata, dotata cu centrala termica; - Gresie pe hol, scara, bucatarie si bai; - Parchet laminat triplu stratificat in restul casei; - Prize si intrerupatoare montate, fara corpuri de iluminat; - Lavabil alb pentru tot interiorul; - Fatadele sunt termoizolate pe toata suprafata conform normativelor în vigoare; - Vopsea exterior texturata; - Curte proprie imprejmuita cu gard din beton si porti metalice; - Balcoanele sunt imprejmuite cu sticla IMPORTANT: Pentru cei care doresc sa acceseze credite, oferim consultanta financiara si asistenta in relatia cu banca. Va asteptam in Casa Noua!
Citește mai mult Citește mai puțin
Grădină Calorifere Centrală proprie 2 Parcări

Detalii casă

ID anunț: X658014EO Copiat! 275477138 Copiat!
Actualizat în: 24 Aprilie 2026
Suprafață construită: 202 mp
Suprafață desfășurată: 202 mp
Nr. bucătării: 1
Nr. băi: 4
Nr. balcoane / Terase / Logii: 2
Nr. terase: 1
An construcție: 2025 (Finalizată)
Structură rezistență: Cărămidă
Tip imobil: Casă/Vilă
Regim înălțime: P+2E

Utilități

Destinație
Rezidențial Birouri Birouri
Pereți
Faianță
Podele
Gresie Parchet
Izolații termice
Exterior
Ferestre cu geam termopan
PVC
Diverse
Senzor de fum
Facilități imobil
Acoperiș
Utilități
Gaze Telefon internațional Apă Canalizare CATV Curent
Internet
Cablu Wireless
Comision
Standard

Vicii:

Fără vicii.

Disponibilitate proprietate:

Disponibil din 21/11/2025.

Puncte de interes

Mijloace transport
tram-station
RATB Terminal 16 Februarie (Giulesti-Sarbi)
Stații tramvai aprox. 9 m
bus-station
Statia Cartier 16 februarie linia 162, 163, N110
Stații autobuz aprox. 29 m
tram-station
Statia Cartier 16 februarie linia 11
Stații tramvai aprox. 60 m
train-station
Statia CFR Bucurestii Noi (fosta 16 februarie)
Stații tren aprox. 927 m
Școală
school
Scoala Gimnaziala Nr. 153
Școli aprox. 305 m
school
Scoala Nr. 153
Școli aprox. 311 m
school
Scoala cu clasele nr.161
Școli aprox. 827 m
kindergarten
Gradinita 97
Gradinițe aprox. 1328 m
Recreere
park
Parc
Parcuri aprox. 945 m
restaurant
"La linie", drink&gossip
Restaurant aprox. 985 m
sports-ground
Teren fotbal acoperit
Terenuri sport aprox. 1635 m
supermarket
Express
Supermarket aprox. 1744 m

Detalii despre preț și costuri

Costuri cu achiziția

Fără credit
Credit ipotecar
Noua casă

i

Costuri adiționale mai puțin știute la achiziție: taxe notariale, comisioane etc.

Insight premium disponibil după login

Proprietăți similare

Casă individuală cu 4 camere în Giulești
355.000 €
București, Giulești
4 camere
176 mp
235 mp teren
Casă individuală cu 6 camere în Giulești
324.900 €
București, Giulești
6 camere
210 mp
200 mp teren
Casă individuală cu 4 camere în Prelungirea Ghencea
325.000 € + TVA
București, Prelungirea Ghencea
4 camere
192 mp
300 mp teren

Detalii de contact

Abonează-te la newsletter să fii primul care primește cele mai noi recomandări de proprietăți și sfaturi de la experți.

CONTACT

Creează alertă

Salvează căutarea ca să primești pe email ultimele anunțuri publicate

Case individuale cu 4+ camere de vânzare în zona Giulești, Sector 6