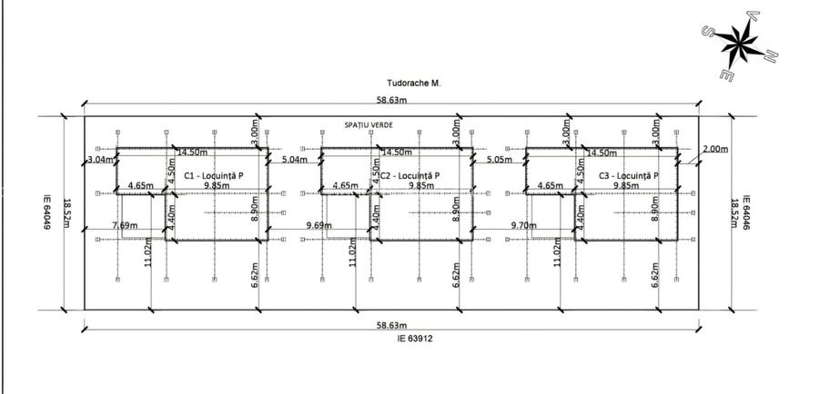
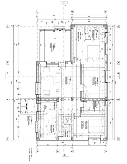
Ultima unitate locativa din primele 6 case scoase la vanzare, casa individuala situata in imediata apropiere a cartierului Prelungirea Ghencea cu acces foarte bun si ferit de zgomotul traficului. Distanta pana la mijloacele de transport in comun fiind de doar 200 metri. Casa este construita pe parter avand incalzire in pardoseala si o suprafata totala de 128 mp si este formata din living plus 3 dormitoare(dintre care unul matrimonial), doua bai, o bucatarie si o terasa. Peste parter este turnata placa de are pod inalt pe toata suprafata ei cu acces pe scara betonata si se poate amenaja la cerere .Terenul in total are o suprafata de 450 mp din care se scade drumul de acces aflat in proprietate de 90 mp. Casa se vinde la cheie, existand posibilitatea noului proprietar de a alege gresia, faianta, parchetul, usile si obiectele sanitare. Casa este racordata la gaz si curent electric, are fosa septica ecologica si put cu hidrofor la 20 m adancime. Structura casei este din beton armat si este construita din caramida poroterm de 30 cm avand izolatia cu polistiren de 10 cm. Curtea va fi amenajata cu gazon si pavata cu dale inclusiv parcarea pentru doua masini. Toate actele sunt in regula si se accepta credit. Se ofera garantie doi ani la interior si la structura pe viata.
Va asteptam la vizionare!
Sediul central - Timișoara
Bulevardul Victor Babeș nr. 2, 300230, Timișoara, România
Tel: +40.374.40.44.98 / Fax: +40.256.401.179
Email: suport@imobiliare.ro
Luni - Vineri 08:00 - 20:00
Punct de lucru - București: Iride Business Park, Bld. Dimitrie
Pompeiu 9-9A, Clădirea B2B,
020335, Sector 2, București, România
CONTACT
Sediul central - Timișoara
Bulevardul Victor Babeș nr. 2, 300230, Timișoara, România
Tel: +40.374.40.44.98 / Fax: +40.256.401.179
Email: suport@imobiliare.ro
Luni - Vineri 08:00 - 20:00
Punct de lucru - București: Iride Business Park, Bld. Dimitrie
Pompeiu 9-9A, Clădirea B2B,
020335, Sector 2, București, România
Sună acum și cere detalii sau programează o vizionare.
Nu rata ocazia să afli mai multe!
Sună acum și cere detalii sau programează o vizionare.
Cere detalii prin email
*
*
*
*
Stații autobuz
Școli
Supermarket
Parcări
Terenuri sport
Parcuri
Farmacie
Restaurant
Primacom
aprox.
1967 m
Scoala PROINGENIO
aprox.
1923 m
Shop & Go / Mega Image
aprox.
1075 m
Shop&Go
aprox.
1515 m
Mega Image
aprox.
1540 m
Parcare
aprox.
1026 m
Parcare
aprox.
1460 m
Teren sportiv
aprox.
1553 m
Parc
aprox.
1563 m
Farmacia Salud
aprox.
1525 m
Restaurantul Latin
aprox.
1396 m
Restaurantul Latin
aprox.
1403 m
Restaurant Casa Domnesti
aprox.
1628 m
Dacă te vei muta în această zonă a Capitalei, nu vei avea acces direct la nicio stație de metrou. Cele mai apropiate se află pe magistrala 5 inaugurată recent în Drumul Taberei. În schimb, vei putea să călătorești cu autobuzul, iar 222 de va ajuta să ajungi în vecinătatea unei stații de metrou. Linia 122 îți va fi, cel mai probabil, și ea de mare ajutor. Ruta sa pornește din complexul Cartierul Latin, parcurge Bulevardul Prelungirea Ghencea, ajunge în zona Eroilor și are capătul în Piața Universității. Pentru a te deplasa mai ușor prin zonă ai putea să apelezi, totodată, la linia de autobuz 185. Consultă harta și vezi unde găsești stațiile mijloacelor de transport în comun din zona Prelungirea Ghencea.
În această zonă găsim câteva unități de învățământ. Printre acestea amintim Școala Gimnazială nr. 144 și Școala Gimnazială nr. 279, ambele aflate pe șoseaua Prelungirea Ghencea. În plus, aici vei avea la dispoziție și Școala Gimnazială ProIngenio și câteva grădinițe private. Unele dintre cele mai apropiate licee de zona Prelugirea Ghencea sunt Liceul Teoretic "Eugen Lovinescu" și Colegiul Național "Elena Cuza". Vezi aici ce alte unități de învățământ găsești în zona în care îți cauți o nouă locuință.
Dacă te hotărăști să te muți în zona Prelungirea Ghencea, vei avea câteva magazine la dispoziție de unde îți vei putea face cumpărăturile. Probabil cel mai cunoscut în rândul locuitorilor de aici este supermarketul Mega Image aflat la intersecția dintre Prelungirea Ghencea și Strada Valea Oltului. În apropiere găsești și un Profi. Pe șoseaua Prelungirea Ghencea mai găsești câteva magazine, printre care un Lidl. În zona cartierului Latin ai la dispoziție un Mega Image, un magazin Penny și un Profi. Vei găsi mai multe magazine alimentare mari pe Strada Valea Oltului, spre zona cartierului Brâncuși. Cel mai apropiat mall pe care îl vei avea la dispoziție va fi Plaza România. La doi pași de acesta se află și mall-ul AFI Cotroceni. Cu mașina poți să ajungi destul de ușor la cumpărături la complexul comercial Vulcan Value Center sau la Liberty Mall. Dacă ești în căutare de mobilier pentru nou ta locuință, atunci e bine să știi că pe Bulevardul Ghencea găsești numeroase magazine dedicate. Consultă harta pentru a găsi cele mai apropiate magazine de viitoarea ta locuință.
Dacă mergi des cu mașina, e bine să știi că pe principala arteră de circulație din cartier, șoseaua Prelungirea Ghencea, traficul este destul de îngreunat, mai ales în zona de la ieșirea din București spre șoseaua de centură. Aici au fost demarate și lucrările de construcție pentru pasajul suprateran Prelungirea Ghencea-Domnești. Pentru că numărul locurilor de parcare din zona Prelungirea Ghencea este destul de limitat, îți recomandăm să te interesezi la Serviciul Parcaje Scop Reședință din cadrul ADP Sector 5 sau la Serviciul Parcaje al ADP Sector 6 dacă poți închiria un astfel de spațiu în apropierea viitoarei tale locuințe. Dacă te gândești să te muți într-un ansamblu rezidențial nou, discută cu dezvoltatorul și vezi cât te-ar costa și un loc de parcare. Vezi pe hartă unde sunt poziționate cele mai mari parcări din cartier.
Stadionul Steaua București este un punct important al zonei Ghencea. Acesta a trecut printr-un proces de modernizare și dispune de o arenă nouă cu o capacitate de peste 30.000 de locuri. În imediata sa vecinătate se află Bazinul de Înot Steaua București, unde tu sau copilul tău puteți participa la cursuri de inițiere, dar și de perfecționare. Ideal pentru micuțul tău ar putea fi și terenul de joacă acoperit pe care îl găsești pe șoseaua Prelungirea Ghencea, lângă Drumul Valea Ursului. Îți place să joci tenis sau fotbal alături de prietenii tăi? Atunci o bună opțiune de întâlnire poate fi complexul sportiv aflat pe Strada Bascov care pune la dispoziție contra cost astfel de terenuri, dar și o sală de fitness. În zonă nu vei avea niciun parc de mari dimensiuni. Cu toate acestea, în apropiere casei tale se va afla Parcul Drumul Taberei (fostul Moghioroș) care a fost modernizat recent și cuprinde și un lac de agrement. Pentru a ajunge la cel mai apropiat mall, Plaza România, va trebui să mergi, cel mai probabil, cu mașina. Găsești pe hartă mai multe puncte de interes în vecinătatea zonei Prelungirea Ghencea.
Principala clinică la care vei putea apela la nevoie în cazul în care hotărăști să te muți în această zonă din sud - vestul Bucureștiului este Ghencea Medical Center, care acoperă peste 25 de specialități. De menționat este și faptul că în această zonă nu există niciun spital de stat de mari dimensiuni. Există însă mai multe clinici private la care poți apela în cartierul vecin, Drumul Taberei. Găsești pe harta de mai jos localizarea unităților medicale din împrejurimi.
Găsești câteva restaurante și pizzerii pe de-a lungul principalei artere de circulație din cartier, șoseaua Prelungirea Ghencea. Altele pe strada Valea Oltului din apropiere. Pentru mai multă diversitate poți să mergi cu mașina la mall-urile Plaza România și AFI Cotroceni care dispun de food court-uri destul de variate. Aruncă o privire pe hartă și vezi care sunt cele mai apropiate restaurante, terase și cafenele de viitoarea ta casă.
Înainte să pleci...
Ești sigur că ai văzut și aceste proprietăți?
175.000 €
București, Prelungirea Ghencea
5 camere
116 mp
316 mp teren
160.000 € + TVA
București, Prelungirea Ghencea
5 camere
145 mp
143 mp teren
140.000 € + TVA
București, Prelungirea Ghencea
3 camere
104,54 mp
150 mp teren
159.900 € + TVA
București, Prelungirea Ghencea
3 camere
104,5 mp
207 mp teren
Creează alertă
Salvează căutarea ca să primești pe email ultimele anunțuri publicate
Case individuale cu 4+ camere de vânzare în zona Prelungirea Ghencea, Sector 6
Cere detalii prin email
*
*
*
*
Detaliile tale de contact vor fi partajate cu Concept Aviv Group
Preț total903.037 RON (177.201 €)
Costuri cu achiziția8.926 RON
Preț de achiziție894.111 RON
Costuri cu achiziția8.926 RON
Comision agenție Întreabă agenţia
Onorariu notarial7.585 RON
Taxă înscriere OCPI1.341 RON
Preț de achiziție894.111 RON
Preț locuință738.934 RON
TVA 21%155.176 RON
Cost total147.576 RON (28.958 €)
Avans (15%)134.117 RON
Cost achitat în prima lună2.676 RON
Costuri cu achiziția10.783 RON
Cost achitat în prima lună2.676 RON
Comision analiză dosar
400 RON - 900 RON
Taxă evaluare imobil(până la)
900 RON
Rata lunară (variabilă)3.983 RON
Asigurare anuală imobil894 RON
Arhivă electronică102 RON
Poliță PAD130 RON
Asigurare de viață/lună Costul este variabil. În funcție de banca aleasă, procentul variază între 0.0259% și 0.035% din soldul creditului.
Costuri cu achiziția10.783 RON
Comision agenție Întreabă agenţia
Onorariu notarial7.585 RON
Taxă întabulare OCPI1.341 RON
Autentificare contract credit1.857 RON
Preț de achiziție894.111 RON
Preț locuință738.934 RON
TVA 21%155.176 RON
Preț de achiziție894.111 RON
Preț locuință738.934 RON
TVA 21%
155.176 RON
Avans minim287.675 RON
Credit pe 30 de ani606.436 RON
Cost achitat în prima lună
Taxa evaluare imobil(până la)
900 RON
Rata lunară (variabilă)4.261 RON
Depozit colateral12.783 RON
Comision de garantare FNGCIMM75 RON
Asigurare anuală imobil894 RON
Poliță PAD130 RON
Tarif arhivă electronică102 RON
Costuri adiționale1.034 RON + taxe notariale
Asigurare viață și complexă (opțională)Costul este variabil. În funcție de banca aleasă, procentul variază între 0.0259% și 0.035% din soldul creditului
Onorariu notarialconform tarif notarial
Taxă întabulare OCPI1.034 RON
i
Toate valorile de mai sus sunt estimative și nu reprezintă în mod obligatoriu costurile exacte pe care le veți primi de la companiile/instituțiile prin care veți încheia tranzacția.