4

Casa pe un singur Nivel cu 450 mp de teren, in Selimbar

425.000 €

Șelimbăr, Județul Sibiu

Nr. cam.:
4
Sup. utilă:
180 mp
Sup. teren:
500 mp
Tip prop.:
Individuală
  • • Locație aproximativă

Descriere casă

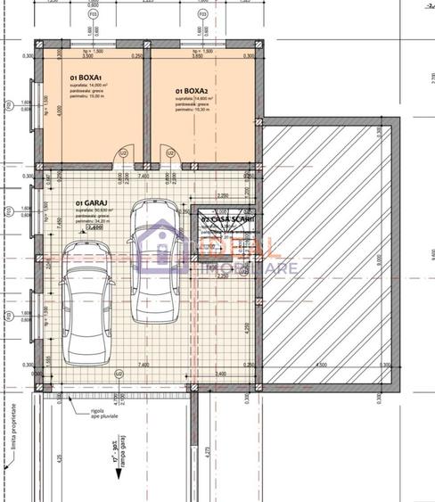
Locuinta este situata in zona El Gringo, Selimbar Casa este amplasata pe un teren de 450 mp, si are o suprafata utila de 150 mp, fiind pe un singur nivel ea este compartimentata astfel: -hol, living cu bucatarie, 2 bai, 3 dormitoare generoase, dressing, spatii de depozitare, iesire in terasa din spatele casei; -La Demisol e garaj, plus doua incaperi mari; -Pod de depozitare pe toata suprafata casei, 130 mp. Casa se preda la stadiul 'ALB' la interior astfel: peretii complet finisati inclusiv lavabila alba, sape elicopterizate, instalatie de incalzire prin pardoseala la etaj si parter,centrala termica in condensare, instalatie electrica, instalatie sanitara pe pozitie, toate utilitatiile cu contoare montate; -La exterior acestea se predau 'LA CHEIE' astfel: gresie antiderapanta pe balcon si intrare, alei pietonale si loc de parcare in curte amenajate cu dale de beton,zona verde amenajata cu gazon,gard de imprejmuire, poarta acces auto aurtomatizata si portita de intrare, zona de gratar amenajata. -La cerere casele Se pot preda si la stadiul 'LA CHEIE' la interior. Pret: 425.000 Euro Telefon: Mariana
Citește mai mult Citește mai puțin
Centrală proprie Încălzire prin pardoseală 2 Parcări 1 Garaj

Detalii casă

ID anunț: XBM411093 Copiat! 95889045 Copiat!
Actualizat în: 11 Februarie 2026
Suprafață construită: 170 mp
Suprafață desfășurată: 279 mp
Nr. bucătării: 1
Nr. băi: 2
Nr. terase: 1
Suprafață terase: 20 mp
Front stradal: 20.0 m
Învelitoare acoperiș: Țiglă
An construcție: 2023 (Finalizată)
Structură rezistență: Cărămidă

Utilități

Pereți
Vopsea lavabilă
Ușă intrare
Metal
Izolații termice
Exterior Interior
Contorizare
Apometre Contor căldură Contor gaz
Utilități
Curent Apă Canalizare CATV Gaze Telefon
Internet
Cablu
Amenajare străzi
Iluminat stradal Mijloace de transport în comun Asfaltate

Disponibilitate proprietate:

Imediat

Puncte de interes

Mijloace transport
bus-station
Piata V. Aaron 1
Stații autobuz aprox. 441 m
bus-station
Piata V. Aaron 2
Stații autobuz aprox. 469 m
bus-station
Cofetaria Narcisa
Stații autobuz aprox. 571 m
bus-station
Liceul Energetic
Stații autobuz aprox. 641 m
Școală
school
Scoala Generala Nr. 24
Școli aprox. 542 m
kindergarten
Gradinita Nr. 14
Gradinițe aprox. 600 m
school
Liceul Energetic
Școli aprox. 770 m
university
Facultatea de Geografia Turismului
Universități aprox. 1984 m
Recreere
supermarket
Profi Vasile Aaron
Supermarket aprox. 478 m
bar
Narcisa
Bar aprox. 520 m
sports-ground
Teren sportiv
Terenuri sport aprox. 541 m
park
Parcul Vasile Aaron
Parcuri aprox. 556 m

Detalii despre preț și costuri

Costuri cu achiziția

Fără credit
17.491 RON
Credit ipotecar
20.408 RON
Noua casă
2.306 RON+ taxe notariale

i

Costuri adiționale mai puțin știute la achiziție: taxe notariale, comisioane etc.

Proprietăți recomandate

Detalii de contact

Ideal Imobiliare Sibiu

Mariana Bozesan Broker imobiliar

Ideal Imobiliare Sibiu
PRO

Abonează-te la newsletter să fii primul care primește cele mai noi recomandări de proprietăți și sfaturi de la experți.

CONTACT

Creează alertă

Salvează căutarea ca să primești pe email ultimele anunțuri publicate

Case individuale cu 4+ camere de vânzare în Șelimbăr, Județul Sibiu