4

Casa individuala, teren 900mp, Sibiu

599.000 €

Calea Dumbrăvii, Sibiu

Nr. cam.:
5
Sup. utilă:
159 mp
Sup. teren:
900 mp
Tip prop.:
Individuală
  • • Locație aproximativă

Descriere casă

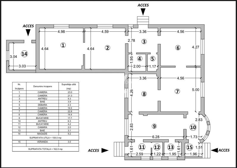
Va prezentam o casa individuala situata intr-o zona foarte bine cotata a Sibiului, Calea Dumbravii/ Bulevardul Vasile Milea. Suprafata utila: 159mp Suprafata teren: 900mp Curte libera: aprox 700mp Compartimentare (vezi schita):5 camere spatioase, 2 bucatarii, 2 bai, camara, debara, antreu, pod, pivnita 2 intrari cu acces auto De asemenea in curtea din spate este amenajata o veranda din care se face si accesul inn pivnita. O proprietate bine amplasata cu un potential foarte mare. Este locuibila insa necesita modernizare. Merita vazuta! Se pune la dispozitie si certificat de urbanism. Regim de inaltime acceptat: D+P+E+M Pret: 599000 euro Detalii si vizionari: - Roxana
Citește mai mult Citește mai puțin
Nemobilat Grădină Curte Calorifere Centrală proprie Sobă/teracotă Beci 4 Parcări

Detalii casă

ID anunț: XB501122J Copiat! 269194010 Copiat!
Actualizat în: 13 Martie 2026
Suprafață construită: 190 mp
Suprafață desfășurată: 220 mp
Nr. bucătării: 2
Nr. băi: 2
Nr. terase: 2
Front stradal: 24.0 m
Învelitoare acoperiș: Țiglă
An construcție: 1950 (Finalizată)
Structură rezistență: Cărămidă
Regim înălțime: S+P

Utilități

Destinație
Rezidențial
Pereți
Faianță Vopsea lavabilă
Podele
Gresie Parchet
Ușă intrare
Lemn
Uși interior
Lemn
Contorizare
Apometre Contor căldură Contor gaz
Electrocasnice
Hotă
Diverse
Senzor de fum
Alte spații utile
WC Serviciu
Utilități
Curent Apă Canalizare CATV Gaze Telefon
Internet
Cablu
Amenajare străzi
Iluminat stradal Mijloace de transport în comun Asfaltate
Comision
standard

Disponibilitate proprietate:

Imediat

Puncte de interes

Mijloace transport
bus-station
Miraslau
Stații autobuz aprox. 287 m
bus-station
Politie
Stații autobuz aprox. 303 m
bus-station
Cofetarie Aida
Stații autobuz aprox. 351 m
bus-station
C.E.C.
Stații autobuz aprox. 549 m
Școală
kindergarten
Gradinita Kristine
Gradinițe aprox. 271 m
university
Facultatea de Stiinte Economice (ULBS)
Universități aprox. 481 m
school
Scoala Generala Nr. 4
Școli aprox. 509 m
kindergarten
Gradinita Nr. 42
Gradinițe aprox. 1060 m
Recreere
restaurant
Restaurant Alaadi
Restaurant aprox. 351 m
supermarket
Magazinul Dumbrava
Supermarket aprox. 583 m
sports-ground
Teren sportiv
Terenuri sport aprox. 607 m
park
Parc
Parcuri aprox. 626 m

Detalii despre preț și costuri

Costuri cu achiziția

Fără credit
23.460 RON
Credit ipotecar
27.115 RON
Noua casă
3.192 RON+ taxe notariale

i

Costuri adiționale mai puțin știute la achiziție: taxe notariale, comisioane etc.

Proprietăți similare

Casă individuală cu 5 camere în Calea Dumbrăvii
545.000 €
Sibiu, Calea Dumbrăvii
5 camere
228 mp
460 mp teren
Casă individuală cu 7 camere în Calea Dumbrăvii
649.000 €
Sibiu, Calea Dumbrăvii
7 camere
270 mp
1.000 mp teren
Casă individuală cu 7 camere în Calea Dumbrăvii
650.000 €
Sibiu, Calea Dumbrăvii
7 camere
240 mp
992 mp teren

Detalii de contact

Welhome Imobiliare

Roxana Stoica Broker Imobiliar

Welhome Imobiliare
PRO

Abonează-te la newsletter să fii primul care primește cele mai noi recomandări de proprietăți și sfaturi de la experți.

CONTACT

Creează alertă

Salvează căutarea ca să primești pe email ultimele anunțuri publicate

Case individuale cu 4+ camere de vânzare în zona Calea Dumbrăvii, Sibiu