Casa individuala de vanzare cu terasa teren 320 mp zona Centrala Sibiu

494.900 €

Central, Sibiu

Nr. cam.:
6
Sup. utilă:
323 mp
Sup. teren:
320 mp
Tip prop.:
Casă individuală
  • • Locație aproximativă

Descriere casă

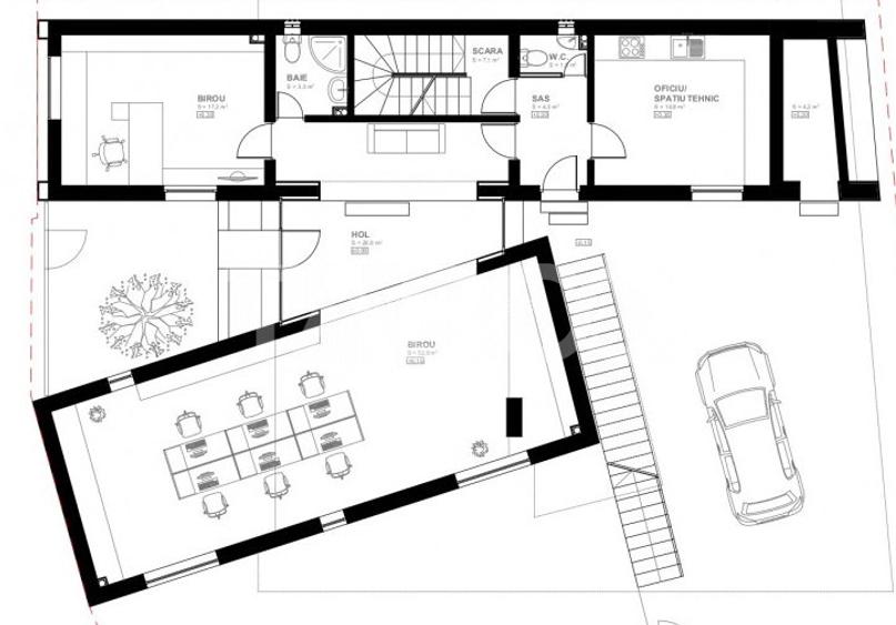
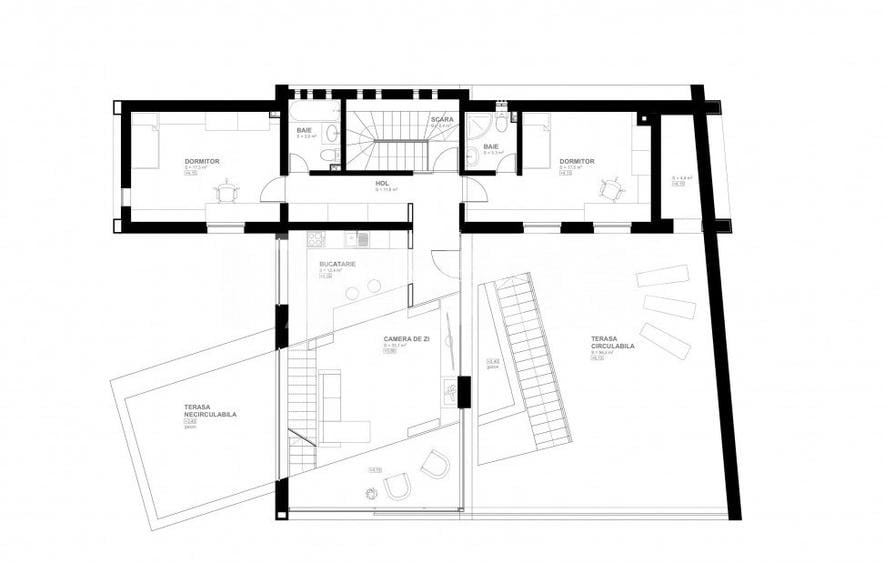
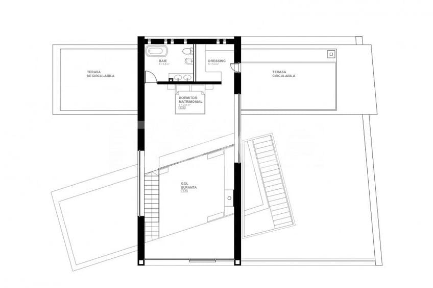
Iti doresti o casa individuala generoasa intr-o zona buna a orasului? Aceasta casa de vanzare este situata in zona centrala a orasului Sibiu, o zona linistita si cu acces facil catre toate punctele centrale si de interes public ale orasului. Terenul are o suprafata totala de 320 mp din care 160 mp teren liber iar casa este compartimentata astfel: - La subsol se afla 2 camere de depozitare a cate 10 mp fiecare, si o crama de 17 mp; - Parterul este compus dintr-o camera spatioasa cu suprafata de 53 mp, fiind pretabila pentru spatiu de birou, camera de zi sau living, o camera de birou de 17 mp, o baie, un hol mare de 20 mp, debara, toaleta de serviciu si terasa; - Etajul 1 va ofera accesul catre cele 2 dormitoare decomandate in suprafata de 17 mp fiecare, un living generos de 33 mp, bucatarie, 2 bai, si o terasa spatioasa in suprafata de 58 mp; - Etajul al 2-lea confera accesul catre dormitorul matrimonial in suprafata de 26 mp, dressing, baie de 7 mp, terasa. Predarea se va face la stadiul de semifinisat in exterior, cu parterul finalizat, la etajul 1 partea de dormitoare si bai sunt functionale, iar la etajul 2 finisajele interioare nu au fost finalizate lasand la alegerea viitorului beneficiar modul in care se va amenaja. Casa dispune de urmatoarele imbunatatiri precum parchet, gresie, faianta, ferestre din PVC-termopan, usi celulare, centrala termica proprie si calorifere. Casa mai dispunde si de o curte privata cu acces auto, carport unde se poate parca masina, iar curtea dispune de o suprafata libera de 160 mp. Casa poate fi recompartimentata in functie de gusturile fiecaruia, in functie de necesitati. Imobilul este situat pe o strada iluminata, avand 2 fronturi la strazi diferite, iar in apropiere se afla mijloace de transport in comun, parcuri, restaurante, scoli, spatii verzi, spatii comerciale. Pret: 494.900€ Cod ofertă / ID: P15105 Sună-ne acum la numarul din anunt și află detalii despre această proprietate de vanzare din Sibiu, dar și despre alte proprietăți potrivite pentru tine.
Citește mai mult Citește mai puțin
Mobilat Mobilat Curte Calorifere Centrală proprie 2 Parcări Bine întreținut (Bună)

Detalii casă

ID anunț: X5EK110RA Copiat! 107380 Copiat!
Actualizat în: 09 Martie 2026
Suprafață construită: 417 mp
Nr. bucătării: 1
Nr. băi: 4
Nr. terase: 2
Suprafață terase: 63 mp
An construcție: 2008 (Finalizată)
Structură rezistență: Beton
Regim înălțime: P+2E

Utilități

Pereți
Vopsea lavabilă Faianță
Podele
Parchet Gresie
Ușă intrare
PVC
Uși interior
Celulare
Izolații termice
Exterior
Ferestre cu geam termopan
PVC PVC
Contorizare
Apometre Contor gaz
Bucătărie
Mobilată Utilată
Electrocasnice
Mașină de spălat Frigider Aragaz TV Hotă
Diverse
Scară interioară
Utilități
Curent Apă Canalizare Gaze CATV
Internet
Fibră optică
Amenajare străzi
Asfaltate Iluminat stradal Mijloace de transport în comun

Certificat energetic:

Clasa energetică: A

Puncte de interes

Mijloace transport
bus-station
Tehnica Noua
Stații autobuz aprox. 152 m
bus-station
Mondex
Stații autobuz aprox. 155 m
bus-station
Algenia
Stații autobuz aprox. 269 m
bus-station
Scandia
Stații autobuz aprox. 295 m
Școală
school
Liceul Tehnic Textil
Școli aprox. 507 m
school
Scoala Generala Nr. 15
Școli aprox. 594 m
university
Laboratoare ULBS
Universități aprox. 620 m
kindergarten
Gradinita Nr. 19
Gradinițe aprox. 762 m
Recreere
park
Parc
Parcuri aprox. 132 m
sports-ground
Teren sportiv
Terenuri sport aprox. 273 m
restaurant
Sam Fast Food
Restaurant aprox. 330 m
supermarket
Kaufland
Supermarket aprox. 331 m

Detalii despre preț și costuri

Costuri cu achiziția

Fără credit
19.898 RON
Credit ipotecar
23.112 RON
Noua casă
2.663 RON+ taxe notariale

i

Costuri adiționale mai puțin știute la achiziție: taxe notariale, comisioane etc.

Proprietăți recomandate

Detalii de contact

TABOO Imobiliare

TABOOro

4.73(19 review-uri)

TABOO Imobiliare
PRO

Abonează-te la newsletter să fii primul care primește cele mai noi recomandări de proprietăți și sfaturi de la experți.

CONTACT

Creează alertă

Salvează căutarea ca să primești pe email ultimele anunțuri publicate

Case individuale cu 4+ camere de vânzare în zona Central, Sibiu