Casa individuala de vanzare in Sibiu, 373mp teren, 8 camere, zona buna

345.000 €

Lazaret, Sibiu

Nr. cam.:
8
Sup. utilă:
260 mp
Sup. teren:
373 mp
Tip prop.:
Individuală
  • • Locație aproximativă
  • • Vizionare prin apel video

Descriere casă

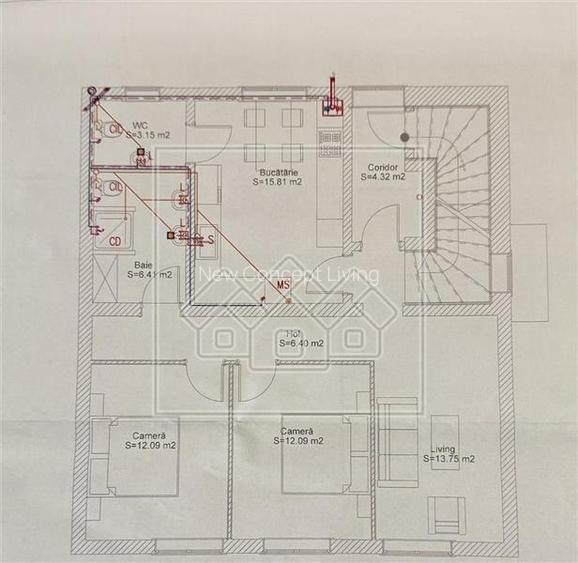
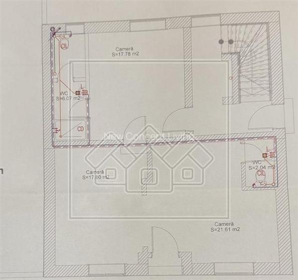
Casa individuala de vanzare in Sibiu - zona Lazaret, reper Hotel Hermanns Agentia Imobiliara New Concept Living ofera spre vanzare o casa individuala in Sibiu, situata in zona Lazaret, intr-o locatie linistita si usor accesibila. Descriere casa: Suprafata utila: 260 mp Suprafata teren: 373 mp Numar camere: 8 Compartimentare: Regim de inaltime: S+P+1+M Subsol (42,5 mp): pivnita de aprox. 42 mp Parter + Etaj (170 mp) Parter: 2 intrari, 1 hol de acces, 1 living mare (poate fi transformat in 2 camere), 2 bai Etaj: compartimentare decomandata cu 1 hol de acces, 1 living, 2 dormitoare, 1 bucatarie separata, 1 baie, 1 camera tehnica Mansarda (47,5 mp): 1 hol de acces, 2 dormitoare, 1 incapere pretabila pentru living cu bucatarie open space si camara, 1 baie Avantaje: zona buna, linistita, cu acces facil aproape de centrul orasului, Promenada Mall si gara gradinita, scoala, magazine, farmacii si transport public in imediata apropiere proprietate individuala teren de 373 mp (curte pavata si zona verde) 2 intrari si acces auto posibilitate de apartamentare pretabila pentru investitie sau spatiu de birouri bucatarie separata, mobilata si utilata 4 bai 8 camere cu posibilitate de recompartimentare Date de predare: Casa este intabulata si poate fi achizitionata imediat, atat din surse proprii, cat si prin credit bancar (pretul ramane acelasi indiferent de modalitatea de plata). Stadiu de predare: mobilata si utilata partial. Locuri de parcare: acces auto in curte si posibilitate de parcare pe strada. Data de predare: imediat. Locatie: Proprietatea se afla in cartierul Lazaret Zona retrasa si linistita, dar foarte aproape de centrul orasului, gara, scoli, magazine si zone verzi Caile de acces sunt complet amenajate (dale de beton si asfalt), iar cartierul este iluminat. ID intern: 22548 (Ne cerem scuze pentru eventualele diferente de informatii. Agentia NCL reda datele furnizate de proprietari sau dezvoltatori.)
Citește mai mult Citește mai puțin
Mobilat Parțial mobilat Centrală proprie Beci Renovat

Detalii casă

ID anunț: X7IV11143 Copiat! 269542077 Copiat!
Actualizat în: 30 Ianuarie 2026
Suprafață construită: 320 mp
Suprafață desfășurată: 320 mp
Nr. bucătării: 1
Nr. băi: 4
An construcție: 1990 (Finalizată)
Structură rezistență: Altele
Etaj: Etaj 1 / 1
Regim înălțime: S+P+1E+M

Utilități

Destinație
Birouri
Podele
Parchet Gresie Mochetă
Bucătărie
Utilată Mobilată
Electrocasnice
Aragaz Frigider
Diverse
Scară interioară
Alte spații utile
WC Serviciu
Utilități
Apă Curent Gaze Canalizare
Amenajare străzi
Asfaltate Iluminat stradal Mijloace de transport în comun
Comision
2%

Puncte de interes

Mijloace transport
bus-station
Libra 1
Stații autobuz aprox. 60 m
bus-station
Strungarului
Stații autobuz aprox. 177 m
bus-station
Treboniu Aurelian
Stații autobuz aprox. 238 m
bus-station
Complex Otetarilor
Stații autobuz aprox. 339 m
Școală
school
Scoala Generala 20
Școli aprox. 87 m
school
Liceul Louis Pasteur
Școli aprox. 333 m
kindergarten
Gradinita Calimero
Gradinițe aprox. 555 m
university
Facultatea de Geografia Turismului
Universități aprox. 891 m
Recreere
restaurant
Rapid
Restaurant aprox. 613 m
park
Parc Piata 1 Decembrie 1918
Parcuri aprox. 825 m
sports-ground
Teren basket
Terenuri sport aprox. 1095 m
supermarket
Billa
Supermarket aprox. 1376 m

Detalii despre preț și costuri

Costuri cu achiziția

Fără credit
49.891 RON
Credit ipotecar
52.468 RON
Noua casă
1.897 RON+ taxe notariale

i

Costuri adiționale mai puțin știute la achiziție: taxe notariale, comisioane etc.

Proprietăți recomandate

Detalii de contact

New Concept Living

Irina Pavelescu Senior Partner

5.00(3 review-uri)

New Concept Living
PRO

Abonează-te la newsletter să fii primul care primește cele mai noi recomandări de proprietăți și sfaturi de la experți.

CONTACT

Creează alertă

Salvează căutarea ca să primești pe email ultimele anunțuri publicate

Case individuale cu 4+ camere de vânzare în zona Lazaret, Sibiu