3

Casa cu 2 apartamente separate garaj acces auto zona Piata Cluj Sibiu

279.900 €

Piața Cluj, Sibiu

Nr. cam.:
5
Sup. utilă:
145 mp
Sup. teren:
319 mp
Tip prop.:
Casă individuală
  • • Locație aproximativă

Descriere casă

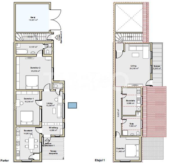
Cauti o casa spatioasa in Sibiu pentru tine si familia ta?Vrei sa faci o investitie sa ai un venit pasiv garantat ? TABOO Imobiliare iti propune aceasta casa/vila de vanzare cu 5 camere, situata in zona Piata Cluj, Sibiu – o locatie apreciata pentru accesibilitate si liniste. Imobilul are o suprafata utila de 145 mp si este compartimentat inteligent in 2 apartamente complet separate, fiecare cu intrare proprie, fiind ideal atat pentru locuit, cat si pentru investitie (inchiriere sau doua familii). Suprafata construita este de 207 mp, amplasata pe un teren cu suprafata totala generoasa, din care rezulta o curte libera de aproximativ 198-199 mp. Compartimentare: Apartament Parter (81 mp utili) – intrare separata: 3 camere decomandate 2 bai bucatarie hol Apartament Mansarda (64 mp utili + balcon 8 mp) – intrare separata: 2 camere bucatarie baie balcon Compartimentare generala casa: Parter: hol, living, 2 dormitoare, 2 bai , bucatarie,  Etaj/Mansarda: hol, living, dormitor, baie,bucatarie, balcon Pod: spatiu pentru depozitare Proprietatea dispune de: curte comuna separata in acte acces auto in curte garaj curte libera amenajata cu zona de gratar si relaxare posibilitate parcare in curte Dotari si utilitati: constructie din caramida casa izolata termic centrale termice proprii pentru fiecare apartament si calorifere aer conditionat curent electric, apa, canalizare, gaz, internet Finisaje: usa intrare pvc usi interioare celulare tamplarie pvc cu geam termopan podele din parchet si gresie pereti finisati cu vopsea lavabila si faianta Casa se preda complet mobilata si utilata, fiecare apartament fiind gata de utilizare imediata. In exterior regasim o curte libera de aproximativ 199 mp, ideala pentru relaxare, zona de joaca pentru copii sau amenajare spatiu verde. Imobilul este situat in apropiere de, institutii publice, banci, scoli si statii pentru mijloace de transport in comun. Aceasta proprietate reprezinta o oportunitate excelenta pentru doua familii sau pentru investitie, datorita celor doua apartamente independente cu acces separat. Pentru mai multe detalii si programarea unei vizionari, contacteaza TABOO Imobiliare. Pret: 279.900€ Cod ofertă / ID: P26453 Sună-ne acum la numarul din anunt și află detalii despre această proprietate de vanzare din Sibiu, dar și despre alte proprietăți potrivite pentru tine.
Citește mai mult Citește mai puțin
Mobilat Curte Aer condiționat Calorifere Centrală proprie Bine întreținut (Bună)

Detalii casă

ID anunț: X5EK112OL Copiat! 275392942 Copiat!
Actualizat în: 17 Mai 2026
Tip tranzacție: De vânzare prin agent
Suprafață construită: 207 mp
Nr. bucătării: 2
Nr. băi: 3
Nr. balcoane / Terase / Logii: 1
An construcție: 2008 (Finalizată)
Structură rezistență: Cărămidă
Modalitate de plată: Cash sau Credit

Utilități

Pereți
Vopsea lavabilă Faianță
Podele
Parchet Gresie
Ușă intrare
PVC
Uși interior
Celulare
Izolații termice
Exterior
Ferestre cu geam termopan
PVC PVC
Contorizare
Apometre Contor gaz
Bucătărie
Mobilată Utilată
Electrocasnice
Mașină de spălat Frigider Aragaz TV Hotă
Utilități
Curent Apă Canalizare Gaze
Amenajare străzi
Asfaltate Iluminat stradal Mijloace de transport în comun
Comision
2%

Puncte de interes

Mijloace transport
bus-station
Kiev
Stații autobuz aprox. 110 m
bus-station
Kogalniceanu
Stații autobuz aprox. 129 m
bus-station
Paris 2
Stații autobuz aprox. 418 m
bus-station
Paris 1
Stații autobuz aprox. 432 m
Școală
kindergarten
Gradinita Nr. 19
Gradinițe aprox. 90 m
school
Scoala cu Clasele I - VIII NR. 12 Sibiu
Școli aprox. 113 m
university
Laboratoare ULBS
Universități aprox. 1171 m
kindergarten
Gradinita Nr. 18
Gradinițe aprox. 1489 m
Recreere
park
Parc Piata Cluj
Parcuri aprox. 176 m
restaurant
Kon Tiki
Restaurant aprox. 211 m
sports-ground
Teren sportiv
Terenuri sport aprox. 421 m
supermarket
Kaufland
Supermarket aprox. 870 m

Istoricul prețurilor

Acces la informații premium după autentificare
Login Gratuit

Detalii despre preț și costuri

Costuri cu achiziția

Fără credit
Credit ipotecar
Noua casă

i

Costuri adiționale mai puțin știute la achiziție: taxe notariale, comisioane etc.

Acces la informații premium după autentificare
Login Gratuit

Proprietăți similare

Casă individuală cu 5 camere în Turnișor
298.000 €
Sibiu, Turnișor
5 camere
280 mp
395 mp teren
Casă individuală cu 5 camere în Piața Cluj
279.990 €
Sibiu, Piața Cluj
5 camere
180 mp
336 mp teren
Casă individuală cu 4 camere în Turnișor
268.000 €
Sibiu, Turnișor
4 camere
150 mp
867 mp teren

Detalii de contact

TABOO Imobiliare

TABOOro

4.68(21 review-uri)

TABOO Imobiliare
PRO

Abonează-te la newsletter să fii primul care primește cele mai noi recomandări de proprietăți și sfaturi de la experți.

CONTACT

Creează alertă

Salvează căutarea ca să primești pe email ultimele anunțuri publicate

Case individuale cu 4+ camere de vânzare în zona Piața Cluj, Sibiu