Casă cu panoramă spre dealurile Șiriei

99.000 €

Șiria, Județul Arad

Nr. cam.:
5
Sup. utilă:
190 mp
Sup. teren:
1.260 mp
Tip prop.:
Individuală
  • • Locație aproximativă

Descriere casă

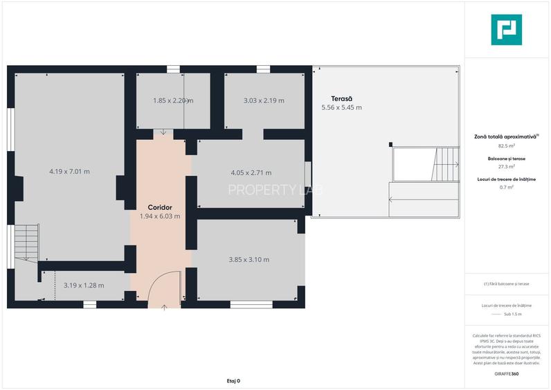
Casă de vânzare în Siria, județul Arad – cu vedere superbă spre dealurile cu viță de vie PropertyLab vă oferă spre achiziție o casă semifinisată, spațioasă și luminoasă situată în localitatea Șiria, județul Arad — o zonă deosebit de frumoasă, apreciată pentru aerul curat și priveliștile către dealurile cu viță de vie. Detalii generale: • Teren: 1.260 mp cu deschidere de 22 ml • Suprafață construită: 230 mp • Suprafață utilă: 190 mp • Regim de înălțime: Parter + Pivniță + Mansardă • Structură din BCA • Compartimentare: la parter avem un living generos, o bucătărie cu loc de luat masa, cameră, spațiu tehnic, terasă la mansardă avem 2 camere mari și loc pentru baie Dotări și instalații: • Utilități: apă, curent, gaz • Instalație electrică finalizată la parter • Cablu TV tras în camere • Spații instalate pentru termostat și prize multiple în fiecare încăpere • Senzor de alarmă în fiecare cameră • Priză pentru climatizare amplasată la intrare • Instalație pregătită pentru sistem de alarmă complet • Infrastructură modernă, pregătită pentru amenajări ulterioare Alte avantaje: • Curte generoasă, perfectă pentru grădină, livadă sau spațiu de relaxare • Vedere panoramică către dealurile viticole din Siria • Acces facil la drumul principal și la facilitățile localității • Zonă liniștită, ideală pentru locuință permanentă. Proprietarul se angajează la ridicarea materialelor depozitate în casă și eliberarea spațiilor interioare. Sunați acum și programați o vizionare! Raluca Marinescu – Consultant imobiliar PropertyLab e-mail CP2755473
Citește mai mult Citește mai puțin
Zonă rurală

Detalii casă

ID anunț: X5I1111FR Copiat! 270836560 Copiat!
Actualizat în: 15 Ianuarie 2026
Nr. bucătării: 1
Nr. băi: 2
Nr. terase: 1
Front stradal: 22.0 m
Învelitoare acoperiș: Țiglă
Structură rezistență: Cărămidă
Regim înălțime: P+1E+M

Utilități

Contorizare
Contor gaz
Utilități
Curent Apă Canalizare Gaze
Amenajare străzi
Iluminat stradal Mijloace de transport în comun Asfaltate
Comision
standard

Disponibilitate proprietate:

Imediat

Puncte de interes

Mijloace transport
tram-station
Gara Aradul Nou
Stații tramvai aprox. 277 m
bus-station
Aradul Nou
Stații autobuz aprox. 316 m
Școală
school
Liceul Teoretic Adam Muller Guttenbrunn
Școli aprox. 1449 m
school
Generala nr. 20
Școli aprox. 1496 m
school
Generala nr. 20
Școli aprox. 1973 m
Recreere
supermarket
Billa
Supermarket aprox. 292 m
pub
Steaua
Pub aprox. 976 m
sports-ground
Stadionul Motorul
Terenuri sport aprox. 1106 m
park
Piata Eroilor
Parcuri aprox. 1534 m

Detalii despre preț și costuri

Costuri cu achiziția

Fără credit
6.063 RON
Credit ipotecar
7.596 RON
Noua casă
644 RON+ taxe notariale

i

Costuri adiționale mai puțin știute la achiziție: taxe notariale, comisioane etc.

Proprietăți recomandate

Detalii de contact

PROPERTY LAB

Raluca Marinescu Real Estate Consultant Arad

PROPERTY LAB

Abonează-te la newsletter să fii primul care primește cele mai noi recomandări de proprietăți și sfaturi de la experți.

CONTACT

Creează alertă

Salvează căutarea ca să primești pe email ultimele anunțuri publicate

Case individuale cu 4+ camere de vânzare în Șiria, Județul Arad