Refugiu Elegant lângă Pădurea Snagov: Casa Visurilor Tale (T2)

220.000 € + TVA

Snagov, Județul Ilfov

Nr. cam.:
5
Sup. utilă:
170 mp
Sup. teren:
425 mp
Tip prop.:
Casă individuală
  • • Comision 0%
  • • Locație exactă

Descriere casă

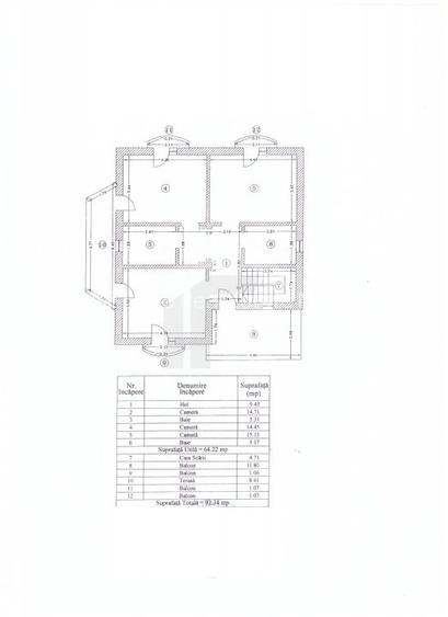
Descoperiți o oază de liniște și rafinament în inima naturii, la doar câțiva pași de facilitățile esențiale. Situată în prestigiosul ansamblu rezidențial Snagov Villas, această vilă deosebită îmbină armonios confortul modern cu farmecul peisajului natural din vecinătatea pădurii Snagov.   Cu o suprafață generoasă de 170 mp, această reședință P+1 oferă un spațiu intim și elegant, perfect pentru familii. Cele 5 camere luminoase, dintre care 4 dormitoare spațioase și 3 băi moderne, sunt completate de 4 balcoane ce deschid priveliști asupra grădinii pline de verdeață.   Construită cu atenție la detalii, vila beneficiază de o structură solidă din beton și izolație exterioară, garantând o durabilitate excepțională și un confort termic constant datorită centralei proprii. Finisajele moderne și personalizabile îți oferă libertatea de a transforma fiecare colț într-un spațiu care reflectă stilul tău.   Curtea generoasă și aerisită este o invitație la relaxare în aer liber, iar grădina deschisă oferă intimitatea necesară pentru momente de liniște și reconectare cu natura. Accesul facil la școală, grădiniță și trattorie adaugă un plus de confort stilului de viață cotidian.   Aceasta nu este doar o casă, ci un refugiu pentru cei care își doresc să trăiască în armonie cu natura, fără a renunța la luxul și comoditățile moderne. Ideală pentru cei ce prețuiesc liniștea și un stil de viață eco-friendly, această proprietate promite să fie locul unde visele devin realitate.
Citește mai mult Citește mai puțin
Nemobilat Grădină Curte Centrală proprie 2 Parcări Bine întreținut (Bună)

Detalii casă

ID anunț: X5LL111BK Copiat! 272840945 Copiat!
Actualizat în: 03 Martie 2026
Suprafață construită: 80 mp
Nr. bucătării: 1
Nr. băi: 3
Nr. balcoane / Terase / Logii: 4
Nr. terase: 1
Suprafață terase: 18 mp
An construcție: 2010 (Finalizată)
Structură rezistență: Beton
Regim înălțime: P+1E

Utilități

Pereți
Vopsea lavabilă Faianță
Podele
Parchet Gresie
Ușă intrare
Metal
Uși interior
Lemn
Izolații termice
Exterior
Ferestre cu geam termopan
PVC
Contorizare
Apometre Contor gaz
Utilități
Curent Apă Canalizare Gaze
Internet
Fibră optică
Amenajare străzi
Asfaltate
Comision
0%

Certificat energetic:

Clasa energetică: A

Puncte de interes

Recreere
park
Parc
Parcuri aprox. 997 m
park
Parc
Parcuri aprox. 1209 m
park
Parc
Parcuri aprox. 1762 m

Detalii despre preț și costuri

Costuri cu achiziția

Fără credit
12.045 RON
Credit ipotecar
14.288 RON
Noua casă
1.497 RON+ taxe notariale

i

Costuri adiționale mai puțin știute la achiziție: taxe notariale, comisioane etc.

Proprietăți recomandate

Detalii de contact

Abonează-te la newsletter să fii primul care primește cele mai noi recomandări de proprietăți și sfaturi de la experți.

CONTACT

Creează alertă

Salvează căutarea ca să primești pe email ultimele anunțuri publicate

Case individuale cu 4+ camere de vânzare în Snagov, Județul Ilfov