Casa individuala pe un singur nivel - zona linistita si retrasa

220.000 €

Șura Mare, Județul Sibiu

Nr. cam.:
4
Sup. utilă:
122 mp
Sup. teren:
390 mp
Tip prop.:
Casă individuală
  • • Locație aproximativă
  • • Vizionare prin apel video

Descriere casă

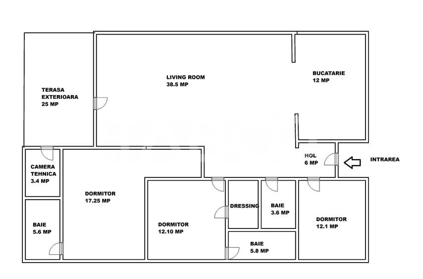
Casa se preteaza unei familii cu copii care doreste sa se bucure de spatiu verde si loc de joaca in propria curte. Terenul este generos si este dispus in spatele si lateralul casei. Si mai sunt niste vecini foarte cumsecade, case frumoase si elegante, liniste si intimitate dincolo de asteptarile dumneavoastra, aer curat si racoare. Foarte multa racoare, in asa fel incat ai putea crede ca te afli intr-o vizita la Predeal. O casa individuala moderna, amplasata pe o strada privata din Sura Mare cu o suprafata utila de 122 mp, construita in 2025.  Casa se preda la stadiul de alb la interior si cheie la exterior. Aceasta este compartimentata astfel: living spatios si luminos, cu o bucatarie semi-deschisa si 3 dormitoare, iar la doua din ele puteti sa va bucurati de baie proprie si dressing incapator. Exista si cea de-a 3 baie care deserveste restul casei. In zona din spate regasim o terasa generoasa de 20 mp si camera tehnica. Teren total de 390 metri si teren liber de 219 metri. La exterior scapati de grija parcarii deoarece dispuneti de parcare proprie amenajata in fata casei. Facilitatile si utilitatile acestei proprietati care o fac sa devina si mai interesanta sunt: sistemul de încalzire in pardoseala, (separat pe fiecare camera); curentul trifazic, racordata la apa,curent, canalizare, gaz. La exterior proprietatea este izolata cu polistiren de 10 cm, curtea si aleea pietonala sunt amenajate. Casa este construita pentru a va crea cele mai frumoase momente fiind situata intr-o zona linistita dar cu acces facil catre zone comerciale, scoli, transport in comun. Pret: 220.000€ Cod ofertă / ID: P26398 Sună-ne acum la numarul din anunt și află detalii despre această proprietate de vanzare din Sura Mare, dar și despre alte proprietăți potrivite pentru tine.
Citește mai mult Citește mai puțin
Nemobilat Grădină Curte Încălzire prin pardoseală 3 Parcări Bine întreținut (Bună)

Detalii casă

ID anunț: X5EK112OB Copiat! 275361134 Copiat!
Actualizat în: 27 Martie 2026
Suprafață construită: 171 mp
Nr. bucătării: 1
Nr. băi: 3
Nr. terase: 1
Suprafață terase: 25 mp
An construcție: 2024 (Finalizată)
Structură rezistență: Cărămidă

Utilități

Pereți
Vopsea lavabilă
Ușă intrare
Metal
Izolații termice
Exterior
Ferestre cu geam termopan
PVC PVC
Contorizare
Apometre Contor gaz
Utilități
Curent Apă Canalizare Gaze CATV Telefon
Amenajare străzi
Asfaltate Pietruite Iluminat stradal Mijloace de transport în comun

Puncte de interes

Mijloace transport
bus-station
Viile Sibiului
Stații autobuz aprox. 836 m
bus-station
Viile Sibiului
Stații autobuz aprox. 855 m

Detalii despre preț și costuri

Costuri cu achiziția

Fără credit
10.460 RON
Credit ipotecar
12.507 RON
Noua casă
1.262 RON+ taxe notariale

i

Costuri adiționale mai puțin știute la achiziție: taxe notariale, comisioane etc.

Proprietăți similare

Casă individuală cu 4 camere în Șura Mare
219.990 €
Județul Sibiu, Șura Mare
4 camere
120 mp
395 mp teren
Casă individuală cu 4 camere în Șura Mare
200.000 €
Județul Sibiu, Șura Mare
4 camere
100 mp
483 mp teren
Casă individuală cu 4 camere în Șura Mare
235.000 €
Județul Sibiu, Șura Mare
4 camere
130 mp
670 mp teren

Detalii de contact

TABOO Imobiliare

TABOOro

4.68(21 review-uri)

TABOO Imobiliare
PRO

Abonează-te la newsletter să fii primul care primește cele mai noi recomandări de proprietăți și sfaturi de la experți.

CONTACT

Creează alertă

Salvează căutarea ca să primești pe email ultimele anunțuri publicate

Case individuale cu 4+ camere de vânzare în Șura Mare, Județul Sibiu