Casă nouă | 193 mp | Garaj dublu | Curte 315 mp | Mobilată – Șura Mare

279.000 €

Șura Mare, Județul Sibiu

Nr. cam.:
4
Sup. utilă:
193 mp
Sup. teren:
400 mp
Tip prop.:
Individuală
  • • Locație aproximativă

Descriere casă

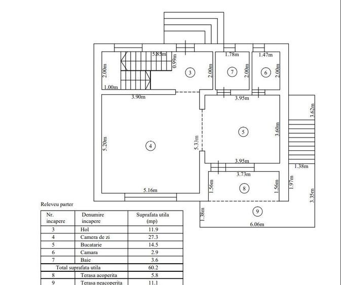
Îți imaginezi dimineața cu cafeaua pe terasa de 17 mp, în timp ce copiii se joacă în siguranță în curtea din spate? Această casă individuală, construită în 2024, face exact asta posibil – la doar 5 minute de Sibiu, într-o zonă liniștită, exclusiv rezidențială. CE PRIMEȘTI: • 193 mp utili pe 3 niveluri (demisol, parter, etaj + pod) • Teren 400 mp – curte liberă de 315 mp în spate, complet privată • Garaj pentru 2 mașini + 2 locuri parcare exterioare • Terasă generoasă de 17 mp • 3 dormitoare (unul cu baie proprie), living open space, 2 băi • Încălzire în pardoseală pe toată suprafața • Aer condiționat inclus PREDARE IMEDIATĂ: Casa se vinde mobilată și utilată complet (excepție: mobilier camera copilului). Te muți fără niciun stres. LOCAȚIE: Șura Mare – Viile Sibiului. Acces rapid la Prima Shopping Center, școli, mijloace de transport. Vedere spre munți și spre oraș. Se acceptă credit ipotecar. Preț: 279.000 euro Sună sau scrie pentru o vizionare – disponibilitate imediată.
Citește mai mult Citește mai puțin
Curte Aer condiționat Centrală proprie Încălzire prin pardoseală 4 Parcări 2 Garaje

Detalii casă

ID anunț: XB50112E6 Copiat! 275441198 Copiat!
Actualizat în: 16 Aprilie 2026
Nr. bucătării: 1
Nr. băi: 2
Nr. terase: 1
Suprafață terase: 17 mp
Învelitoare acoperiș: Țiglă
An construcție: 2024 (Finalizată)
Structură rezistență: Cărămidă
Regim înălțime: S+P+1E

Utilități

Pereți
Faianță
Podele
Gresie Mochetă Parchet
Ușă intrare
PVC
Izolații termice
Exterior
Ferestre cu geam termopan
PVC
Contorizare
Apometre Contor căldură Contor gaz
Bucătărie
Mobilată
Electrocasnice
Frigider Hotă Mașină de spălat Mașină spălat vase TV
Diverse
Telecomandă poartă garaj
Alte spații utile
Dressing
Facilități imobil
Acoperiș
Utilități
Curent Apă Canalizare CATV Gaze Telefon
Internet
Cablu Wireless
Amenajare străzi
Iluminat stradal Mijloace de transport în comun Asfaltate
Comision
standard

Disponibilitate proprietate:

Imediat

Puncte de interes

Mijloace transport
bus-station
Viile Sibiului
Stații autobuz aprox. 586 m
bus-station
Viile Sibiului
Stații autobuz aprox. 605 m

Detalii despre preț și costuri

Costuri cu achiziția

Fără credit
Credit ipotecar
Noua casă

i

Costuri adiționale mai puțin știute la achiziție: taxe notariale, comisioane etc.

Insight premium disponibil după login

Proprietăți similare

Casă individuală cu 8 camere în Șura Mare
300.000 €
Județul Sibiu, Șura Mare
8 camere
206 mp
1.180 mp teren
Casă individuală cu 6 camere în Șura Mare
279.900 €
Județul Sibiu, Șura Mare
6 camere
150 mp
407 mp teren
Casă individuală cu 5 camere în Șura Mare
254.900 €
Județul Sibiu, Șura Mare
5 camere
184 mp
500 mp teren

Detalii de contact

Welhome Imobiliare

Claudiu Drasovean Broker Imobiliar

Welhome Imobiliare
PRO

Abonează-te la newsletter să fii primul care primește cele mai noi recomandări de proprietăți și sfaturi de la experți.

CONTACT

Creează alertă

Salvează căutarea ca să primești pe email ultimele anunțuri publicate

Case individuale cu 4+ camere de vânzare în Șura Mare, Județul Sibiu