Casa individuala premium, Sura Mica, Sibiu

214.000 €

Șura Mică, Județul Sibiu

Nr. cam.:
4
Sup. utilă:
125 mp
Sup. teren:
390 mp
Tip prop.:
Individuală
  • • Locație aproximativă

Descriere casă

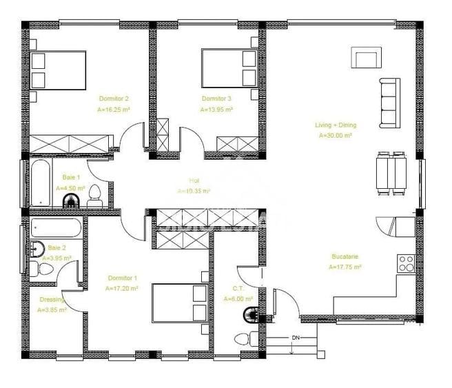
Casa individuala pe un singur nivel !! Materiale premium, compartimentare excelenta. Sibiu, Sura Mica - flux lejer spre oras Casa cuprinde 125mp utili , teren 390 mp Este formata din: living mare cu bucataria alaturata dormitor matrimonial cu baie si dressing propriu - 17, 2 mp 2 dormitoare secundare 16,25 mp si respectiv 14 mp 2 bai Construita cu materiale premium, izolatie exterioara de 15 cm, izolatie fata de pod cu lana de lemn de 23 cm, geamuri termopan Veka 82 cu rulouri electrice, usa acces din aluminiu, incalzire in pardoseala si centrala proprie. Casa se vinde racordata la toate utilitatile - apa, canal, gaz, curent, drumul de acces se v-a asfalta. Una dintre putinele case pe un nivel, daca asta cauti, nu pierde timpul !! Oferta unica !! Pret vanzare 214.000 euro - semifinisat ALB Poze cu titlu de prezentare, terenul din jurul casei este in curs de amenajare! Sibiu Estate - Casa TA .... povestea noastra
Citește mai mult Citește mai puțin
Centrală proprie Încălzire prin pardoseală 2 Parcări

Detalii casă

ID anunț: XFOU1107H Copiat! 275179073 Copiat!
Actualizat în: 05 Martie 2026
Suprafață construită: 145 mp
Suprafață desfășurată: 145 mp
Nr. bucătării: 1
Nr. băi: 3
Învelitoare acoperiș: Țiglă
An construcție: 2025 (Finalizată)
Structură rezistență: Cărămidă
Regim înălțime: P+1E

Utilități

Rulouri/Obloane
Aluminiu
Ușă intrare
Metal
Izolații termice
Exterior
Ferestre cu geam termopan
PVC
Contorizare
Apometre Contor gaz
Facilități imobil
Acoperiș
Utilități
Curent Apă Canalizare CATV Gaze
Internet
Cablu
Amenajare străzi
Mijloace de transport în comun Asfaltate
Comision
standard

Disponibilitate proprietate:

Imediat

Detalii despre preț și costuri

Costuri cu achiziția

Fără credit
10.247 RON
Credit ipotecar
12.268 RON
Noua casă
1.230 RON+ taxe notariale

i

Costuri adiționale mai puțin știute la achiziție: taxe notariale, comisioane etc.

Proprietăți recomandate

Detalii de contact

Sibiu Estate

Florin Imre Consilier Imobiliar

Sibiu Estate
PRO

Abonează-te la newsletter să fii primul care primește cele mai noi recomandări de proprietăți și sfaturi de la experți.

CONTACT

Creează alertă

Salvează căutarea ca să primești pe email ultimele anunțuri publicate

Case individuale cu 4+ camere de vânzare în Șura Mică, Județul Sibiu