Casa individuala pe un nivel, 94mp utili, la cheie, 500mp teren

207.000 €

Șura Mică, Județul Sibiu

Nr. cam.:
4
Sup. utilă:
93,98 mp
Sup. teren:
500 mp
Tip prop.:
Individuală
  • • Locație aproximativă

Descriere casă

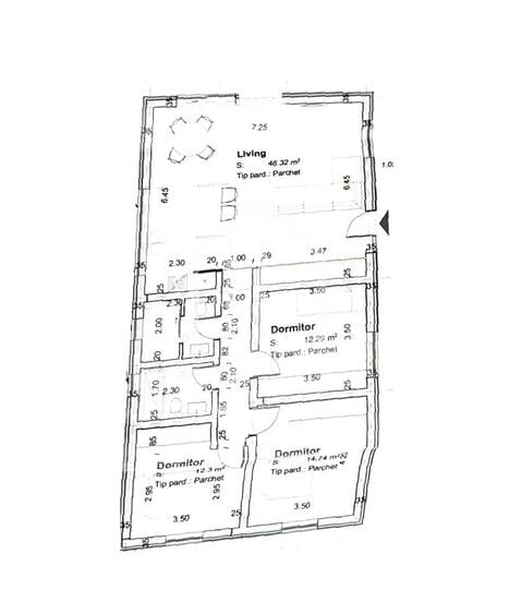
Casa individuala, 4 camere, pod mansardabil, incalzire in pardoseala, toate utilitatile Avantaje: -constructie noua -casa pe un singur nivel cu posbilitate de mansardare -tavan izolat -terasa spatioasa -incalzire in pardoseala -geamuri antracit cu 3 foi -bai cu geam pentru aerisire -drumul de acces in proces de asfaltare Detalii tehnice: -geamuri antracit cu 3 foi -ușă de intrare din pvc salmander -tiglă antracit -incălzire în pardoseală pe întreaga suprafață a casei -sapă turnată și placă de beton Compartimetare: -living cu bucatarie de tip open space -hol -2 bai -3 dormitoare -terasa Casa este finisata in proces de 90% Casa se prede la stadiul de alb la interior si la cheie exterior Calea de acces este in proces de asfaltare Termen de predare inceput de luna august 2025. Locatia: Sibiu, localitatea Sura Mica Iti doresti mai mult decat o simpla locuinta? Noi suntem aici pentru a-ți oferi cele mai bune soluții. Oferim servicii de DESIGN SI AMENAJARI INTERIOARE, PROPERTY MANAGEMENT, REGIM HOTELIER, HOME STAGING, VIRTUAL INVESTMENT, SERVICII DE CURATENIE.
Citește mai mult Citește mai puțin
Centrală proprie Încălzire prin pardoseală 3 Parcări

Detalii casă

ID anunț: XDQ4110ID Copiat! 275289180 Copiat!
Actualizat în: 28 Aprilie 2026
Tip tranzacție: De vânzare prin agent
Nr. bucătării: 1
Nr. băi: 2
Nr. terase: 1
Învelitoare acoperiș: Țiglă
An construcție: 2025
Structură rezistență: Cărămidă
Modalitate de plată: Cash sau Credit

Utilități

Izolații termice
Exterior
Utilități
Curent Apă Canalizare CATV Gaze Telefon
Internet
Cablu
Amenajare străzi
Iluminat stradal Mijloace de transport în comun Asfaltate
Comision
standard

Disponibilitate proprietate:

Imediat

Detalii despre preț și costuri

Costuri cu achiziția

Fără credit
Credit ipotecar
Noua casă

i

Costuri adiționale mai puțin știute la achiziție: taxe notariale, comisioane etc.

Acces la informații premium după autentificare
Login Gratuit

Proprietăți similare

Casă individuală cu 5 camere în Șura Mică
195.000 €
Județul Sibiu, Șura Mică
5 camere
110 mp
500 mp teren
Casă individuală cu 5 camere în Șura Mică
222.640 €
Județul Sibiu, Șura Mică
5 camere
121 mp
469 mp teren
Casă individuală cu 5 camere în Șura Mică
209.000 €
Județul Sibiu, Șura Mică
5 camere
109,34 mp
441 mp teren

Detalii de contact

Virtual Imobiliare

Petru Caburgan Consultant Imobiliar

Virtual Imobiliare

Abonează-te la newsletter să fii primul care primește cele mai noi recomandări de proprietăți și sfaturi de la experți.

CONTACT

Creează alertă

Salvează căutarea ca să primești pe email ultimele anunțuri publicate

Case individuale cu 4+ camere de vânzare în Șura Mică, Județul Sibiu