Casă individuală de vânzare – Șura Mică ,Teren 475 mp, zonă linistita

235.000 €

Șura Mică, Județul Sibiu

Nr. cam.:
4
Sup. utilă:
119,66 mp
Sup. teren:
480 mp
Tip prop.:
Individuală
  • • Locație aproximativă

Descriere casă

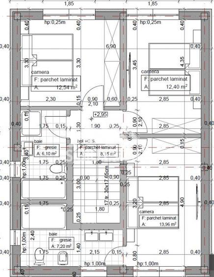
🏡 Casă individuală de vânzare – Șura Mică | Teren 475 mp | Finisaje premium, zonă liniștită Descoperă confortul și echilibrul unei locuințe moderne, amplasată într-o zonă dezvoltată din Șura Mică, în apropiere de sala de sport. Accesul este facil, pe străzi asfaltate, cu iluminat public și vecinătăți de calitate – un cadru ideal pentru o viață liniștită, aproape de Sibiu. 🔑 Detalii proprietate: Teren: 475 mp Regim de înălțime: P + E Predare: 2026 🏠 Compartimentare inteligentă și funcțională: Parter: Living spațios – 30,23 mp, cu acces direct spre terasă Bucătărie – 13,6 mp, ce poate fi închisă sau open space Cămară – 2,8 mp Baie – 5,16 mp Casă scării Etaj: 3 dormitoare: 12,5 mp, 12,4 mp și 13,9 mp 2 băi generoase: 6,10 mp și 7,20 mp 🌿 Terasă: 19,25 mp neacoperită, ideală pentru relaxare în aer liber. ✨ Dotări și finisaje: Predare la stadiul de alb la interior (cu posibilitate de finisare „la cheie”) Exterior finisat complet Placă de beton între etaje Încălzire în pardoseală la ambele niveluri Izolație cu vată bazaltică Tâmplărie PVC cu 3 foi de sticlă și 7 camere Curte amenajată, cu zone de acces pavate Această casă combină designul modern cu funcționalitatea, oferind tot confortul de care o familie are nevoie pentru a se simți „acasă”. 🏡 Sibiuestate – Casa ta, Povestea noastră.
Citește mai mult Citește mai puțin
Curte Centrală proprie Încălzire prin pardoseală

Detalii casă

ID anunț: XFOU11098 Copiat! 275455059 Copiat!
Actualizat în: 20 Aprilie 2026
Suprafață construită: 60 mp
Suprafață desfășurată: 150 mp
Nr. bucătării: 1
Nr. băi: 3
Nr. terase: 1
Suprafață terase: 22.85 mp
Front stradal: 14.18 m
Structură rezistență: Cărămidă
Regim înălțime: P+1E

Utilități

Pereți
Vopsea lavabilă
Ușă intrare
PVC
Izolații termice
Exterior
Ferestre cu geam termopan
PVC
Contorizare
Apometre Contor gaz
Facilități imobil
Acoperiș
Utilități
Curent Apă Canalizare Gaze
Internet
Cablu
Amenajare străzi
Iluminat stradal Asfaltate

Certificat energetic:

Clasa energetică: B

Vecinătăți:

Scoli, Zone verzi, Sali de sport

Disponibilitate proprietate:

Imediat

Detalii despre preț și costuri

Costuri cu achiziția

Fără credit
Credit ipotecar
Noua casă

i

Costuri adiționale mai puțin știute la achiziție: taxe notariale, comisioane etc.

Insight premium disponibil după login

Proprietăți similare

Casă individuală cu 4 camere în Șura Mică
218.000 €
Județul Sibiu, Șura Mică
4 camere
97 mp
500 mp teren
Casă individuală cu 4 camere în Șura Mică
242.000 €
Județul Sibiu, Șura Mică
4 camere
130 mp
500 mp teren
Casă individuală cu 4 camere în Șura Mică
235.000 €
Județul Sibiu, Șura Mică
4 camere
136 mp
480 mp teren

Detalii de contact

Sibiu Estate

Lucian Boita Consilier Imobiliar

Sibiu Estate
PRO

Abonează-te la newsletter să fii primul care primește cele mai noi recomandări de proprietăți și sfaturi de la experți.

CONTACT

Creează alertă

Salvează căutarea ca să primești pe email ultimele anunțuri publicate

Case individuale cu 4+ camere de vânzare în Șura Mică, Județul Sibiu