1

Casa individuala, 5 camere, Sura Mica, Sibiu

209.000 €

Șura Mică, Județul Sibiu

Nr. cam.:
5
Sup. utilă:
109 mp
Sup. teren:
440 mp
Tip prop.:
Individuală
  • • Comision 0%
  • • Locație aproximativă

Descriere casă

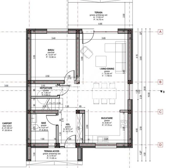
Casă Nouă în Șura Mică- Eficiență Energetică & Confort Modern ​Vă prezentăm oportunitatea de a vă muta într-o casă individuală spațioasă, situată într-un ansamblu rezidențial nou din Șura Mică, ideală pentru o familie care își dorește liniște, fără a renunța la accesibilitatea urbană. ​ ✨ Repere principale: ​Suprafață utilă: 109.34 mp bine compartimentați ​Teren: 441 mp (curte generoasă pentru relaxare) ​Dotari Premium: Încălzire în pardoseală cu pompă de căldură, izolatie exterioara de 15 cm polistiren (costuri reduse și confort termic ridicat) ​Locație:Sura Mica, stradă asfaltată, cu iluminat public și acces facil. ​📐 Compartimentare Inteligentă: ​Parter (57.82 mp) – Zona de zi și lucru: ​Living + Dining luminos (22 mp) cu ieșire spre grădină. ​Birou separat (12.07 mp) – perfect pentru "work from home". ​Bucătărie practică, baie, spațiu de depozitare și hol. Etaj: (51.52 mp) – Zona de odihnă: ​3 Dormitoare spațioase (între 12 mp și 15 mp). ​Baie principală (6.3 mp) și hol. ​✅ Detalii Tehnice & Predare: ​Proprietatea se predă la stadiul de "la cheie" la exterior, incluzând: ​Fațadă finisată cu tencuială decorativă,​teren complet împrejmuit, curte partial pavata. ​2 Locuri de parcare private. Utilitățile racordate: curent, apă, canalizare. ​💰 Preț: 209 000 € (TVA inclus) ​De ce să alegi această casă? Spre deosebire de apartamentele aglomerate, aici beneficiezi de intimitatea unei case individuale, de o curte proprie de peste 400 mp și de tehnologia modernă a pompei de căldură, care reprezintă viitorul în materie de economisire. ​📞 Contactează-ne pentru o vizionare
Citește mai mult Citește mai puțin
Centrală proprie Încălzire prin pardoseală 2 Parcări

Detalii casă

ID anunț: XFOU1105J Copiat! 274162939 Copiat!
Actualizat în: 27 Martie 2026
Tip tranzacție: De vânzare prin agent
Suprafață construită: 76 mp
Suprafață desfășurată: 147 mp
Nr. bucătării: 1
Nr. băi: 2
Nr. balcoane / Terase / Logii: 1
Nr. terase: 2
Suprafață terase: 16 mp
Învelitoare acoperiș: Țiglă
An construcție: 2026 (În construcție)
Regim înălțime: P+1E
Modalitate de plată: Cash sau Credit

Utilități

Ușă intrare
PVC
Izolații termice
Exterior
Utilități
Curent Apă Canalizare CATV Telefon
Internet
Cablu
Amenajare străzi
Iluminat stradal Mijloace de transport în comun Asfaltate
Comision
0%

Disponibilitate proprietate:

Imediat

Istoricul prețurilor

Acces la informații premium după autentificare
Login Gratuit

Detalii despre preț și costuri

Costuri cu achiziția

Fără credit
Credit ipotecar
Noua casă

i

Costuri adiționale mai puțin știute la achiziție: taxe notariale, comisioane etc.

Acces la informații premium după autentificare
Login Gratuit

Proprietăți similare

Casă individuală cu 5 camere în Șura Mică
195.000 €
Județul Sibiu, Șura Mică
5 camere
110 mp
500 mp teren
Casă individuală cu 5 camere în Șura Mică
222.640 €
Județul Sibiu, Șura Mică
5 camere
121 mp
469 mp teren
Casă individuală cu 5 camere în Șura Mică
209.000 €
Județul Sibiu, Șura Mică
5 camere
109,34 mp
441 mp teren

Detalii de contact

Sibiu Estate

Florin Imre Consilier Imobiliar

Sibiu Estate
PRO

Abonează-te la newsletter să fii primul care primește cele mai noi recomandări de proprietăți și sfaturi de la experți.

CONTACT

Creează alertă

Salvează căutarea ca să primești pe email ultimele anunțuri publicate

Case individuale cu 4+ camere de vânzare în Șura Mică, Județul Sibiu