3

Casa individuala cu 4 camere, 125mp utili, 490mp teren, Sura Mica

195.000 €

Șura Mică, Județul Sibiu

Nr. cam.:
4
Sup. utilă:
125 mp
Sup. teren:
490 mp
Tip prop.:
Individuală
  • • Locație aproximativă

Descriere casă

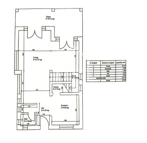
Casa individuala P+M+P, mobilata, 400mp curte libera, izolata termica Avantaje: -scara interioara pana in pod -izolata termic cu polistiren de 10cm -acces la doua strazi -calea de acces in proces de asfaltare -casa dispune de toate utilitatile Compartimentare: Parter: -hol de acces -bucatarie cu camara -baie -living -terasa Mansarda: -hol -2 dormitoare -baie -dormitor cu baie proprie si dressing -2 balcoane Locatia: Sibiu - Sura Mica Iti doresti mai mult decat o simpla locuinta? Noi suntem aici pentru a-ți oferi cele mai bune soluții. Oferim servicii de DESIGN SI AMENAJARI INTERIOARE, PROPERTY MANAGEMENT, REGIM HOTELIER, HOME STAGING, VIRTUAL INVESTMENT, SERVICII DE CURATENIE.
Citește mai mult Citește mai puțin
Mobilat Curte Calorifere Centrală proprie 2 Parcări

Detalii casă

ID anunț: XDQ4110KM Copiat! 275404420 Copiat!
Actualizat în: 28 Aprilie 2026
Tip tranzacție: De vânzare prin agent
Nr. bucătării: 1
Nr. băi: 3
Nr. balcoane / Terase / Logii: 2
Nr. terase: 1
Suprafață terase: 18 mp
An construcție: 2010
Structură rezistență: Cărămidă
Regim înălțime: P+M
Modalitate de plată: Cash sau Credit

Utilități

Pereți
Faianță
Podele
Gresie Parchet
Izolații termice
Exterior
Bucătărie
Mobilată
Utilități
Curent Apă Canalizare CATV Gaze Telefon
Internet
Cablu
Amenajare străzi
Iluminat stradal Mijloace de transport în comun Asfaltate
Comision
standard

Disponibilitate proprietate:

Imediat

Detalii despre preț și costuri

Costuri cu achiziția

Fără credit
Credit ipotecar
Noua casă

i

Costuri adiționale mai puțin știute la achiziție: taxe notariale, comisioane etc.

Acces la informații premium după autentificare
Login Gratuit

Proprietăți similare

Casă individuală cu 4 camere în Șura Mică
195.000 €
Județul Sibiu, Șura Mică
4 camere
125 mp
490 mp teren
Casă individuală cu 5 camere în Șura Mică
195.000 €
Județul Sibiu, Șura Mică
5 camere
110 mp
500 mp teren
Casă individuală cu 5 camere în Șura Mică
200.000 €
Județul Sibiu, Șura Mică
5 camere
132 mp
372 mp teren

Detalii de contact

Virtual Imobiliare

Petru Caburgan Consultant Imobiliar

Virtual Imobiliare

Abonează-te la newsletter să fii primul care primește cele mai noi recomandări de proprietăți și sfaturi de la experți.

CONTACT

Creează alertă

Salvează căutarea ca să primești pe email ultimele anunțuri publicate

Case individuale cu 4+ camere de vânzare în Șura Mică, Județul Sibiu