4

Casa individuala intabulata, incalzire in pardoseala, Izvor, Brasov

175.000 €

Tărlungeni, Județul Brașov

Nr. cam.:
4
Sup. utilă:
106 mp
Sup. teren:
500 mp
Tip prop.:
Individuală
  • • Locație aproximativă
  • • Vizionare prin apel video

Descriere casă

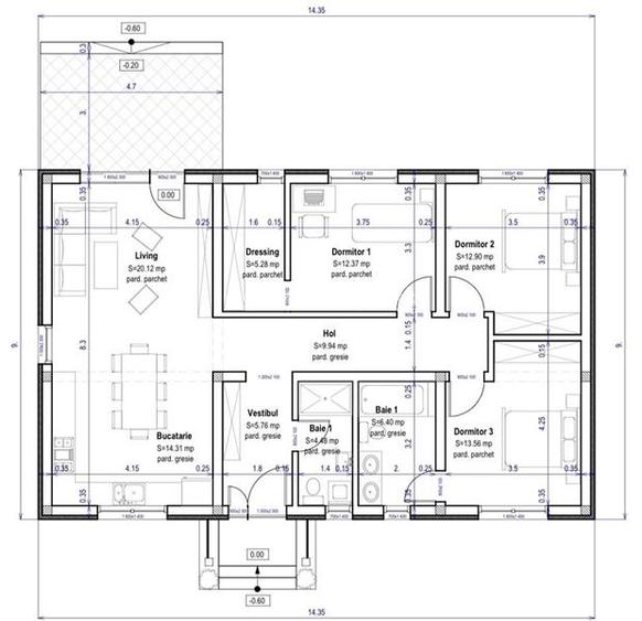
Vista Real Estate va propune spre vanzare o casa individuala situata pe stada Harmanului in cartierul Izvor din judetul Brasov. Aceasta dispune de o parcela de 500 mp, 144 mp amprenta casei, suprafata utila fiind de 106 mp compusa din 3 dormitoare, 2 bai, living open space cu bucataria, dressing, hol si o terasa cu suprafata de 14 mp. Casa este construita pe parter si dispune de suprafete vitrate mari avand termopane Salamander tripan 7 camere. Incalzirea este in pardoseala, izolatia exterioara este cu polistiren eps 80+, izolatie tavane cu vata bazaltica de 15 cm. Acoperisul este din tabla Bilka de 0,65 mm si constructia casei cu caramida de T30. Casa dispune si de un pod care se poate folosi ca si spatiu de depozitare. Aceasta dispune de toate utilitatile (gaz, curent, apa, fosa septica). Casa este intabulata. Pentru detalii suplimentare cat si pentru programarea unei vizionari, nu ezitati sa ma contactati. Pretul include un TVA de 21%.
Citește mai mult Citește mai puțin
Nemobilat Centrală proprie Încălzire prin pardoseală Zonă de deal / munte Zonă rurală

Detalii casă

ID anunț: XDHG110DV Copiat! 273872947 Copiat!
Actualizat în: 11 Februarie 2026
Suprafață construită: 144 mp
Suprafață desfășurată: 144 mp
Nr. băi: 2
Nr. terase: 1
Nr. fronturi stradale: 1
Învelitoare acoperiș: Tabla
An construcție: 2025 (Proiect)
Structură rezistență: Altele
Regim înălțime: P+1E

Utilități

Destinație
Rezidențial
Pereți
Faianță Vopsea lavabilă
Podele
Parchet Gresie
Izolații termice
Exterior
Ferestre cu geam termopan
PVC
Utilități
Apă Curent Gaze Fosa septică
Internet
Fibră optică
Amenajare străzi
Pietruite

Certificat energetic:

Clasa energetică: B

Detalii despre preț și costuri

Costuri cu achiziția

Fără credit
8.910 RON
Credit ipotecar
10.765 RON
Noua casă
1.032 RON+ taxe notariale

i

Costuri adiționale mai puțin știute la achiziție: taxe notariale, comisioane etc.

Proprietăți recomandate

Detalii de contact

VISTA REAL ESTATE

Roxana Jantea Consultant Imobiliar

VISTA REAL ESTATE
PRO

Abonează-te la newsletter să fii primul care primește cele mai noi recomandări de proprietăți și sfaturi de la experți.

CONTACT

Creează alertă

Salvează căutarea ca să primești pe email ultimele anunțuri publicate

Case individuale cu 4+ camere de vânzare în Tărlungeni, Județul Brașov