25

ridicam casa la cheie - termen de finalizare 3 luni - reteta japoneza- unicat in

82.000 €

Aeroport, Timișoara

Nr. cam.:
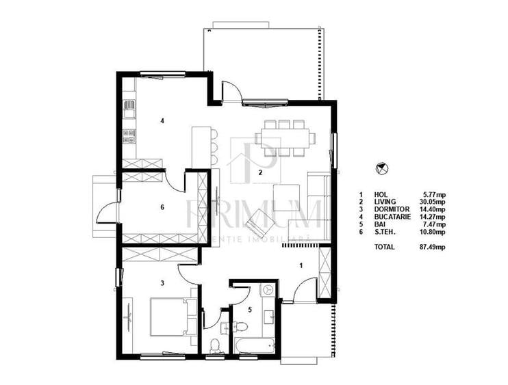
3
Sup. utilă:
87,5 mp
Sup. teren:
400 mp
Tip prop.:
Individuală
  • • Locație aproximativă
  • • Vizionare prin apel video

Descriere casă

Agentia imobiliara PRIMUM are placerea de a prezenta o lansare a unui parteneriat exclusiv cu o firmă specializată în construcția de case pe structură metalică, realizate după o rețetă japoneză modernă, testată și optimizată pentru eficiență, durabilitate și confort. Construim case pe parter, direct pe terenul clientului, cu un raport excelent calitate–preț. ✔ Structură metalică de ultimă generație ✔ Independență față de utilități ✔ Producție proprie de energie – panouri fotovoltaice + acumulatori ✔ Casă complet smart ✔ Poartă electrică inclusă ✔ Costuri de întreținere minime O soluție modernă pentru cei care își doresc o casă sigură, eficientă energetic și pregătită pentru viitor. – Casa se construiește pe terenul tău – Este pe parter, 87 mp utili 95 mp construiți – Structură metalică galvanizată, garanție 50 de ani – Fundație din beton, panouri sandwich, vată minerală Întrebarea reală nu este „de ce aș face asta?, ci: cât te costă, pe termen lung, o casă dependentă de utilități? Energia: – Panouri fotovoltaice – Stocare 30 kW – Producție din panouri 8 kW – sistem electric de căldură Practic, nu plătești utilități Control total: – Sistem electric GEWISS – Casă complet smart – Poartă automată – Stație de încărcare auto electric – Tâmplărie aluminiu, geam tripan Prețul? De la aproximativ 80.000 € pe poiectul din poza , în funcție de configurație se poate modifica ! Știu ce te gândești acum: „Unde e compromisul? Compromisul apare la construcțiile clasice. Aici vorbim de eficiență, predictibilitate și control. Dacă vrei să vezi dacă această soluție chiar are sens pentru terenul tău, discutăm concret. Fără presiune. Fără promisiuni goale. Mai multe detalii la telefon !
Citește mai mult Citește mai puțin
Centrală proprie Încălzire prin pardoseală

Detalii casă

ID anunț: XCPS1147D Copiat! 274882922 Copiat!
Actualizat în: 10 Martie 2026
Tip tranzacție: De vânzare prin agent
Suprafață construită: 100 mp
Suprafață desfășurată: 100 mp
Nr. băi: 2
Nr. terase: 1
Suprafață terase: 11 mp
An construcție: 2026 (Finalizată)
Structură rezistență: Altele
Regim înălțime: P+1E
Modalitate de plată: Cash sau Credit

Utilități

Destinație
Rezidențial
Izolații termice
Exterior Interior

Certificat energetic:

Clasa energetică: A

Puncte de interes

Mijloace transport
tram-station
Statie Hotel Continental Tv1, Tv2, Tv4, Tv5
Stații tramvai aprox. 26 m
bus-station
Statie Hotel Continental E2 retur
Stații autobuz aprox. 105 m
trolleybus-station
Statie B-dul Mihai Eminescu T19
Stații troleibuz aprox. 329 m
train-station
Gara de Est
Stații tren aprox. 1536 m
Școală
university
U.M.F. Medicină Dentară
Universități aprox. 141 m
university
Universitatea de Medicina si Farmacie Victor Babes
Universități aprox. 154 m
school
LICEU TEHNOLOGIC DE POSTA SI TELECOMUNICATII
Școli aprox. 196 m
kindergarten
Gradinita Program Prelungit Nr. 6
Gradinițe aprox. 221 m
Recreere
park
Parc
Parcuri aprox. 88 m
supermarket
Bega Shopping Center
Supermarket aprox. 124 m
public-square
Piata Tepes Voda
Piețe publice aprox. 191 m
mall
Kappa Centrul Comercial
Mall aprox. 1396 m

Detalii despre preț și costuri

Costuri cu achiziția

Fără credit
Credit ipotecar
Noua casă

i

Costuri adiționale mai puțin știute la achiziție: taxe notariale, comisioane etc.

Acces la informații premium după autentificare
Login Gratuit

Proprietăți similare

Casă individuală cu 3 camere în Fabric
89.000 €
Timișoara, Fabric
3 camere
70 mp
186 mp teren
Casă individuală cu 4 camere în Sânmihaiu Român
82.000 €
Județul Timiș, Sânmihaiu Român
4 camere
130 mp
533 mp teren
Casă individuală cu 3 camere în Cebza
75.000 €
Județul Timiș, Cebza
3 camere
170 mp
2.000 mp teren

Detalii de contact

PRIMUM

Alex Opris Consultant Imobiliar

5.00(4 review-uri)

PRIMUM
PRO

Abonează-te la newsletter să fii primul care primește cele mai noi recomandări de proprietăți și sfaturi de la experți.

Feedback apel

CONTACT

Creează alertă

Salvează căutarea ca să primești pe email ultimele anunțuri publicate

Case individuale cu 3 camere de vânzare în zona Aeroport, Timișoara