COMISION 0
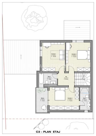
Propunem spre vânzare un ansamblu rezidențial, situat pe Calea Buziașului, la 5 minute de Continental, format din trei case individuale cu curte proprie și carport acoperit pentru două mașini. Clădirile au parter, etaj și terasă circulabilă și sunt concepute astfel: la parter cu un spațiu amplu pentru living, dining și bucătarie, un grup sanitar și un spațiu tehnic, la etajul 1 cu trei dormitoare și două băi, una cu acces direct din dormitorul principal și cealaltă cu acces din hol, iar la etajul 2 cu un hol de acces către terasa circulabilă. Curtea individuală cu gazon,arbori maturi și plante ornamentale beneficiază deasemenea de o terasă acoprită de 12mp.
Clădirile se predau finisate la cheie.
Cladirea 1(pret – 287.700 euro)
Arie construita desfașurată - 186,65mp
+ Terasa circulabilă (etaj 2) - 31,30mp
Arie utilă totală - 149,16mp
Teren aferent (fără drum) - 190,69mp
Carport - 2 locuri de parcare
Baumit, cărămidă aparentă Roben - producător german.
- Tâmlpărie pvc profil Kommerling cu sticlă tripan (folie 4 sezoane și argon) montată profesional cu benzi de etanșare la interior și exterior.
- Incalzire in pardoseală cu termostate ambientale pentru fiecare cameră, centrală Buderus pe gaz.
- Instalație de climatizare cu aer condiționat pentru etaj.
- Videointerfon si instalație electrica trifazică pregătită pentru panouri fotovoltaice.
- Terasa de la etajul 2 este dotată cu: deck wpc, instalatie pentru jacuzzi și instalatie pentru bucatarie exterioară.
- Carport pavat și acoperit pentru 2 masini.
- Curte amenajată complet cu gazon, arbori maturi, plante ornametale și garduri de compartimentare.
Dragoș
Sediul central - Timișoara
Bulevardul Victor Babeș nr. 2, 300230, Timișoara, România
Tel: +40.374.40.44.98 / Fax: +40.256.401.179
Email: suport@imobiliare.ro
Luni - Vineri 08:00 - 20:00
Punct de lucru - București: Iride Business Park, Bld. Dimitrie
Pompeiu 9-9A, Clădirea B2B,
020335, Sector 2, București, România
CONTACT
Sediul central - Timișoara
Bulevardul Victor Babeș nr. 2, 300230, Timișoara, România
Tel: +40.374.40.44.98 / Fax: +40.256.401.179
Email: suport@imobiliare.ro
Luni - Vineri 08:00 - 20:00
Punct de lucru - București: Iride Business Park, Bld. Dimitrie
Pompeiu 9-9A, Clădirea B2B,
020335, Sector 2, București, România
Sună acum și cere detalii sau programează o vizionare.
Nu rata ocazia să afli mai multe!
Sună acum și cere detalii sau programează o vizionare.
Cere detalii prin email
*
*
*
*
Stații tramvai
Stații autobuz
Gradinițe
Școli
Supermarket
Parcări
Parcuri
Terenuri sport
Spital
Farmacie
Bar
Restaurant
Bancă
Statie Ciarda Rosie Tv4
aprox.
540 m
Statie I.O.T. Tv4
aprox.
836 m
Statie Grup Scolar Electrotimis Tv4
aprox.
1244 m
Statie Ghe. Domasneanu Tv4, Tv8
aprox.
1453 m
Statie Piata Gheorghe Domasneanu Tv9
aprox.
1490 m
Statie Spumotim Tv4, Tv8
aprox.
1674 m
Statie Mecatim Tv4, Tv8
aprox.
1941 m
Continental
aprox.
1059 m
Electrotimis
aprox.
1248 m
Statie Piata Gheorghe Domasneanu E2
aprox.
1394 m
Piata Gheorghe Domasnean
aprox.
1424 m
Venus
aprox.
1510 m
Plastique Form
aprox.
1930 m
Gradinita Program Normal Nr. 6
aprox.
508 m
Gradinita Program Prelungit nr.38
aprox.
1232 m
Piticii din Vest
aprox.
1487 m
Gradinita Program Normal Nr. 19
aprox.
1926 m
Scoala Gimnaziala nr. 20
aprox.
508 m
Scoala Generala 20
aprox.
511 m
Colegiul Tehnic Electrotimis
aprox.
871 m
Liceul Electrotimiș
aprox.
908 m
Campus scolar Colegiul Tehnic Electrotimis
aprox.
931 m
COLEGIUL TEHNIC "ELECTROTIMIS"
aprox.
1164 m
Scoala Gimnaziala nr. 30
aprox.
1912 m
SCOALA GIMNAZIALĂ NR.30
aprox.
1916 m
Scoala generala nr. 30
aprox.
1952 m
Profi
aprox.
1200 m
Nova Tim
aprox.
1307 m
Lidl
aprox.
1548 m
Parcare
aprox.
791 m
Parcare privata
aprox.
798 m
Parcare
aprox.
854 m
Parcare
aprox.
889 m
Parcare
aprox.
902 m
Parcare privata
aprox.
912 m
Parcare
aprox.
934 m
Parcare
aprox.
946 m
Parcare
aprox.
956 m
Parcare
aprox.
962 m
Parcare
aprox.
988 m
Parcare privata
aprox.
998 m
Parcare
aprox.
1018 m
Parcare
aprox.
1037 m
Parcare
aprox.
1043 m
Parc
aprox.
752 m
Parcul Ciarda Rosie
aprox.
765 m
Parc
aprox.
1509 m
Baza de agrement Davia-Sport
aprox.
1822 m
Teren sportiv
aprox.
897 m
Teren sportiv
aprox.
913 m
Teren sportiv
aprox.
916 m
Teren sportiv
aprox.
918 m
Teren sportiv
aprox.
943 m
Teren sportiv
aprox.
992 m
Teren sportiv
aprox.
1009 m
Teren sportiv
aprox.
1025 m
Arena Ciarda Rosie
aprox.
1042 m
Teren sportiv
aprox.
1050 m
Teren sportiv
aprox.
1797 m
Teren sportiv
aprox.
1821 m
Teren sportiv
aprox.
1843 m
Teren sportiv
aprox.
1879 m
Telescan
aprox.
1142 m
Dispensar Giratoriu Buziasului. Centru de permanenta
aprox.
1321 m
Help Net
aprox.
1314 m
Apothecaria
aprox.
1321 m
Catena
aprox.
1357 m
Imedas
aprox.
1507 m
Club As
aprox.
1146 m
Mateo Cafe
aprox.
1326 m
Enjoy
aprox.
1229 m
Zet Fast Food
aprox.
1235 m
Beraria Timisoreana
aprox.
1247 m
BRD
aprox.
1089 m
BCR
aprox.
1307 m
La capitolul mijloace de transport în comun, timișorenii din Buziașului au acces atât la tramvaie (liniile 4 și 8, care circulă pe Calea Stan Vidrighin, dar și 9, de pe Bulevardul Liviu Rebreanu), cât și la autobuze (linia E2, care face legătura cu Ciarda Roșie și cu exteriorul orașului). Un bun mijloc de locomoție pentru locuitorii cartierului este, desigur, și bicicleta "“ cu toate că aici nu există o rețea de piste special amenajate.
În ciuda componenței sale mixte și numărului limitat de locuitori, Buziașului nu este, totuși, lipsit de soluții la capitolul educație "“ de menționat la acest capitol fiind Colegiul Tehnic Electrotimiș (amplasat pe Strada Matei Millo, nr. 2A). Cei care au copii mai mici pot conta, desigur, pe oportunitățile oferite de cartierele învecinate: în Ciarda Roșie se găsește, spre exemplu, Școala Gimnazială Nr. 20 (pe Strada Martir Constantin Radu, nr. 23), iar în cartierul Braytim se află creșa "Mini Kids" (pe Strada Vasile Mioc, nr. 6). În mod interesant, această subdiviziune a Timișoarei oferă și o variantă în materie de studii superioare: este vorba, mai exact, de Universitatea "Ioan Slavici", amplasată în partea de nord a cartierului (aproape de limita cu zona Complex-Stadion). Interesant este că această unitate particulară de învățământ include atât liceul "Ioan Slavici", cât și două facultăți (cu specializări în inginerie și, respectiv, în științe economice). Mai jos poți vedea în detaliu ce unități de învățământ există în Buziașului:
Cartierul Buziașului este mult mai bine deservit la capitolul retail. Astfel, pe lângă câteva magazine "de cartier", cei care locuiesc aici au acces la două supermarketuri importante, anume un Lidl, Auchan, Mega Image Shop & Go, dar și un Profi. De menționat ar fi și că în partea industrială a cartierului se găsesc o serie de depozite de mărfuri cu profil divers (materiale de construcții, mobilă, piese auto etc.).
Având în vedere că Buziașului nu este un cartier foarte populat, găsirea unui loc de parcare, fie el și permanent, nu ar trebui să reprezinte o problemă. Cei interesați, totuși, de închirierea unui astfel de spațiu se pot adresa autorităților locale (sediul Primăriei se găsește în zona Cetate, pe Bulevardul Constantin Diaconovici Loga, nr. 1).
Deși partea rezidențială a Buziașului este una destul de "aerisită" și bogată în spații verzi, aici nu se găsește, totuși, niciun parc propriu-zis "“ fapt deloc surprinzător, de altfel, având în vedere caracteristicile cartierului per ansamblu și numărul redus de locuitori. Cei care locuiesc aici pot ajunge, însă, cu relativă ușurință în Parcul Pădurice (fostul "Lidia"), din învecinatul Soarelui (care ocupă o porțiune importantă din suprafața acestuia). Pentru cei dornici să facă mișcare, o veste bună este că acest cartier atipic al Timișoarei este, în mod interesant, vizibil mai ofertant decât altele care au o componentă rezidențială mai substanțială; astfel, în sudul zonei industriale, chiar deasupra străzii Calea Buziașului, se găsesc facilități precum terenuri de sport în aer liber, piscină (ștrandul Sun Beach), dar și sală de forță. De asemenea, în nord-vestul cartierului, chiar la limita cu zona Complex-Stadion, se află și Baza Sportivă Nr. 2 Politehnica. Află, mai jos, ce alte opțiuni de petrecere a timpului liber mai ai în Buziașului:
Și când vine vorba de sănătate, timișorenii din Buziașului sunt destul de bine deserviți comparativ cu cei din alte subdiviziuni ale Timișoarei. Regăsim aici, pe strada Calea Buziașului, nr. 28, Centrul de Permanență 10, ce ține de Spitalul Clinic de Urgență pentru Copii "Louis Țurcanu" Timișoara. În această unitate se pot efectua, în mod gratuit, consultații ale pacienților care nu pun probleme medicale de urgență, precum și tratamente intramusculare. De asemenea, locuitorii acestui cartier pot spera, să-și găsească chiar un medic de familie aproape de casă, în zona sa rezidențială (chiar dacă în cadrul unui cabinet medical particular). Pe harta de mai jos găsești localizarea exactă a spitalelor și clinicilor din zonă:
Întrucât ne aflăm într-o zonă industrială, regăsim aici câteva fast food-uri de cartier, pizzerii, între care Pizza Land (de pe strada Calea Stan Vidrighin, nr. 14) și localul B40 (de pe Calea Buziașului, nr. 40). Verifică hartă și vezi unde vei găsi cel mai apropiat restaurant de viitoarea ta locuință.
Găsești o sucursală BRD pe Calea Buziașului nr. 32 și o sucursală BCR în Piața General Gh. Domășnean, nr. 5, în apropierea mini market-urilor de cartier și a farmaciilor. Consultă harta și află unde sunt localizate și alte bănci sau ATM-uri în zona de care ești interesat.
Înainte să pleci...
Ești sigur că ai văzut și aceste proprietăți?
340.000 €
Timișoara, Buziașului
5 camere
175 mp
600 mp teren
275.700 €
Timișoara, Buziașului
4 camere
149 mp
191 mp teren
315.000 €
Timișoara, Calea Urseni
4 camere
130 mp
320 mp teren
273.000 €
Timișoara, Plopi
4 camere
135 mp
430 mp teren
263.000 €
Timișoara, Bogdăneștilor
6 camere
200 mp
350 mp teren
219.000 €
Timișoara, Dorobanților
6 camere
175 mp
200 mp teren
Creează alertă
Salvează căutarea ca să primești pe email ultimele anunțuri publicate
Case individuale cu 4+ camere de vânzare în zona Buziașului, Timișoara
Cere detalii prin email
*
*
*
*
Detaliile tale de contact vor fi partajate cu Federman & Federman