53

Vanzare casa foarte solida,renovata impecabil.Zona Freidorf.

185.100 €

Freidorf, Timișoara

Nr. cam.:
3
Sup. utilă:
90 mp
Sup. teren:
600 mp
Tip prop.:
Individuală
  • • Exclusivitate
  • • Locație exactă

Descriere casă

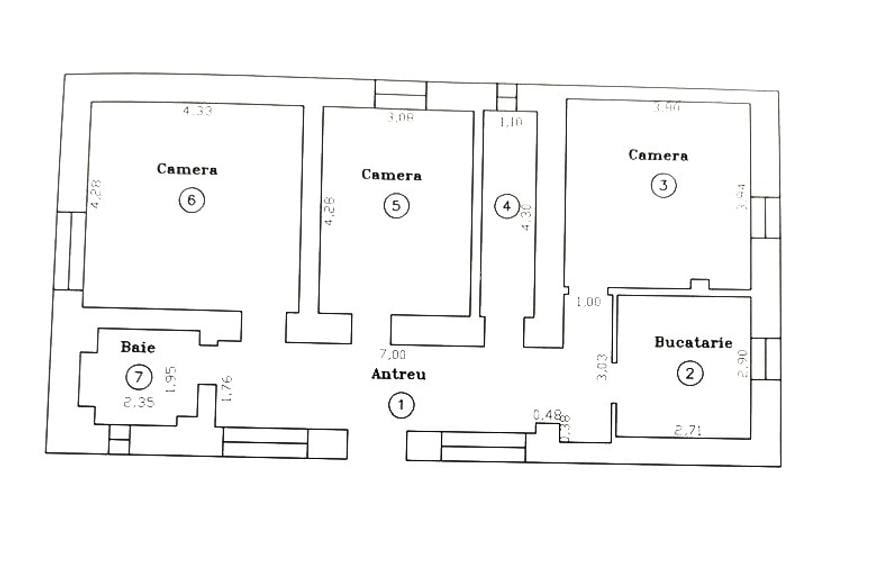
Casa individuala,foarte solida,renovata impecabil,situata in zona Freidorf,str.Romanitei. Compartimentare: -hol acces/trenzit -baie -camera de zi -dormitor -camera depozitare -dormitor -bucatarie -in curte se afla o anexa pentru depozitare -pod Casa este construita din caramida arsa,izolata termic pe exterior si placata cu gips carton pe interior,zidurile exterioare au cca 60 cm,iar cele interioare vcca 40 cm A fost renovata recent,schimbandu-se toate instalatiile de curent,apa,canalizare. Casa dispune de toate utilitatile : gaz,curent,apa si canalizare. In spatele casei o oaza de liniste,pomi fructiferi,loc de joaca pentru copii,foisor,un loc ideal de petrecerea timpului cu familia.
Citește mai mult Citește mai puțin
Aer condiționat Calorifere Centrală proprie Renovat Bine întreținut (Bună)

Detalii casă

ID anunț: X3TR01005 Copiat! 259039826 Copiat!
Actualizat în: 07 Mai 2026
Tip tranzacție: De vânzare prin agent
Suprafață construită: 113 mp
Suprafață desfășurată: 113 mp
Nr. bucătării: 1
Nr. băi: 1
Front stradal: 10 m
Învelitoare acoperiș: Țiglă
An construcție: 1940
Structură rezistență: Cărămidă
Regim înălțime: P
Modalitate de plată: Cash sau Credit

Utilități

Destinație
Rezidențial
Pereți
Faianță Vopsea lavabilă
Rulouri/Obloane
PVC
Ușă intrare
PVC
Uși interior
Lemn
Izolații termice
Exterior
Ferestre cu geam termopan
PVC
Bucătărie
Mobilată
Diverse
Senzor de fum
Alte spații utile
Spațiu depozitare Anexe
Utilități
Curent Apă Canalizare CATV Telefon Telefon internațional
Internet
Cablu
Amenajare străzi
Asfaltate Iluminat stradal
Comision
1 %

Certificat energetic:

Clasa energetică: C

Puncte de interes

Mijloace transport
bus-station
Statie Rascoala 1907 E7 si M36
Stații autobuz aprox. 234 m
bus-station
Statie Polona E7 si M36
Stații autobuz aprox. 383 m
bus-station
Timisoara Vest
Stații autobuz aprox. 437 m
train-station
Gara Timișoara Vest
Stații tren aprox. 443 m
Școală
kindergarten
Gradinita Program Prelungit Nr. 7
Gradinițe aprox. 488 m
school
Scoala Generala nr. 29
Școli aprox. 512 m
school
Școala generală nr.29
Școli aprox. 527 m
school
LICEU TEHNOLOGIC INDUSTRIAL TRANSPORTURI AUTO
Școli aprox. 1004 m
Recreere
restaurant
Cantina Restaurant Bavaria (en)
Restaurant aprox. 948 m
park
Parc
Parcuri aprox. 1051 m
park
Piata Petofi Sandor
Parcuri aprox. 1101 m
park
Parcul Petofi Sandor
Parcuri aprox. 1106 m

Detalii despre preț și costuri

Costuri cu achiziția

Fără credit
Credit ipotecar
Noua casă

i

Costuri adiționale mai puțin știute la achiziție: taxe notariale, comisioane etc.

Acces la informații premium după autentificare
Login Gratuit

Proprietăți similare

Casă individuală cu 4 camere în Kuncz
199.990 €
Timișoara, Kuncz
4 camere
120 mp
100 mp teren
Casă individuală cu 3 camere în Freidorf
202.000 €
Timișoara, Freidorf
3 camere
124 mp
453 mp teren
Casă individuală cu 4 camere în Freidorf
195.000 €
Timișoara, Freidorf
4 camere
100 mp
160 mp teren

Detalii de contact

The House

Sorin Traian Bratu Consultant Imobiliar

The House
PRO

Abonează-te la newsletter să fii primul care primește cele mai noi recomandări de proprietăți și sfaturi de la experți.

Feedback apel

CONTACT

Creează alertă

Salvează căutarea ca să primești pe email ultimele anunțuri publicate

Case individuale cu 3 camere de vânzare în zona Freidorf, Timișoara