13

Casă individuală D+P, Timișoara, zona Girocului, comision 0%

179.000 €

Girocului, Timișoara

Nr. cam.:
5
Sup. utilă:
111 mp
Sup. teren:
150 mp
Tip prop.:
Individuală
  • • Comision 0%
  • • Locație exactă

Descriere casă

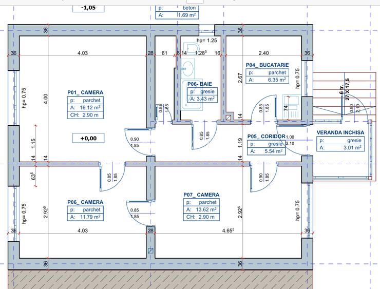
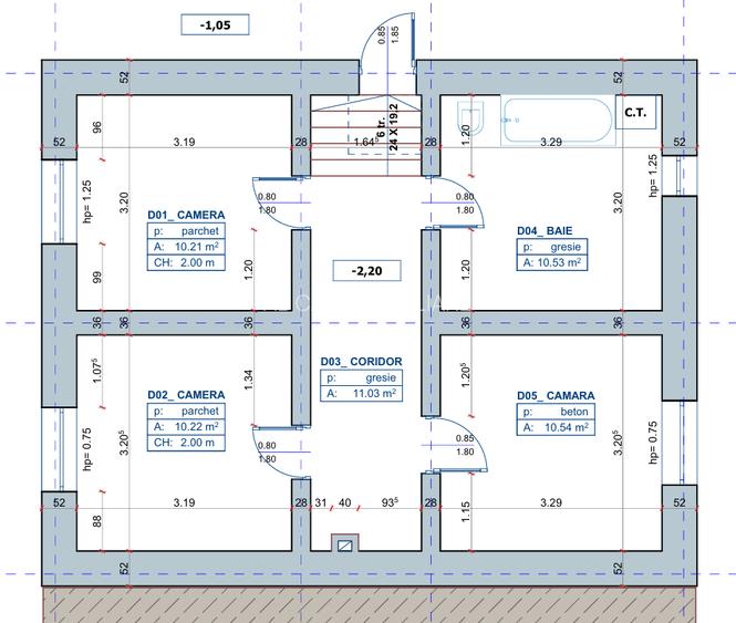
Agenția Imobiliară AB CASA vă propune spre vânzare, FĂRĂ COMISION, o casă individuală D+P, cu 5 camere, 2 băi, situată în zona Girocului. Casa, cu o suprafață utilă de aproximativ 111 mp și un garaj inclus, în suprafață de 13 mp, a fost construită în anul 1975, pe un teren cu suprafața de 150 mp, pentru familia care a locuit acolo. Fără garaj, construcția, din cărămidă, are o amprentă la sol de aproximativ 80 mp. La nevoie, casa poate fi mansardată. La demisol, cu suprafața utilă de 52 mp, se află 2 camere, hol, cămară și baie. Parterul înalt are o suprafață utilă de 59 mp și este împărțit între holul de intrare, 3 camere, bucătărie închisă, baie și zona de acces la pod. Întreaga clădire se vinde mobilată și utilată, așa cum se vede în imaginile de prezentare. Imobilul dispune de un sistem de încălzire prin calorifere, conectat la centrala termică marca Ariston, nouă, aflată în garanție. Fundația casei este din beton, iar demisolul are o hidroizolație de calitate, astfel încât, întregul imobil, este lipsit de igrasie. Garajul nu dispune de încălzire, iar în curte mai pot fi parcate 1-2 autoturisme. Curtea este parțial betonată, dar și amenajată cu pomi fructiferi și viță de vie. Proprietatea este împrejmuită complet. Locuința este branșată la curent, gaz, apă și canalizare. Obiective în apropiere: supermarket-uri, magazine, clinici, Spitalul Județean, parcuri, școli, grădinițe etc. Preț 179.000 euro, ușor negociabil Telefon:
Citește mai mult Citește mai puțin
Mobilat Parțial mobilat Curte Calorifere Centrală proprie 2 Parcări 1 Garaj Bine întreținut (Bună) Necesită renovare

Detalii casă

ID anunț: XFA10100H Copiat! 258155651 Copiat!
Actualizat în: 16 Iunie 2025
Tip tranzacție: De vânzare prin agent
Nr. bucătării: 1
Nr. băi: 2
Învelitoare acoperiș: Țiglă
An construcție: 1975 (Finalizată)
Structură rezistență: Cărămidă
Regim înălțime: D+P
Modalitate de plată: Cash sau Credit

Utilități

Destinație
Rezidențial
Pereți
Faianță Vopsea lavabilă
Podele
Gresie
Ușă intrare
Lemn
Uși interior
Lemn
Contorizare
Apometre Contor gaz
Bucătărie
Mobilată Utilată
Alte spații utile
Spațiu depozitare Anexe Dependințe
Facilități imobil
Acoperiș
Utilități
Curent Apă Canalizare Telefon
Internet
Cablu
Amenajare străzi
Pietruite Mijloace de transport în comun Iluminat stradal

Vecinătăți:

Supermarket-uri, magazine, clinici, Spitalul Județean, parcuri, școli, grădinițe etc.

Puncte de interes

Mijloace transport
tram-station
Statie Lidia Tv7
Stații tramvai aprox. 134 m
tram-station
Drubeta
Stații tramvai aprox. 334 m
trolleybus-station
Statie Maresal C-tin Prezan T15, T19
Stații troleibuz aprox. 682 m
bus-station
Statie Martir Ioan Stanciu T15, T19, E3
Stații autobuz aprox. 699 m
Școală
school
Sediul ligii islamice si culturale din timisoara
Școli aprox. 251 m
school
Scoala Generala nr. 25
Școli aprox. 307 m
kindergarten
Gradinita Barbie
Gradinițe aprox. 420 m
university
Institutul de Cercetari pentru Energii Regenerabile
Universități aprox. 980 m
Recreere
park
Parc
Parcuri aprox. 239 m
public-square
Piata Aron Cotrus
Piețe publice aprox. 251 m
sports-ground
Teren sportiv
Terenuri sport aprox. 314 m
supermarket
Profi
Supermarket aprox. 423 m

Istoricul prețurilor

Acces la informații premium după autentificare
Login Gratuit

Detalii despre preț și costuri

Costuri cu achiziția

Fără credit
Credit ipotecar
Noua casă

i

Costuri adiționale mai puțin știute la achiziție: taxe notariale, comisioane etc.

Acces la informații premium după autentificare
Login Gratuit

Proprietăți similare

Casă individuală cu 5 camere în Calea Urseni
185.000 €
Timișoara, Calea Urseni
5 camere
119 mp
315 mp teren
Casă individuală cu 5 camere în Girocului
175.000 €
Timișoara, Girocului
5 camere
119 mp
486 mp teren
Casă individuală cu 4 camere în Exterior Vest
165.000 €
Timișoara, Exterior Vest
4 camere
115 mp
450 mp teren

Detalii de contact

AB CASA IMOBILIARE

Alin Balaj

4.67(5 review-uri)

AB CASA IMOBILIARE
PRO

Abonează-te la newsletter să fii primul care primește cele mai noi recomandări de proprietăți și sfaturi de la experți.

Feedback apel

CONTACT

Creează alertă

Salvează căutarea ca să primești pe email ultimele anunțuri publicate

Case individuale cu 4+ camere de vânzare în zona Girocului, Timișoara