13

Vila individuala renovata complet | 6 camere | 500 mp teren | Str Jean Monnet

345.000 €

Girocului, Timișoara

Nr. cam.:
6
Sup. utilă:
147 mp
Sup. teren:
500 mp
Tip prop.:
Individuală
  • • Exclusivitate
  • • Locație exactă

Descriere casă

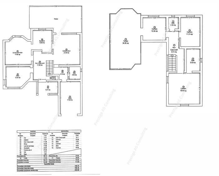
Va prezentam o proprietate cu adevarat versatila, ideala atat pentru o familie care cauta confort, intimitate si spatiu, cat si pentru investitori interesati de conversia intr-o clinica, sediu de firma sau activitate premium, situata pe strada privata Jean Monnet din Calea Girocului. Vila este dispusa pe Part + Etaj +Pod si Garaj cu acces direct din casa, cu o arhitectura echilibrata, clasica, specifica zonelor rezidentiale mature. Renovata integral (interior + exterior, instalatii electrice si sanitare schimbate), cu o suprafata utila de 147 mp si teren de 500 mp, oferind intimitate si acces facil. Interiorul este bine compartimentat, gandit pentru flux eficient si utilizare multipla: Hol Acces, Birou / camera multifunctionala, Dining, Bucatarie, Living cu iesire pe terasa, Baie si iesirea la Garaj, 3 dormitoare la etaj (dormitor matrimonial cu baie proprie), Baie, Terasa generoasa 34 mp. Constructia solida (placa de beton intre etaje si pod), impreuna cu dotarile moderne – geamuri tripan, centrala proprie, aer conditionat, foraj la 110m si poarta electrica – transforma aceasta proprietate intr-o investitie sigura pe termen lung. Pretabila pentru: clinica medicala/stomatologica, cabinete, birouri sau inchiriere premium. Zona excelenta: 2 min Kaufland si Lidl si Farmacie, 2 min Parc, 5 min Spitalul Judetean, 6 min Shopping City, 10 min Centru, scoli si gradinite – in proximitate. Pentru detalii suplimentare sau programarea unei vizionari, va stam la dispozitie.
Citește mai mult Citește mai puțin
Mobilat Grădină Curte Aer condiționat Calorifere Centrală proprie 4 Parcări 1 Garaj Renovat

Detalii casă

ID anunț: XEDH1103E Copiat! 275329327 Copiat!
Actualizat în: 22 Aprilie 2026
Suprafață construită: 100 mp
Suprafață desfășurată: 249 mp
Nr. bucătării: 1
Nr. băi: 3
Nr. terase: 2
Front stradal: 23.0 m
Învelitoare acoperiș: Țiglă
An construcție: 2002 (Finalizată)
Structură rezistență: Cărămidă
Regim înălțime: P+2E

Utilități

Pereți
Faianță Vopsea lavabilă
Podele
Gresie Parchet
Ușă intrare
PVC
Izolații termice
Exterior
Ferestre cu geam termopan
PVC
Bucătărie
Mobilată Utilată
Electrocasnice
Aragaz Frigider Hotă Mașină de spălat TV
Diverse
Scară interioară Telecomandă poartă acces auto
Alte spații utile
WC Serviciu
Facilități imobil
Acoperiș Spații agrement
Utilități
Curent Apă Canalizare CATV Gaze Telefon
Internet
Cablu
Amenajare străzi
Iluminat stradal Mijloace de transport în comun Asfaltate
Comision
standard

Puncte de interes

Mijloace transport
bus-station
Mures
Stații autobuz aprox. 204 m
bus-station
Statie Muzicescu E3
Stații autobuz aprox. 260 m
trolleybus-station
Statie Maresal C-tin Prezan T15, T19
Stații troleibuz aprox. 564 m
tram-station
Statie Mures Tv7
Stații tramvai aprox. 642 m
Școală
university
Institutul de Cercetari pentru Energii Regenerabile
Universități aprox. 326 m
kindergarten
Gradinita Goghita
Gradinițe aprox. 619 m
school
Scoala Generala nr. 25
Școli aprox. 702 m
university
CENTRU REGIONALDE PREGATIRE PROFESIONALA PENTRU MAGISTRATI, GIROC, tIMISOARA
Universități aprox. 1178 m
Recreere
supermarket
Lidl
Supermarket aprox. 180 m
park
Parcul de Sculptura, Fundatia Interart Triade
Parcuri aprox. 267 m
sports-ground
Teren sportiv
Terenuri sport aprox. 668 m
public-square
Piata Aron Cotrus
Piețe publice aprox. 777 m

Detalii despre preț și costuri

Costuri cu achiziția

Fără credit
Credit ipotecar
Noua casă

i

Costuri adiționale mai puțin știute la achiziție: taxe notariale, comisioane etc.

Insight premium disponibil după login

Proprietăți similare

Casă individuală cu 12 camere în Girocului
350.000 €
Timișoara, Girocului
12 camere
380 mp
642 mp teren
Casă individuală cu 6 camere în Girocului
364.990 €
Timișoara, Girocului
6 camere
269 mp
635 mp teren
Casă individuală cu 5 camere în Ciarda Roșie
332.990 €
Timișoara, Ciarda Roșie
5 camere
225 mp
720 mp teren

Detalii de contact

Prestige AS Consulting

Alexandra Spinu Consultant Imobiliar

Prestige AS Consulting
PRO

Abonează-te la newsletter să fii primul care primește cele mai noi recomandări de proprietăți și sfaturi de la experți.

Feedback apel

CONTACT

Creează alertă

Salvează căutarea ca să primești pe email ultimele anunțuri publicate

Case individuale cu 4+ camere de vânzare în zona Girocului, Timișoara