11

Proprietate premium,finisaje moderne,zona Ronat-Mehala

369.000 €

Ronaț, Timișoara

Nr. cam.:
5
Sup. utilă:
150 mp
Sup. teren:
380 mp
Tip prop.:
Individuală
  • • Locație aproximativă

Descriere casă

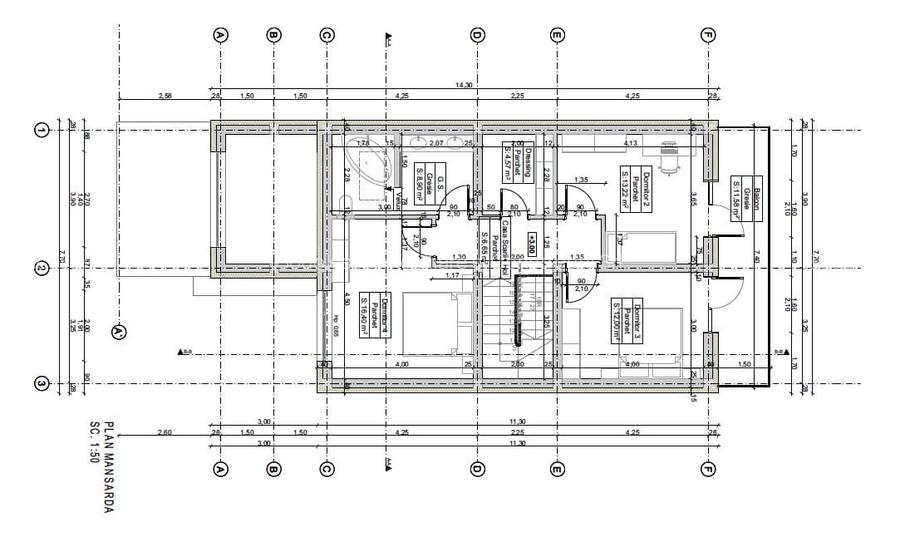
De vânzare casa nouă P+M, construită cu atenție la detalii și materiale de calitate.Proprietatea dispune de o suprafață utilă generoasă ideală pentru o familie care își dorește liniște și confort.Compartimentarea este inteligent gândită pentru confortul zilnic al unei familii moderne -parter-hol acces generos, camera care poate fi folosită ca dormitor sau ca birou, living generos cu ieșire pe terasă, bucătărie închisă cu ieșire pe terasă, baie cu cabină duș și geam și spațiu tehnic. -mansarda- hol acces, patru dormitoare, baie și pod. Proprietatea este complet nouă, gata pentru mutare imediată. Terenul este perfect pentru amenajarea unei zone de relaxare.
Citește mai mult Citește mai puțin
Grădină Curte Centrală proprie Încălzire prin pardoseală 3 Parcări

Detalii casă

ID anunț: X47N111KQ Copiat! 274755030 Copiat!
Actualizat în: 21 Mai 2026
Tip tranzacție: De vânzare prin agent
Suprafață desfășurată: 190 mp
Nr. bucătării: 1
Nr. băi: 2
Nr. terase: 1
Suprafață terase: 20 mp
Învelitoare acoperiș: Țiglă
An construcție: 2025 (Finalizată)
Structură rezistență: Cărămidă
Regim înălțime: P+M
Modalitate de plată: Cash sau Credit

Utilități

Pereți
Faianță Vopsea lavabilă
Podele
Gresie Parchet
Ușă intrare
PVC
Uși interior
Celulare
Izolații termice
Exterior
Ferestre cu geam termopan
PVC
Contorizare
Apometre Contor gaz
Diverse
Scară interioară Sistem de alarmă Telecomandă poartă acces auto
Alte spații utile
WC Serviciu
Facilități imobil
Acoperiș
Utilități
Curent Apă Canalizare CATV Gaze Telefon
Internet
Cablu
Servicii imobil
Supraveghere video
Amenajare străzi
Iluminat stradal Mijloace de transport în comun Asfaltate
Comision
standard

Disponibilitate proprietate:

Imediat

Puncte de interes

Mijloace transport
bus-station
Statie Vuk Karadjic A13
Stații autobuz aprox. 261 m
tram-station
Alexandru Lapusneanu
Stații tramvai aprox. 551 m
train-station
Timisoara North railway station area (en)
Stații tren aprox. 1504 m
trolleybus-station
Statie Pop de Basesti T11, T14, T18
Stații troleibuz aprox. 1556 m
Școală
kindergarten
Gradinita Cu Program Prelungit Nr. 9 Carla Pelz Mehala
Gradinițe aprox. 435 m
school
SCOALA GIMNAZIALĂ NR.19 "AVRAM IANCU"
Școli aprox. 454 m
kindergarten
Gradinita Ioana
Gradinițe aprox. 540 m
university
Universitatea de Vest, Facultatea de teologie ortodoxa
Universități aprox. 715 m
Recreere
restaurant
Pensiunea Zefir
Restaurant aprox. 157 m
park
Parc
Parcuri aprox. 477 m
supermarket
Profi
Supermarket aprox. 532 m
sports-ground
Teren sintetic pentru fotbal
Terenuri sport aprox. 608 m

Istoricul prețurilor

Acces la informații premium după autentificare
Login Gratuit

Detalii despre preț și costuri

Costuri cu achiziția

Fără credit
Credit ipotecar
Noua casă

i

Costuri adiționale mai puțin știute la achiziție: taxe notariale, comisioane etc.

Acces la informații premium după autentificare
Login Gratuit

Proprietăți similare

Casă individuală cu 5 camere în Lunei
400.000 €
Timișoara, Lunei
5 camere
194 mp
570 mp teren
Casă individuală cu 4 camere în Braytim
335.000 €
Timișoara, Braytim
4 camere
140 mp
337 mp teren
Casă individuală cu 5 camere în Mehala
349.000 €
Timișoara, Mehala
5 camere
115 mp
699 mp teren

Detalii de contact

Sodolescu Imobiliare si Constructii Srl

Daniela LASC Consultant Imobiliar

Sodolescu Imobiliare si Constructii Srl
PRO

Abonează-te la newsletter să fii primul care primește cele mai noi recomandări de proprietăți și sfaturi de la experți.

Feedback apel

CONTACT

Creează alertă

Salvează căutarea ca să primești pe email ultimele anunțuri publicate

Case individuale cu 4+ camere de vânzare în zona Ronaț, Timișoara