Va oferim pentru achizitie fara comision o casa de 81mp intr-un grup de case inshiruite P+1, in complexul Amber Forest din Tunari. Amber Forest este un concept premium, o comunitate la standarde inalte, aproape de padure si care va oferta toate utilitatile necesare vietii zilnice: scoala, gradinita, magazine, etc.
Pret Negociabil
Asa cum v-am obisnuit:
- toate ofertele Monga Imobiliare sunt fara comision din partea cumparatorului
- pentru ca iubim transparenta, toate preturile afisate de Monga Imobiliare includ TVA (daca se aplica). Pretul afisat de noi este intotdeauna pretul final pe care il vei achita.
Acceseaza Monga Imobiliare (Monga RO) pentru mai mai multe poze si pentru intreg portofoliul nostru de case si apartamente din Otopeni, Tunari, Balotesti, Corbeanca, Pipera si chiar nordul Bucurestiului.
Punctele forte ale acestei case il reprezinta complexul premium Amber Forest si locatia acestuia ce permite acces rapid catre Tunari - Pipera, soseaua de Centura, dar si Otopeni, DN1 si tot nordul Bucurestiului.
Amber Forest ofera finisaje high-end, si este situat in zona de Nord a Capitalei, intr-un complex rezidential exclusivist de 700 de case si apartamente verzi, premiat international, situat cu acces direct la Padurea Baneasa,
Ansamblul beneficiaza de o infrastructura completa, de inalta calitate si de o zona dedicata familiei – scoala, gradinita si afterschool, parcuri de 5.3 hectare si zone verzi pentru recreere, terenuri de sport, spa si sali de fitness, supermarket, piata si brutarie, restaurante si cafenele, policlinica, farmacie, hub cu birouri.
Despre spatiu:
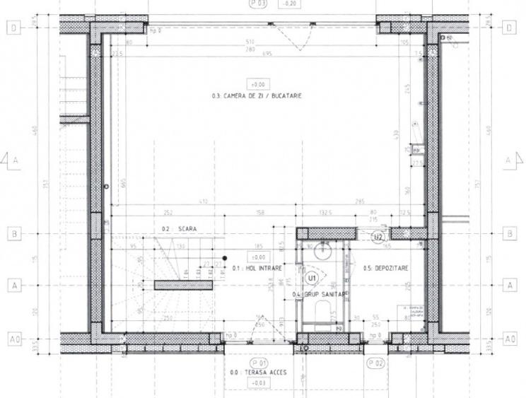
Parter: acesul se face printr-un hol cu loc pentru spatii de haine ce comunica un grup sanitar, scara catre etaj si zona de living cu bucatarie deschisa. De aici se accceseaza terasa dar si spatiul tehnic cu rol si de depozitare.
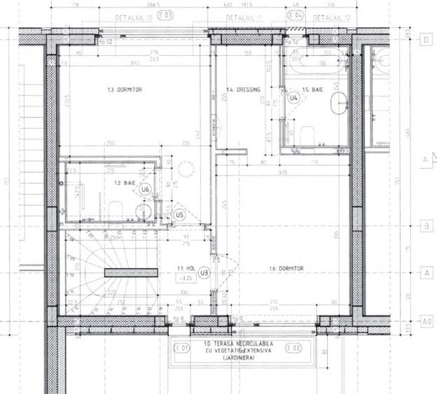
La etaj avem un dormitor matrimonial cu dressing si baie proprie si inca un dormitor cu baie proprie.
Casa detine 2 locuri de parcare.
Despre constructie:
- Conectata la toate utilitatile
- Pompa de caldura cu incalzire prin pardoseala
- constructie foarte eficienta pentru costuri minime de intretinere
Amber Forest este un complex premium ce include loc de joaca, paza, parc, facilitati sportive, zona comerciala, cafenele, scoala (unele dintre ele in curs de constructie). Complexul este gandit ca un spatiu pentru familii care ofera toate cele necesare pentru viata de zi cu zi.
Apeleaza cu incredere la Monga Imobiliare. Suntem alaturi de tine pana la finalizarea tranzactiei si te ajutam sa treci cu incredere si in cunostinta de cauza prin toti pasii necesari. Te putem ajuta in pregatirea documentelor, selectia notarului, obtinerea finantarii, si altele. Te asteptam sa ne contactezi.
Sediul central - Timișoara
Bulevardul Victor Babeș nr. 2, 300230, Timișoara, România
Tel: +40.374.40.44.98 / Fax: +40.256.401.179
Email: suport@imobiliare.ro
Luni - Vineri 08:00 - 20:00
Punct de lucru - București: Iride Business Park, Bld. Dimitrie
Pompeiu 9-9A, Clădirea B2B,
020335, Sector 2, București, România
CONTACT
Sediul central - Timișoara
Bulevardul Victor Babeș nr. 2, 300230, Timișoara, România
Tel: +40.374.40.44.98 / Fax: +40.256.401.179
Email: suport@imobiliare.ro
Luni - Vineri 08:00 - 20:00
Punct de lucru - București: Iride Business Park, Bld. Dimitrie
Pompeiu 9-9A, Clădirea B2B,
020335, Sector 2, București, România
Sună acum și cere detalii sau programează o vizionare.
Cere detalii prin email
*
*
*
*
Școli
Parcări
Parcuri
Restaurant
Scoala Nr. 1 Tunari
aprox.
1392 m
Parcare
aprox.
1922 m
Pădurea Tunari
aprox.
1606 m
Pensiunea "La Zdrobitu' "
aprox.
1095 m
Înainte să pleci...
Ești sigur că ai văzut și aceste proprietăți?
345.000 €
Județul Ilfov, Tunari
4 camere
108 mp
175 mp teren
485.000 € + TVA
Județul Ilfov, Tunari
4 camere
118,1 mp
446 mp teren
385.000 €
Județul Ilfov, Tunari
3 camere
100 mp
170 mp teren
499.000 €
Județul Ilfov, Tunari
4 camere
117 mp
323 mp teren
350.000 €
Județul Ilfov, Tunari
5 camere
200 mp
270 mp teren
235.000 €
Județul Ilfov, Tunari
3 camere
130 mp
249 mp teren
Creează alertă
Salvează căutarea ca să primești pe email ultimele anunțuri publicate
Case individuale cu 3 camere de vânzare în Tunari, Județul Ilfov
Cere detalii prin email
*
*
*
*
Detaliile tale de contact vor fi partajate cu Monga
Preț total1.618.417 RON (317.691 €)
Costuri cu achiziția13.713 RON
Preț de achiziție1.604.704 RON
Costuri cu achiziția13.713 RON
Comision agenție Întreabă agenţia
Onorariu notarial11.306 RON
Taxă înscriere OCPI2.407 RON
Preț de achiziție1.604.704 RON
Preț locuință1.604.704 RON
TVA 0%Inclus în prețul cerut
Cost total260.255 RON (51.087 €)
Avans (15%)240.706 RON
Cost achitat în prima lună3.387 RON
Costuri cu achiziția16.162 RON
Cost achitat în prima lună3.387 RON
Comision analiză dosar
400 RON - 900 RON
Taxă evaluare imobil(până la)
900 RON
Rata lunară (variabilă)7.148 RON
Asigurare anuală imobil1.605 RON
Arhivă electronică102 RON
Poliță PAD130 RON
Asigurare de viață/lună Costul este variabil. În funcție de banca aleasă, procentul variază între 0.0259% și 0.035% din soldul creditului.
Costuri cu achiziția16.162 RON
Comision agenție Întreabă agenţia
Onorariu notarial11.306 RON
Taxă întabulare OCPI2.407 RON
Autentificare contract credit2.449 RON
Preț de achiziție1.604.704 RON
Preț locuință1.604.704 RON
TVA 0%Inclus în prețul cerut
Preț de achiziție1.604.704 RON
Preț locuință1.604.704 RON
TVA 0%
Inclus în prețul cerut
Avans minim998.483 RON
Credit pe 30 de ani606.222 RON
Cost achitat în prima lună
Taxa evaluare imobil(până la)
900 RON
Rata lunară (variabilă)4.260 RON
Depozit colateral12.780 RON
Comision de garantare FNGCIMM134 RON
Asigurare anuală imobil1.605 RON
Poliță PAD130 RON
Tarif arhivă electronică102 RON
Costuri adiționale1.745 RON + taxe notariale
Asigurare viață și complexă (opțională)Costul este variabil. În funcție de banca aleasă, procentul variază între 0.0259% și 0.035% din soldul creditului
Onorariu notarialconform tarif notarial
Taxă întabulare OCPI1.745 RON
i
Toate valorile de mai sus sunt estimative și nu reprezintă în mod obligatoriu costurile exacte pe care le veți primi de la companiile/instituțiile prin care veți încheia tranzacția.