3

Vila deosebită cu 4 camere în Tunari – Refugiu urban de lux, personalizabil după

260.000 €

Tunari, Județul Ilfov

Nr. cam.:
4
Sup. utilă:
140 mp
Sup. teren:
300 mp
Tip prop.:
Individuală
  • • Locație aproximativă
  • • Vizionare prin apel video

Descriere casă

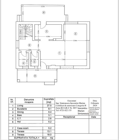
Această vilă deosebită din zona Tunari reprezintă un adevărat refugiu urban, perfect pentru cei care doresc să trăiască într-un cadru liniștit, dar totodată aproape de agitația orașului. Imobilul îmbină designul contemporan cu funcționalitatea, oferind un stil de viață rafinat și confortabil. Construită pe un teren de 300 mp, vila beneficiază de o curte liberă de 200 mp, unde poți crea un spațiu de relaxare sau o zonă de joacă pentru copii. Arhitectura sa modernă, cu o fațadă spectaculoasă și linii minimaliste, adaugă un plus de eleganță întregii proprietăți. Feroneria de înaltă calitate și feroneriile premium completează imaginea unei case durabile și sigure. La interior, vila este gândită pentru a oferi un confort desăvârșit. La parter, te întâmpină un living generos, perfect pentru momente de relaxare sau socializare, alături de o bucătărie modernă, deschisă, și o zonă de dining ce îmbină stilul cu funcționalitatea. Baia de serviciu și camera tehnică asigură eficiența maximă a întregii proprietăți, în timp ce cele două terase mari sunt ideale pentru a te bucura de aerul proaspăt sau pentru a petrece seri liniștite la apus. La etaj, dormitorul matrimonial devine un sanctuar de relaxare, cu dressing și baie proprie, iar cele două dormitoare spațioase oferă intimitate și confort. Baia separată, cu dotări premium, completează perfect această zonă destinată odihnei. Vila este disponibilă atât la gri, pentru cei care doresc să o personalizeze complet, la prețul de 220.000 €, cât și la cheie, cu finisaje de lux, exact ca în proiect, la prețul de 255.000 €. Fiecare variantă oferă o oportunitate unică de a deveni proprietar al unei locuințe moderne, elegante și perfect adaptate nevoilor tale. Indiferent de opțiunea aleasă, această vilă din Tunari reprezintă un loc ideal pentru a construi un cămin confortabil, plin de stil și armonie.
Citește mai mult Citește mai puțin
Nemobilat Grădină Curte Aer condiționat Aeroterme Centrală proprie Încălzire prin pardoseală 1 Parcare

Detalii casă

ID anunț: XCC0117C4 Copiat! 274749595 Copiat!
Actualizat în: 05 Februarie 2026
Suprafață desfășurată: 220 mp
Nr. băi: 3
Nr. terase: 3
Suprafață terase: 35.5 mp
An construcție: 2025 (Finalizată)
Structură rezistență: Cărămidă
Regim înălțime: P+1E

Utilități

Pereți
Faianță Vopsea lavabilă
Podele
Gresie Parchet
Ușă intrare
Metal
Uși interior
Lemn
Izolații termice
Exterior Interior
Ferestre cu geam termopan
Aluminiu
Contorizare
Apometre Contor căldură Contor gaz
Electrocasnice
Aragaz Hotă TV
Diverse
Scară interioară Sistem de alarmă Telecomandă poartă acces auto Telecomandă poartă garaj
Alte spații utile
Dressing
Facilități imobil
Interfon
Utilități
Curent Apă Canalizare CATV Gaze Telefon
Internet
Cablu
Servicii imobil
Pază
Amenajare străzi
Iluminat stradal Mijloace de transport în comun Asfaltate

Vecinătăți:

Edenholdz

Disponibilitate proprietate:

Imediat

Puncte de interes

Școală
school
Scoala Nr. 1 Tunari
Școli aprox. 803 m
university
School American Bucharest-Voluntari
Universități aprox. 1503 m
school
American International School of Bucharest (en)
Școli aprox. 1568 m
school
Scoala Americana
Școli aprox. 1569 m
Recreere
sports-ground
Teren sportiv
Terenuri sport aprox. 1310 m
park
Parc
Parcuri aprox. 1314 m
restaurant
Pensiunea "La Zdrobitu' "
Restaurant aprox. 1470 m
sports-ground
Teren sportiv
Terenuri sport aprox. 1655 m

Detalii despre preț și costuri

Costuri cu achiziția

Fără credit
11.828 RON
Credit ipotecar
14.044 RON
Noua casă
1.465 RON+ taxe notariale

i

Costuri adiționale mai puțin știute la achiziție: taxe notariale, comisioane etc.

Proprietăți recomandate

Detalii de contact

Abonează-te la newsletter să fii primul care primește cele mai noi recomandări de proprietăți și sfaturi de la experți.

CONTACT

Creează alertă

Salvează căutarea ca să primești pe email ultimele anunțuri publicate

Case individuale cu 4+ camere de vânzare în Tunari, Județul Ilfov