Vilă Pipera- Tunari LUX | 7 camere | 300 mpu | 400 teren

355.000 € + TVA

Tunari, Județul Ilfov

Nr. cam.:
7
Sup. utilă:
300 mp
Sup. teren:
400 mp
Tip prop.:
Casă individuală
  • • Comision 0%
  • • Locație aproximativă

Descriere casă

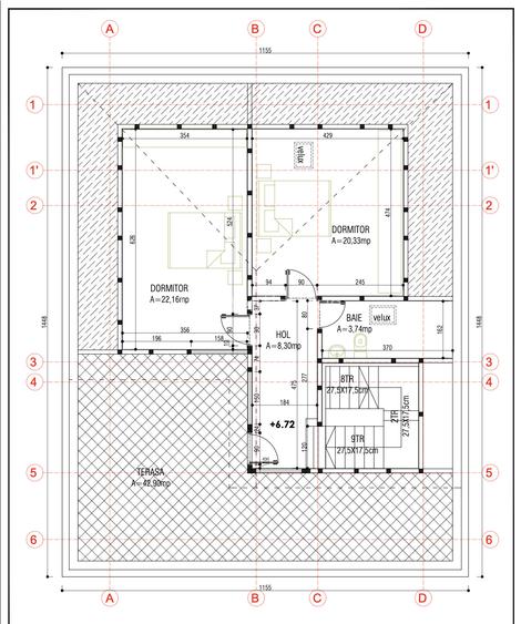
Un proiect premium de 6 case cu circuit inchis dedicat celor care caută spațiu real. În doar câteva minute ajungi în Băneasa sau Pipera, dar acasă te bucuri de un cadru aerisit și intim. Inaltime camere 3,20 m | 7 camere | 5 băi + 300 mp utili + Bacon 10 mp + terasa 45mp la et 2 + Curte proprie 400 mp + 2 Parcari Spațiile sunt gândite pentru confortul unei familii: Pompă de căldură sau centrală pe gaz (la alegere - pt pompa + Ventiloconvectoare pretul este + 30.000 Euro) Finisaje premium Construcție solidă, atent executată Localizare: Zonă liniștită, Tunari - Pipera Aproape de zone de business, shopping și puncte de interes O locuință potrivită pentru cei care vor mai mult decât o casă — vor spațiu, confort și poziționare bună. În imediata apropiere a ansamblului rezidențial regăsiți cele mai importante puncte de interes pentruviața de zi cu zi: școli și grădinițe precum Școala Americană, Olga Guddyn și British School of Bucharest, dar și supermarket-uri precum Lidl și Mega Image, săli de sport World Class și Băneasa Mall, unul dintre cele mai mari centre comerciale din București. Pret 355.000 + TVA Achiziție direct dezvoltator – 0% comision. Vizionarea acestui imobil se face doar in baza semnării unui acord de vizionare conform codului civil, art 2.096-2.102 Vecinatati Pipera Residence, Oxford Gardens, American Village, Domus Stil - Cosmopolis, Iris Villas, Erou Iancu Nicolae Compound, Pipera Lake, The Lakeview, Voluntari Residence, Greenville, The Heights, La Gloire Pipera, Diverse proiecte One United Properties, Diverse proiecte Forte Partners, Diverse proiecte Immofinanz, Stejarii, Novum, Central Park, Lakeview Residence, Park Lake, The Residences, Greenfield, City Park, Forest Lake, Riverview, Sun City, Green Valley, The Gardens, The Hills, The Woods, The Park, Darwin Residence, Rose Residence, CATTED Family, Siena Residence, EcoVillas Otopeni, New Mogoșoaia Residence II, Nusco.
Citește mai mult Citește mai puțin
Acceptă animale de companie Aer condiționat Ventiloconvectoare Alte metode electrice Centrală proprie Încălzire prin pardoseală 2 Parcări Bine întreținut (Bună)

Detalii casă

ID anunț: XDK81101G Copiat! 275388615 Copiat!
Actualizat în: 01 Aprilie 2026
Suprafață construită: 350 mp
Nr. bucătării: 1
Nr. băi: 5
Nr. balcoane / Terase / Logii: 1
Nr. terase: 1
Suprafață terase: 1 mp
An construcție: 2025 (Finalizată)
Structură rezistență: Beton
Regim înălțime: P+2E

Utilități

Podele
Gresie Marmură
Ușă intrare
Metal
Uși interior
Celulare
Izolații termice
Exterior Interior
Bucătărie
Mobilată
Facilități imobil
Interfon
Utilități
Curent Apă Canalizare Gaze Curent trifazic
Comision
0%

Certificat energetic:

Clasa energetică: A

Puncte de interes

Școală
university
School American Bucharest-Voluntari
Universități aprox. 1119 m
school
American International School of Bucharest (en)
Școli aprox. 1184 m
school
Scoala Americana
Școli aprox. 1185 m
school
Scoala Nr. 1 Tunari
Școli aprox. 1189 m
Recreere
sports-ground
Teren sportiv
Terenuri sport aprox. 915 m
park
Parc
Parcuri aprox. 918 m
restaurant
Pensiunea "La Zdrobitu' "
Restaurant aprox. 1816 m
supermarket
Mega Image Pipera Liziera
Supermarket aprox. 1884 m

Detalii despre preț și costuri

Costuri cu achiziția

Fără credit
17.656 RON
Credit ipotecar
20.593 RON
Noua casă
2.330 RON+ taxe notariale

i

Costuri adiționale mai puțin știute la achiziție: taxe notariale, comisioane etc.

Proprietăți similare

Casă individuală cu 6 camere în Tunari
329.900 € + TVA
Județul Ilfov, Tunari
6 camere
265 mp
350 mp teren
Casă individuală cu 4 camere în Tunari
325.000 €
Județul Ilfov, Tunari
4 camere
130 mp
400 mp teren
Casă individuală cu 5 camere în Tunari
320.000 €
Județul Ilfov, Tunari
5 camere
153,5 mp
350 mp teren

Detalii de contact

Abonează-te la newsletter să fii primul care primește cele mai noi recomandări de proprietăți și sfaturi de la experți.

CONTACT

Creează alertă

Salvează căutarea ca să primești pe email ultimele anunțuri publicate

Case individuale cu 4+ camere de vânzare în Tunari, Județul Ilfov