0 comision.
Va oferim pentru achziitie fara comision o casa individuala localizata in Tunari pe strada Alexandru cel Bun in apropiere de zona Pipera, si Scoala Americana. Casa are o suprafta e 125 mp, are un teren de 233mp si se vinde mobilata si utilata.
Asa cum v-am obisnuit:
- toate ofertele Monga Imobiliare sunt fara comision din partea cumparatorului
- pentru ca iubim transparenta, toate preturile afisate de Monga Imobiliare includ TVA (daca se aplica). Pretul afisat de noi este intotdeauna pretul final pe care il vei achita.
Acceseaza Monga Imobiliare (Monga RO) pentru mai mai multe poze si pentru intreg portofoliul nostru de case si apartamente din Otopeni, Tunari, Balotesti, Corbeanca, Pipera si chiar nordul Bucurestiului.
Despre spatiu:
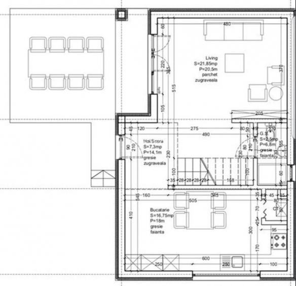
Parter:
Accesul se face printr-un hol cu spatiu pentru dressing. Acesta comunica cu o bucatarie spatioasa cu loc pentru masa, o baie, scara catre etaj si un living cu acces catre terasa.
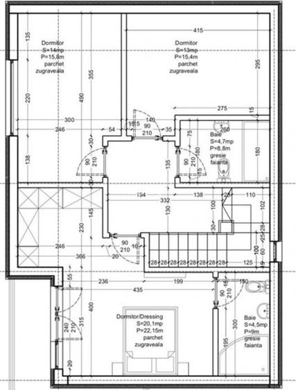
La etaj avem un dormitor matrimonial cu dressing si baie proprie, 2 dormitoare si inca o baie.
In curtea amenajata cu vegetatie avem plante decorative, 10 pomi fructiferi, magazie, gratar, terasa.
Casa detine 1 loc de parcare in curte, pana la 4 locuri in fata si pe lateralul casei.
Casa este prima dintr-un mic complex de 4 case, avand acces direct si catre drumul principal. Locatia permite acces imedata catre Pipera si Centura Capitalei, avand acces usor catre nordul Bucurestiului, scoli si gradinite. In imediata apropiere avem Lidl, Penny si Mega Image. Prin DNCB se pot acces rapid DN1, A3 si A0.
Utilitati: Casa este conectata la gaz si curent electric. Are put si fosa septica; canalizarea este planificata in zona pentru acest an. Detine panouri fotovoltaice cu baterie de stocare si dosar de prosumator. Incalzirea se face prin pardoseala si detine doua aparate de aer conditionat.
Alte aspecte:
- Caramida de 25 cm la exterior si de 12,5 cm la compartimentarile interioare;
- Toți pereții sunt tencuiti cu tencuiala si glet(Ceresit CT126+CT127) si lavabila;
- Termosistem polistiren ignifug 10 cm EPS 80;
- Acoperisul este cu tigla metalica si izolatie cu vata de 20 cm;
- Tamplarie cu geam tripan Euro 70 - Roto;
- Finisaje de super calitate, rezistente la uzură si intemperii;
Apeleaza cu incredere la Monga Imobiliare. Suntem alaturi de tine pana la finalizarea tranzactiei si te ajutam sa treci cu incredere si in cunostinta de cauza prin toti pasii necesari. Te putem ajuta in pregatirea documentelor, selectia notarului, obtinerea finantarii, si altele. Te asteptam sa ne contactezi.
Citește mai mult
Citește mai puțin
Mobilat
Aer condiționat
Centrală proprie
Încălzire prin pardoseală
Bine întreținut (Bună)
Sediul central - Timișoara
Bulevardul Victor Babeș nr. 2, 300230, Timișoara, România
Tel: +40.374.40.44.98 / Fax: +40.256.401.179
Email: suport@imobiliare.ro
Luni - Vineri 08:00 - 20:00
Punct de lucru - București: Iride Business Park, Bld. Dimitrie
Pompeiu 9-9A, Clădirea B2B,
020335, Sector 2, București, România
CONTACT
Sediul central - Timișoara
Bulevardul Victor Babeș nr. 2, 300230, Timișoara, România
Tel: +40.374.40.44.98 / Fax: +40.256.401.179
Email: suport@imobiliare.ro
Luni - Vineri 08:00 - 20:00
Punct de lucru - București: Iride Business Park, Bld. Dimitrie
Pompeiu 9-9A, Clădirea B2B,
020335, Sector 2, București, România
Sună acum și cere detalii sau programează o vizionare.
Cere detalii prin email
*
*
*
*
Universități
Școli
Supermarket
Parcări
Terenuri sport
Parcuri
Restaurant
School American Bucharest-Voluntari
aprox.
1136 m
Scoala Nr. 1 Tunari
aprox.
1193 m
Scoala Americana
aprox.
1202 m
American International School of Bucharest (en)
aprox.
1203 m
Mega Image Pipera Liziera
aprox.
1918 m
Parcare pentru clienti
aprox.
621 m
Parcare
aprox.
973 m
Teren sportiv
aprox.
985 m
Teren sportiv
aprox.
1280 m
Teren sportiv
aprox.
1347 m
Parc
aprox.
997 m
Pădurea Tunari
aprox.
1857 m
Pensiunea "La Zdrobitu' "
aprox.
1875 m
Înainte să pleci...
Ești sigur că ai văzut și aceste proprietăți?
248.000 €
Județul Ilfov, Tunari
5 camere
140 mp
350 mp teren
264.900 €
Județul Ilfov, Tunari
4 camere
140 mp
350 mp teren
280.000 € + TVA
Județul Ilfov, Tunari
5 camere
131 mp
350 mp teren
Creează alertă
Salvează căutarea ca să primești pe email ultimele anunțuri publicate
Case individuale cu 4+ camere de vânzare în Tunari, Județul Ilfov
Cere detalii prin email
*
*
*
*
Detaliile tale de contact vor fi partajate cu Monga
Preț total1.388.853 RON (272.388 €)
Costuri cu achiziția12.177 RON
Preț de achiziție1.376.676 RON
Costuri cu achiziția12.177 RON
Comision agenție Întreabă agenţia
Onorariu notarial10.112 RON
Taxă înscriere OCPI2.065 RON
Preț de achiziție1.376.676 RON
Preț locuință1.376.676 RON
TVA 0%Inclus în prețul cerut
Cost total224.096 RON (43.950 €)
Avans (15%)206.501 RON
Cost achitat în prima lună3.159 RON
Costuri cu achiziția14.436 RON
Cost achitat în prima lună3.159 RON
Comision analiză dosar
400 RON - 900 RON
Taxă evaluare imobil(până la)
900 RON
Rata lunară (variabilă)6.132 RON
Asigurare anuală imobil1.377 RON
Arhivă electronică102 RON
Poliță PAD130 RON
Asigurare de viață/lună Costul este variabil. În funcție de banca aleasă, procentul variază între 0.0259% și 0.035% din soldul creditului.
Costuri cu achiziția14.436 RON
Comision agenție Întreabă agenţia
Onorariu notarial10.112 RON
Taxă întabulare OCPI2.065 RON
Autentificare contract credit2.259 RON
Preț de achiziție1.376.676 RON
Preț locuință1.376.676 RON
TVA 0%Inclus în prețul cerut
Preț de achiziție1.376.676 RON
Preț locuință1.376.676 RON
TVA 0%
Inclus în prețul cerut
Avans minim769.919 RON
Credit pe 30 de ani606.757 RON
Cost achitat în prima lună
Taxa evaluare imobil(până la)
900 RON
Rata lunară (variabilă)4.263 RON
Depozit colateral12.789 RON
Comision de garantare FNGCIMM115 RON
Asigurare anuală imobil1.377 RON
Poliță PAD130 RON
Tarif arhivă electronică102 RON
Costuri adiționale1.517 RON + taxe notariale
Asigurare viață și complexă (opțională)Costul este variabil. În funcție de banca aleasă, procentul variază între 0.0259% și 0.035% din soldul creditului
Onorariu notarialconform tarif notarial
Taxă întabulare OCPI1.517 RON
i
Toate valorile de mai sus sunt estimative și nu reprezintă în mod obligatoriu costurile exacte pe care le veți primi de la companiile/instituțiile prin care veți încheia tranzacția.