Casa premium 5 camere 141 mp Tunari | 0 comision | Vedere panoramica spre lac

425.000 €

Tunari, Județul Ilfov

Nr. cam.:
5
Sup. utilă:
141 mp
Sup. teren:
302 mp
Tip prop.:
Casă individuală
  • • Comision 0%
  • • Locație exactă

Descriere casă

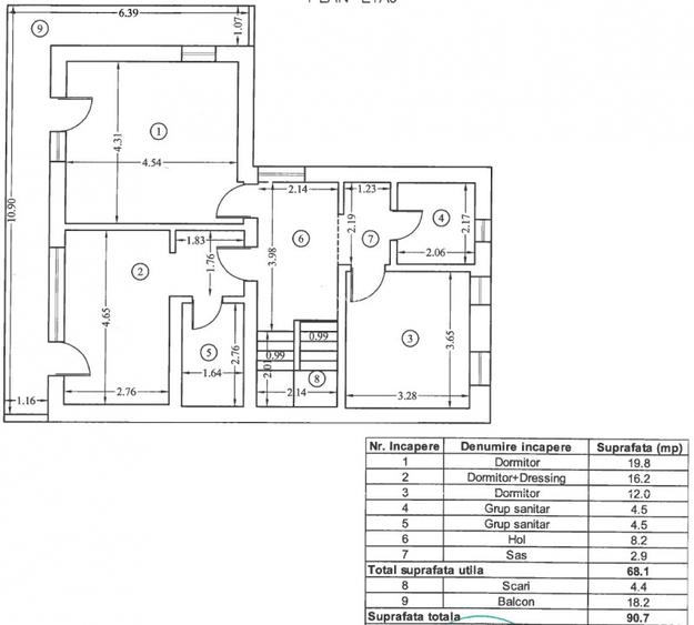
Va oferim spre achizitie fara comision o casa tip duplex superba, cu finisaje si dotari premium, complet mobilata si utilata la cel mai inalt nivel de calitate. Asa cum v-am obisnuit: - toate ofertele Monga Imobiliare sunt fara comision din partea cumparatorului - pentru ca iubim transparenta, toate preturile afisate de Monga Imobiliare includ TVA (daca se aplica). Pretul afisat de noi este intotdeauna pretul final pe care il vei achita. Acceseaza Monga Imobiliare (Monga RO) pentru mai mai multe poze si pentru intreg portofoliul nostru de case si apartamente din Otopeni, Tunari, Balotesti, Corbeanca, Pipera si chiar nordul Bucurestiului. Punctele forte al acestei case sunt numeroase, incepand bineinteles cu locatia cu vedere la lac, si amenajarea premium cu materiale si mobilier de calitate. Despre spatiu: La parter, accesul se face intr-un hol ce comunica pe de o parte cu spatii de depozitare, o baie si un birou, cu scarile catre etaj, iar pe cealalta parte cu living-dining spatios cu bucatarie deschisa. La etaj avem un dormitor matrimonial cu baie proprie, inca doua dormitoare si o baie. Din living se acceseaza terasa generoasa inchisa pentru un plus de confort. Va asteptam la vizionare pentru a descoperi toate aceste detalii si multe altele ale acestei proprietati cu adevarat deosebite. Apeleaza cu incredere la Monga Imobiliare. Suntem alaturi de tine pana la finalizarea tranzactiei si te ajutam sa treci cu incredere si in cunostinta de cauza prin toti pasii necesari. Te putem ajuta in pregatirea documentelor, selectia notarului, obtinerea finantarii, si altele. Te asteptam sa ne contactezi.
Citește mai mult Citește mai puțin
Mobilat Aer condiționat Centrală proprie Încălzire prin pardoseală 3 Parcări Bine întreținut (Bună)

Detalii casă

ID anunț: XFHP11058 Copiat! 269453669 Copiat!
Actualizat în: 18 Martie 2026
Suprafață construită: 210 mp
Nr. bucătării: 1
Nr. băi: 3
Nr. terase: 3
An construcție: 2022 (Finalizată)
Structură rezistență: Beton
Regim înălțime: P+1E

Utilități

Podele
Parchet Gresie
Bucătărie
Mobilată Utilată
Utilități
Curent Gaze Fosa septică CATV
Internet
Fibră optică
Amenajare străzi
Asfaltate
Comision
0%

Puncte de interes

Școală
school
Scoala Nr. 1 Tunari
Școli aprox. 776 m
Recreere
restaurant
Pensiunea "La Zdrobitu' "
Restaurant aprox. 1113 m

Detalii despre preț și costuri

Costuri cu achiziția

Fără credit
Credit ipotecar
Noua casă

i

Costuri adiționale mai puțin știute la achiziție: taxe notariale, comisioane etc.

Insight premium disponibil după login

Proprietăți recomandate

Detalii de contact

MONGA

Razvan Ceapa Managing Partner

5.00(3 review-uri)

MONGA
PRO

Abonează-te la newsletter să fii primul care primește cele mai noi recomandări de proprietăți și sfaturi de la experți.

CONTACT

Creează alertă

Salvează căutarea ca să primești pe email ultimele anunțuri publicate

Case individuale cu 4+ camere de vânzare în Tunari, Județul Ilfov