20

Tunari, Str. Campului, Casa tip Vila, 5 Camere, Teren 1900 mp

430.000 €

Tunari, Județul Ilfov

Nr. cam.:
5
Sup. utilă:
149 mp
Sup. teren:
1.867 mp
Tip prop.:
Individuală
  • • Exclusivitate
  • • Locație aproximativă
  • • Vizionare prin apel video

Descriere casă

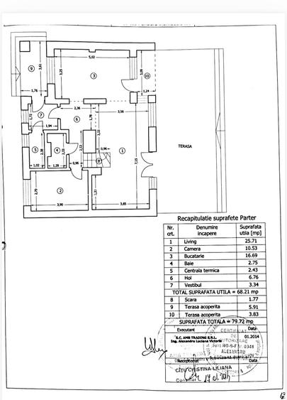
BHS Imobiliare va ofera spre vanzare Casa tip vila situata in Ilfov, Tunari, Str. Campului. Anul construirii: 2013 Regim de înălțime: P + M Suprafețe: - Su = 149 mp - Sc = 108 mp - Sd = 216 mp - S teren = 1867 mp - Deschidere la stradă = 27 ml Utilități: - Energie electrică - Gaze - Puț forat apă 60 m - Fosă septică - Centrală termică Ariston Clasa One WIFI 35 - Rețea publică de apă și canalizare în execuție pe stradă Sistem constructiv: - Fundații din beton - grindă continuă - Structura de rezistență - cadre din beton armat - Pereți de compartimentare - zidărie cărămidă - Pereți de închiriere perimetrală - zidărie cărămidă porotherm 30 cm - Planșeu peste parter - beton - Acoperiș - tip șarpantă din lemn cu țiglă metalică cu rocă vulcanică Gerard - Parter - încălzire prin pardoseală - Etaj - radiatoare oțe Finisaje exterioare: - Termosistem polistiren expandat 15 cm - Tencuială decorativă Finisaje interioare: - Pardoseli - parchet laminat și gresie în spațiile umede - Tâmplărie uși - tâmplărie interioara MDF, ușă intrare metalică - Tâmplărie ferestre - PVC Veka Softline 70 Ad 5 camere cu geam tripan - Finisaje pereți interiori - zugrăveli vopsea lavabilă și placaje din faianță - Sobă fontă tip șemineu pe lemne Compartimentare: Parter: - Hol intrare: 3,34 mp - Cameră tehnică: 2,43 mp - Bucătărie: 16,69 mp - Living: 25,71 mp - Hol: 6,76 - Baie: 2,75 mp - Cameră: 10,53 - Terasă 1: 5,91 mp - Terasa 2: 40 mp - Casa scării: 1,77 mp Etaj: - Dormitor matrimonial: 17,84 + baie: 4,94 mp - Dormitor 1: 15,83 mp - Dormitor 2: 16,14 mp - Baie: 9,75 mp - Hol: 11,60 mp - Casa scării: 2,94 mp Curte: - Beci 9 mp: puț forat 60 m cu pompă submersibilă, statie BlueSoft 1054CR-RX, lampa UV S810 RL - Pavele Semmelrock 20/10/6 cm (aprox. 400 mp) - Vegetație matură - gazon (aprox. 1000 mp), zonă pomi fructiferi, arbori ornamentali ( aprox. 300 mp) - Sistem aspersoare + picurare Irritrol 6 zone - Proprietatea este împrejmuită cu gard din lemn cu soclu din beton h: 2,40 m Documentatie juridica impecabila: -Cadastru, Intabulare, Certificat perfofmanta energetica. Se accepta credit Bancar !!!
Citește mai mult Citește mai puțin
Mobilat Mobilat Grădină Curte Aer condiționat Alte metode electrice Calorifere Centrală proprie Încălzire prin pardoseală Beci 4 Parcări 1 Garaj Renovat

Detalii casă

ID anunț: X98801002 Copiat! 271142887 Copiat!
Actualizat în: 02 Decembrie 2025
Suprafață construită: 108 mp
Suprafață desfășurată: 216 mp
Nr. bucătării: 1
Nr. băi: 2
Nr. terase: 1
Suprafață terase: 40 mp
Nr. fronturi stradale: 1
Front stradal: 27 m
Învelitoare acoperiș: Țiglă
An construcție: 2013 (Finalizată)
Structură rezistență: Beton
Regim înălțime: P+M

Utilități

Destinație
Rezidențial Comercial Birouri De vacanță
Pereți
Faianță Vopsea lavabilă
Podele
Gresie Parchet
Ușă intrare
Metal PVC Parchet
Uși interior
Lemn
Izolații termice
Exterior Interior
Ferestre cu geam termopan
PVC
Contorizare
Contor gaz
Bucătărie
Mobilată Utilată
Diverse
Șemineu Scară interioară Telecomandă poartă acces auto
Alte spații utile
WC Serviciu Dressing Cramă Spațiu depozitare
Facilități imobil
Spații agrement Interfon
Utilități
CATV Gaze Telefon Curent Canalizare Fosa septică Apă
Internet
Cablu Fibră optică Wireless
Amenajare străzi
Asfaltate
Comision
3%

Certificat energetic:

Clasa energetică: A

Vicii:

Fara vicii

Disponibilitate proprietate:

Imediat

Puncte de interes

Școală
school
Scoala Nr. 1 Tunari
Școli aprox. 661 m
university
School American Bucharest-Voluntari
Universități aprox. 1772 m
school
American International School of Bucharest (en)
Școli aprox. 1833 m
school
Scoala Americana
Școli aprox. 1835 m
Recreere
restaurant
Pensiunea "La Zdrobitu' "
Restaurant aprox. 1159 m
park
Parc
Parcuri aprox. 1524 m
sports-ground
Teren sportiv
Terenuri sport aprox. 1531 m
park
Pădurea Tunari
Parcuri aprox. 1643 m

Detalii despre preț și costuri

Costuri cu achiziția

Fără credit
83.391 RON
Credit ipotecar
86.329 RON
Noua casă
2.331 RON+ taxe notariale

i

Costuri adiționale mai puțin știute la achiziție: taxe notariale, comisioane etc.

Proprietăți recomandate

Detalii de contact

Abonează-te la newsletter să fii primul care primește cele mai noi recomandări de proprietăți și sfaturi de la experți.

CONTACT

Creează alertă

Salvează căutarea ca să primești pe email ultimele anunțuri publicate

Case individuale cu 4+ camere de vânzare în Tunari, Județul Ilfov