REV2001181 Vila interbelica 500 mp Lascar Catargiu

2.500.000 € + TVA

P-ța Romană, București

Nr. cam.:
16
Sup. utilă:
455 mp
Sup. teren:
324 mp
Tip prop.:
Individuală
  • • Locație aproximativă
  • • Vizionare prin apel video

Descriere casă

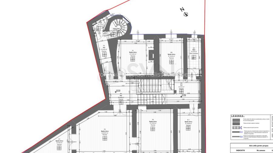
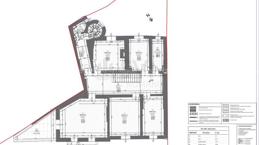
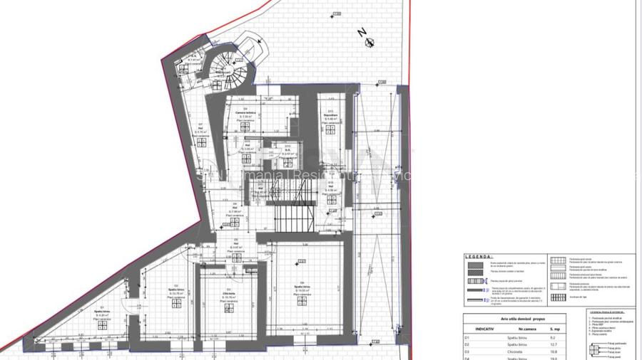
SVN Romania va propune spre vanzare o superba vila situata in inima Bucurestiului, pe Bulevardul Lascar Catargiu, in imediata apropiere de Piata Romana si de Piata Victoriei. Imobilul a fost construit aproximativ in anul 1930, si se afla la stadiul de consolidare/renovare fiind structurat pe S+D+P+1E+M si are o suprafata utila de aprox 500 mp, Vila este compusa din 16 camere si poate fi amenajata lpentru orice tip de activitate. Structura: - infrastructura (fundatii): beton; - suprastructura: rezistenta: ziduri portante din caramida; compartimentari interioare si inchideri perimetrale: caramida; - plansee: beton armat; - acoperis: sarpanta: lemn; invelitoare: tigle tip olane. Pentru moment nu detinem informatii despre clasa energetica a imobilului. Pentru mai multe informatii sau pentru stabilirea unei vizionari, nu ezitati sa ne contactati.
Citește mai mult Citește mai puțin
Grădină Centrală proprie

Detalii casă

ID anunț: X658013VE Copiat! 275426340 Copiat!
Actualizat în: 10 Aprilie 2026
Suprafață construită: 600 mp
Suprafață desfășurată: 496 mp
Nr. bucătării: 1
Nr. băi: 6
Nr. balcoane / Terase / Logii: 3
Nr. terase: 1
An construcție: 1930 (Finalizată)
Structură rezistență: Cărămidă
Tip imobil: Casă/Vilă
Regim înălțime: D+P+1E+M

Utilități

Destinație
Rezidențial Birouri Birouri
Podele
Parchet
Ferestre cu geam termopan
PVC
Diverse
Sistem de alarmă Senzor de fum
Alte spații utile
Spațiu depozitare
Facilități imobil
Acoperiș
Utilități
Gaze Apă Canalizare Curent
Comision
Standard

Vicii:

Fără vicii.

Alte detalii:

Victoriei, proiecte imobiliare de top

În zona Victoriei se intersectează străzi, bulevarde cunoscute și foarte tranzitate din capitală, precum Calea Victoriei, bulevardul Lascăr Catargiu, bulevardul Kiseleff, bulevardul Iancu de Hunedoara, bulevardul Aviatorilor și bulevardul Ion Mihalache.

Acest lucru înseamnă că zona Victoriei reprezintă unul dintre cele mai importante noduri rutiere ale Bucureștiului, având acces rapid la două magistrale de metrou și la autobuzele 205, 300, 381, 783, 182.

La Victoriei se regăsesc mai multe clădiri cu o arhitectură interesantă cum ar fi:

● Muzeul Național de Istorie Naturală Grigore Antipa;
● Muzeul Țăranului Român;
● Guvernul României.

Imobile în zona Victoriei

Începând cu anii 1980, în cartierele din vecinătatea zonei Victoriei, cum ar fi Titulescu sau 1 Mai, au fost construite blocuri de 10 etaje, apartamentele din acest blocuri fiind foarte căutate pe piața imobiliară datorită prețurilor accesibile și a compartimentării avantajoase.

Din punct de vedere al calității, dezvoltatorii s-au axat atât pe segmentul rezidențial, cât și pe cel de birouri, finalizând proiecte imobiliare de top.

Proiectele imobiliare care au fost dezvoltate recent sunt formate din blocuri de apartamente cu regim de înălțime redus, care se încadrează perfect în estetica zonei

Aici vei găsi apartamente de tip studio, de două, trei sau patru camere, precum și apartamente moderne cu compartimentare open-space sau penthouse-uri.

Disponibilitate proprietate:

Disponibil din 09/10/2025.

Puncte de interes

Mijloace transport
bus-station
Orlando
Stații autobuz aprox. 68 m
tram-station
Pasaj Victoria
Stații tramvai aprox. 358 m
metro-station
Metrorex. Piata Victoriei 1/2 (M1) , (M2)
Stații metrou aprox. 446 m
trolleybus-station
Statia Piata Romana linii : 79,86
Stații troleibuz aprox. 473 m
Școală
university
SNSPA
Universități aprox. 167 m
university
Scoala Nationala de Studii Politice si Administrative (SNSPA)
Universități aprox. 171 m
school
Gradinita de copii nr.50
Școli aprox. 177 m
kindergarten
Gradinita nr. 252 cu program prelungit
Gradinițe aprox. 601 m
Recreere
park
Parcul Nicolae Iorga
Parcuri aprox. 280 m
public-square
Piața Romană
Piețe publice aprox. 452 m
supermarket
Bila Supermarket
Supermarket aprox. 517 m
mall
"METROPLIS CENTER"
Mall aprox. 536 m

Proprietăți similare

Casă individuală cu 20 camere în P-ța Romană
2.500.000 €
București, P-ța Romană
20 camere
816 mp
293 mp teren
Casă individuală cu 20 camere în Romană
2.500.000 €
București, Romană
20 camere
1.096 mp
300 mp teren
Casă individuală cu 10 camere în Central
2.490.000 €
București, Central
10 camere
480 mp
244 mp teren

Detalii de contact

Abonează-te la newsletter să fii primul care primește cele mai noi recomandări de proprietăți și sfaturi de la experți.

CONTACT

Creează alertă

Salvează căutarea ca să primești pe email ultimele anunțuri publicate

Case individuale cu 4+ camere de vânzare în zona P-ța Romană, Ultracentral