Vila P+E 120 mp, beci, 400 teren, 5 drumuri, Valea Adanca

235.000 €

Valea Adâncă, Județul Iași

Nr. cam.:
4
Sup. utilă:
120 mp
Sup. teren:
400 mp
Tip prop.:
Individuală
  • • Locație aproximativă
  • • Vizionare prin apel video

Descriere casă

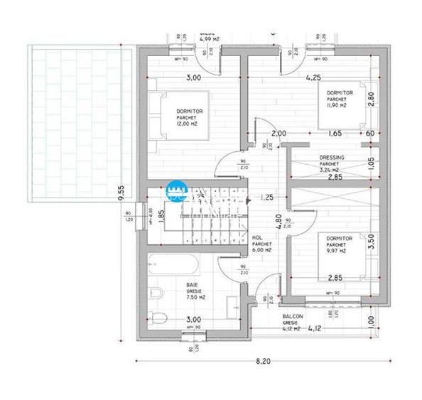
Casa individuala premium P+1E cu demisol (beci), vedere spre oras – Valea Adanca, zona Mega Image Va propunem spre vanzare o locuinta individuala eleganta, amplasata intr-una dintre cele mai cautate zone rezidentiale din Valea Adanca – Mega Image, la doar aproximativ 200 m de mijloacele de transport in comun. Proprietatea imbina perfect linistea unei zone de case cu accesul rapid catre oras si toate facilitatile necesare unui stil de viata modern. Imobilul beneficiaza de o pozitionare excelenta, in apropiere de supermarket Mega Image, zona comerciala, fast-food, scoala si gradinita (zona 5 Drumuri), oferind confort si accesibilitate pentru intreaga familie. In plus, vederea panoramica asupra orasului adauga un plus de valoare si unicitate acestei proprietati. Constructia este realizata pe structura din beton, cu pereti tencuiti la interior si izolatie exterioara cu termosistem de 10 cm EPS 80, asigurand eficienta energetica ridicata. Tamplaria este de tip tripan Low-E 4S, pentru un confort termic si fonic superior. Proprietatea este racordata la toate utilitatile. Compartimentarea este gandita inteligent, pentru a oferi spatii generoase si functionale: Demisolul dispune de un beci cu acces separat, ideal pentru depozitare. Parterul ofera un living luminos, bucatarie, baie, hol generos cu vestibul si acces catre o terasa acoperita – perfecta pentru relaxare. Etajul este compartimentat in 3 dormitoare, baie si balcon, iar podul asigura spatiu suplimentar pentru depozitare. Finisajele sunt de calitate superioara si includ incalzire prin pardoseala cu centrala termica proprie, parchet, gresie, faianta, pereti finisati cu lavabil, usi interioare MDF si obiecte sanitare incastrate. Curtea permite amenajarea confortabila si include loc de parcare. Proprietatea reprezinta o alegere ideala pentru cei care isi doresc o casa moderna, spatioasa, bine pozitionata, cu acces rapid catre oras si toate facilitatile urbane. Pentru detalii suplimentare si programarea unei vizionari: Alexandru Coptu – ID intern: 6833
Citește mai mult Citește mai puțin
Centrală proprie Încălzire prin pardoseală 2 Parcări

Detalii casă

ID anunț: X3V4111GR Copiat! 275439710 Copiat!
Actualizat în: 16 Aprilie 2026
Suprafață construită: 190 mp
Suprafață desfășurată: 190 mp
Nr. bucătării: 1
Nr. băi: 2
Nr. balcoane / Terase / Logii: 1
Nr. terase: 1
Învelitoare acoperiș: Tabla
An construcție: 2023 (În construcție)
Structură rezistență: Altele
Etaj: Etaj 1 / 1
Regim înălțime: P+1E

Utilități

Destinație
Rezidențial
Pereți
Faianță Vopsea lavabilă Var Humă
Podele
Parchet Gresie Marmură
Izolații termice
Exterior Interior
Ferestre cu geam termopan
PVC
Utilități
Apă Curent Gaze Canalizare
Internet
Fibră optică
Amenajare străzi
Asfaltate Pietruite

Certificat energetic:

Clasa energetică: B

Vecinătăți:

Scoala/gradinita, Mall, Fastfood, Supermarket, Zona comerciala, Autobuz

Puncte de interes

Mijloace transport
bus-station
statia "Otelarie", linia 44,41b
Stații autobuz aprox. 1443 m
bus-station
Tehnopolis
Stații autobuz aprox. 1507 m
bus-station
Statia "Tehnopolis", linia 27,41,41b,44
Stații autobuz aprox. 1522 m
bus-station
Baza naut
Stații autobuz aprox. 1542 m
Școală
school
Scoala de Soferi Auto Tifache
Școli aprox. 1593 m
Recreere
restaurant
La Debarcader
Restaurant aprox. 703 m
sports-ground
Teren sportiv
Terenuri sport aprox. 1395 m
park
Parc
Parcuri aprox. 1445 m
supermarket
Supermarket SMART CUG
Supermarket aprox. 1499 m

Detalii despre preț și costuri

Costuri cu achiziția

Fără credit
Credit ipotecar
Noua casă

i

Costuri adiționale mai puțin știute la achiziție: taxe notariale, comisioane etc.

Insight premium disponibil după login

Proprietăți similare

Casă individuală cu 3 camere în Valea Adâncă
215.000 €
Județul Iași, Valea Adâncă
3 camere
100 mp
500 mp teren
Casă individuală cu 4 camere în Valea Adâncă
230.000 €
Județul Iași, Valea Adâncă
4 camere
125 mp
525 mp teren
Casă individuală cu 4 camere în Valea Adâncă
215.000 €
Județul Iași, Valea Adâncă
4 camere
120 mp
380 mp teren

Detalii de contact

Imperia Imobiliare

Alexandru COPTU CONSULTANT IMOBILIAR VANZARI CASE PE ZONELE: VALEA ADANCA,LUNCA CETATUII, HORPAZ MIROSLAVA

Imperia Imobiliare
PRO

Abonează-te la newsletter să fii primul care primește cele mai noi recomandări de proprietăți și sfaturi de la experți.

CONTACT

Creează alertă

Salvează căutarea ca să primești pe email ultimele anunțuri publicate

Case individuale cu 4+ camere de vânzare în Valea Adâncă, Județul Iași