3

Case noi tip parter in Vernesti | Byzantium Village

119.000 €

Vernești, Județul Buzău

Nr. cam.:
3
Sup. utilă:
94 mp
Sup. teren:
470 mp
Tip prop.:
Individuală
  • • Comision 0%
  • • Exclusivitate
  • • Locație exactă
  • • Vizionare prin apel video

Descriere casă

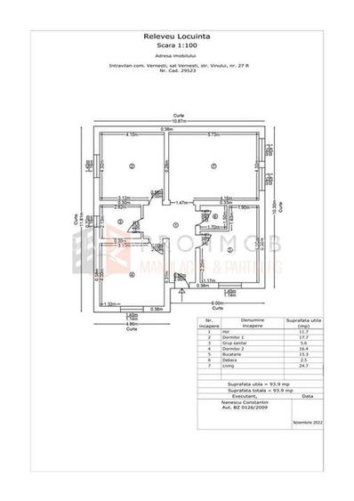
Compania imobiliara PRO IMOB va prezinta spre vanzare case constructii noi, tip parter construite din caramida Porotherm si cadre de beton, cu izolatie exterioara din polistiren de 8 cm EPS 80, acoperite cu tabla lindab Bilka. In ansamblul rezidential veti regasi doua tipuri de locuinte tip Parter: "tip Modicum" - Case tip parter in suprafata utila de 94 mp compuse din: doua dormitoare, living, bucatarie, baie, terasa exterioara acoperita in suprafata de 15.50 mp, amplasate pe loturi de cca 470 mp; Pret 119.000 EURO ( TVA inclus) ; "tip Magnum" - Case tip parter in suprafata utila de 110 mp compuse din: trei dormitoare, living, bucatarie, baie, terasa exterioara acoperita in suprafata de 15.50 mp, amplasate pe loturi de cca 530 mp; Pret 129.000 EURO ( TVA inclus); Acest cartier rezidential va cuprinde 120 de locuinte, un loc de joaca pentru copii, impreuna cu toata infrastructura necesara. Proiectul rezidential Byzantium Village, este un proiect unicat in piata imobiliara din Buzau, diferentiindu-se printr-un aspect mediteranean si un stil arhitectural deosebit, dar si prin comunitatea deja creata si in crestere. Imobilele vor beneficia de finisaje moderne si calitative precum: gresie, faianta, parchet, tamplarie PVC cu geam termopan, usi interioare, toate acestea fiind alese chiar de noii proprietari in baza unor bugete generoase. Imobilele beneficiaza de toate utilitatile disponibile in zona (gaze naturale, electricitate, apa curenta, fibra optica, fosa septica etc). Pentru mai multe detalii și vizionări, contactați-ne la numarul de telefon din anunt sau pe WhatsApp. PRO IMOB – Partenerul tău de încredere în imobiliare
Citește mai mult Citește mai puțin
Centrală proprie 2 Parcări Zonă rurală

Detalii casă

ID anunț: XB6T110BH Copiat! 274908759 Copiat!
Actualizat în: 07 Mai 2026
Suprafață construită: 110 mp
Suprafață desfășurată: 110 mp
Nr. bucătării: 1
Nr. băi: 2
Nr. terase: 1
Nr. fronturi stradale: 1
Învelitoare acoperiș: Țiglă
An construcție: 2026 (În construcție)
Structură rezistență: Cărămidă
Regim înălțime: P+1E

Utilități

Destinație
Rezidențial
Pereți
Faianță Vopsea lavabilă
Ușă intrare
Metal
Uși interior
Celulare
Izolații termice
Exterior
Ferestre cu geam termopan
PVC
Contorizare
Apometre Contor gaz
Diverse
Senzor de fum
Utilități
Apă Curent Gaze Fosa septică
Internet
Cablu Fibră optică
Comision
0%

Certificat energetic:

Clasa energetică: A

Vecinătăți:

Terenuri, Scoala/gradinita, Farmacii, Supermarket, Autobuz

Puncte de interes

Mijloace transport
bus-station
Gara Vernesti
Stații autobuz aprox. 259 m
Școală
kindergarten
Gradinita Vernesti
Gradinițe aprox. 99 m
school
Cladire noua
Școli aprox. 155 m
school
Scoala cu cls. I-VIII
Școli aprox. 179 m
school
Cladire veche
Școli aprox. 189 m
Recreere
sports-ground
Teren de sport
Terenuri sport aprox. 219 m
sports-ground
Teren de fotbal
Terenuri sport aprox. 263 m
restaurant
Fast Food
Restaurant aprox. 315 m

Detalii despre preț și costuri

Costuri cu achiziția

Fără credit
Credit ipotecar
Noua casă

i

Costuri adiționale mai puțin știute la achiziție: taxe notariale, comisioane etc.

Insight premium disponibil după login

Proprietăți similare

Casă individuală cu 3 camere în Vernești
119.000 €
Județul Buzău, Vernești
3 camere
94 mp
470 mp teren
Casă individuală cu 4 camere în Vernești
129.000 €
Județul Buzău, Vernești
4 camere
106 mp
530 mp teren
Casă individuală cu 3 camere în Vernești
119.000 €
Județul Buzău, Vernești
3 camere
94 mp
470 mp teren

Detalii de contact

PRO IMOB Manolache & Partners

Cristian Vitinschii Partener Junior

PRO IMOB Manolache & Partners
PRO

Abonează-te la newsletter să fii primul care primește cele mai noi recomandări de proprietăți și sfaturi de la experți.

CONTACT

Creează alertă

Salvează căutarea ca să primești pe email ultimele anunțuri publicate

Case individuale cu 3 camere de vânzare în Vernești, Județul Buzău