Casa moderna ansamblu exclusivist – Matei Millo – 0% comision –

445.000 €

Voluntari, Județul Ilfov

Nr. cam.:
5
Sup. utilă:
211,7 mp
Sup. teren:
172,62 mp
Tip prop.:
Individuală
  • • Comision 0%
  • • Exclusivitate
  • • Locație exactă
  • • Proprietate nelocuită
  • • Vizionare prin apel video

Descriere casă

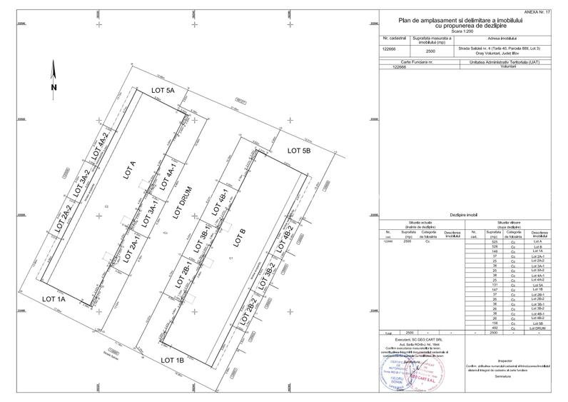
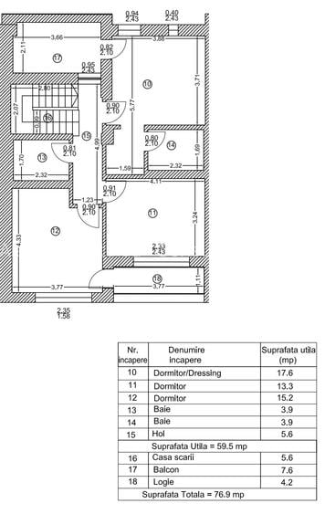
Casa este situata pe strada Salciei in zona Matei Millo, in apropiere de viitoarea artera ce va conecta Erou Iancu Nicolae de aceasta zona. Construita in 2022, aceasta face parte dintr-un ansamblul rezidential privat compus din 10 vile. Casa are o suprafata utila de 211.7 mp, suprafata totala 245.2 mp si este impartita pe trei niveluri (parter, etaj si mansarda). La parter exista zona de zi compusa din living si bucatarie cu acces in curtea interioara de cca. 36 mp. La etaj sunt dispuse 3 dormitoare si 2 bai, precum si 2 balcoane – unul cu vedere in interiorul complexului si celalalt cu vedere in curtea interioara. In mansarda gasim un spatiu generos pretabil inclusiv pentru amenajarea unor dormitoare, precum si o baie complet echipata. Cele 10 vile insiruite de tip townhouse sunt construite pe un teren de 2500 mp si sunt dispuse simetric pe cele doua laturi ale ansamblului. Fiecare casa beneficiaza de 2 locuri de parcare amplasate in partea din fata si posibilitate de a monta statie de incarcare pentru masini electrice (existand racord de 380V). Situat in apropiere de Padurea Voluntari dar si de autostrada A3, accesul catre zona de business a orasului este foarte facila atat cu autoturismul personal cat si cu mijloacele de transport in comun (aflate la doar 2 min de mers pe jos). Accesul in ansamblu este securizat, casele au sistem antiefractie si monitorizare video. Geamurile sunt realizate cu profil Salamander Blu evolution 92, tripan, 52mm, control solar Ușa metalică de la intrare poartă emblema MACO, model NOBILA Confortul termic este obținut datorită centralei termice individuale, Vaillant Eco Tec Plus Vuw 32/36 La parter și etaj încălzirea este în pardoseală, iar la mansarda sunt prevăzute calorifere Ceramica bai – Marazzi; Parchet triplustratificat – Barlinek; Usi interioare – Porta doors Smart home integrat Zona linistita, ansamblu exclusivist. Pret 445.000 euro TVA inclus. Pentru mai multe detalii va stau la dispozitie telefonic si va astept la vizionare.
Citește mai mult Citește mai puțin
Nemobilat Grădină Curte Curte comună Aer condiționat Calorifere Centrală proprie Încălzire prin pardoseală 2 Parcări Renovat

Detalii casă

ID anunț: XG6001001 Copiat! 275117866 Copiat!
Actualizat în: 26 Februarie 2026
Suprafață construită: 82.44 mp
Suprafață desfășurată: 294.24 mp
Nr. bucătării: 1
Nr. băi: 4
Nr. balcoane / Terase / Logii: 2
Nr. terase: 1
Suprafață terase: 36 mp
Nr. fronturi stradale: 1
Front stradal: 8.76 m
Învelitoare acoperiș: Țiglă
An construcție: 2022 (Finalizată)
Structură rezistență: Beton
Regim înălțime: P+1E+M

Utilități

Destinație
Rezidențial
Pereți
Faianță Vopsea lavabilă
Podele
Parchet Gresie
Ușă intrare
Metal
Uși interior
Lemn
Izolații termice
Exterior Interior
Ferestre cu geam termopan
PVC
Contorizare
Contor gaz Apometre Contor căldură
Diverse
Scară interioară Senzor de fum Sistem de alarmă Telecomandă poartă garaj Telecomandă poartă acces auto
Alte spații utile
Dressing Spațiu depozitare Dependințe WC Serviciu
Facilități imobil
Spații agrement Interfon Acoperiș Videointerfon
Utilități
CATV Curent Gaze Canalizare Curent trifazic Apă Telefon
Internet
Fibră optică Wireless Cablu
Servicii imobil
Supraveghere video
Amenajare străzi
Asfaltate Pietruite Iluminat stradal Mijloace de transport în comun
Comision
0%

Certificat energetic:

Clasa energetică: A

Vicii:

nu este cazul

Vecinătăți:

Strada Matei Millo
Autostrada A3
Padurea Voluntari
Lemon Retail Park
Strada Popasului

Alte detalii:

Pret cu TVA inclus

Disponibilitate proprietate:

Imediata

Puncte de interes

Mijloace transport
bus-station
Statia Escalei, linia 682
Stații autobuz aprox. 1793 m
bus-station
statia cocorilor
Stații autobuz aprox. 1841 m
bus-station
Statia Ciuca Stefan, linia 682
Stații autobuz aprox. 1901 m
tram-station
Capat Pasaj Colentina linia:21
Stații tramvai aprox. 1967 m
Școală
school
Sediu al scolii generale cu cls. I-VIII, nr 1- oras Voluntari
Școli aprox. 1190 m
kindergarten
Echilibria 1
Gradinițe aprox. 1306 m
school
Gradinita
Școli aprox. 1321 m
school
Gradinita Happy Univers
Școli aprox. 1369 m
Recreere
sports-ground
Teren fotbal
Terenuri sport aprox. 425 m
sports-ground
Teren sportiv
Terenuri sport aprox. 1113 m
park
Parcul de Interes public Pipera- oras VOLUNTARI
Parcuri aprox. 1267 m
restaurant
Restaurant
Restaurant aprox. 1910 m

Detalii despre preț și costuri

Costuri cu achiziția

Fără credit
18.177 RON
Credit ipotecar
21.178 RON
Noua casă
2.407 RON+ taxe notariale

i

Costuri adiționale mai puțin știute la achiziție: taxe notariale, comisioane etc.

Proprietăți similare

Casă individuală cu 4 camere în Voluntari
429.000 €
Județul Ilfov, Voluntari
4 camere
165 mp
300 mp teren
Casă individuală cu 5 camere în Voluntari
480.000 €
Județul Ilfov, Voluntari
5 camere
224 mp
249,61 mp teren
Casă individuală cu 5 camere decomandat în Central
450.000 €
Județul Ilfov, Voluntari
5 camere
200 mp
500 mp teren

Detalii de contact

Abonează-te la newsletter să fii primul care primește cele mai noi recomandări de proprietăți și sfaturi de la experți.

CONTACT

Creează alertă

Salvează căutarea ca să primești pe email ultimele anunțuri publicate

Case individuale cu 4+ camere de vânzare în Voluntari, Județul Ilfov